Titel Logo
Region im Blick VG Kaisersesch
Ausgabe 21/2024
Aus den Gemeinden
Zurück zur vorigen Seite
Zurück zur ersten Seite der aktuellen Ausgabe

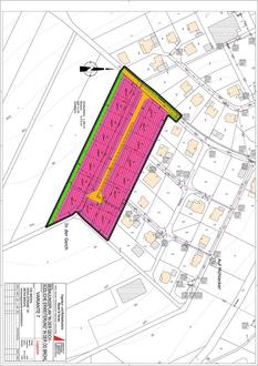
Bauleitplanung der Ortsgemeinde Brohl | Bebauungsplan „In der Geich – Südliche Erweiterung“

Bebauungsplan „In der Geich – Südliche Erweiterung“

Beteiligungsverfahren nach § 3 Abs. 1 Baugesetzbuch

In der öffentlichen Sitzung des Ortsgemeinderates Brohl am 09.11.2023 hat der Ortsgemeinderat die Aufstellung des Bebauungsplanes „In der Geich – Südliche Erweiterung“ beschlossen.

In der Sitzung am 01.02.2024 hat der Ortsgemeinderat dem vom Ingenieurbüro Reuter & Ternes, Binningen, erstellten Entwurf des Bebauungsplanes „In der Geich – Südliche Erweiterung“ zugestimmt.

Gleichzeitig wurde die Verwaltung beauftragt, die Beteiligungsverfahren nach § 3 Abs. 1 Baugesetzbuch (BauGB) und § 4 Abs. 1 BauGB einzuleiten. Dem wesentlichen Sinn und Zweck der frühzeitigen Beteiligung der Öffentlichkeit nach § 3 (1) BauGB und der Beteiligung der Behörden nach § 4 (1) BauGB folgend, beschränken sich die vorliegenden Planunterlagen auf die Darlegung der allgemeinen Ziele und Zwecke sowie Auswirkungen der Planung. Konkrete Einzelheiten der Planung sowie etwaig zusätzliche Fachgutachten werden im Bedarfsfall im weiteren Verfahren erstellt und werden dann Bestandteil der Planunterlagen zum sich anschließenden förmlichen Auslegungsverfahren.

Mit der Aufstellung des Bebauungsplanes sollen die planungsrechtlichen Zulässigkeitsvoraussetzungen für die vorwiegende Errichtung von Wohngebäuden geschaffen werden.

Gemäß § 3 Abs. 1 BauGB ist die Öffentlichkeit möglichst frühzeitig an der Planung zu beteiligen. Die Planung und Abgrenzung des Plangebietes ist aus dem abgedruckten Bebauungsplanentwurf ersichtlich.

Der Entwurf des Bebauungsplanes „In der Geich – Südliche Erweiterung“, die textlichen Festsetzungen, die Begründung sowie eine Lärmabschätzung sind im Internet auf der Website der Verbandsgemeinde Kaisersesch unter www.kaisersesch.de ({{gt}}Aktuelles/Presse- und Öffentlichkeitsarbeit/Amtliche Bekanntmachungen) unter dem Artikel „Ortsgemeinde Brohl - Aufstellung des Bebauungsplanes „In der Geich – Südliche Erweiterung“ bis einschließlich Dienstag, 25.06.2024 veröffentlicht.

Zusätzlich zur Veröffentlichung im Internet können die vorgenannten Unterlagen bei der Verbandsgemeindeverwaltung Kaisersesch, Am Römerturm 2, 56759 Kaisersesch, Zimmer DE01, zu folgenden Zeiten

Montag: 08:00 Uhr bis 12:30 Uhr

14:00 Uhr bis 16:00 Uhr

Dienstag: 08:00 Uhr bis 12:30 Uhr

Mittwoch: 08:00 Uhr bis 12:30 Uhr

Donnerstag: 08:00 Uhr bis 12:00 Uhr

14:00 Uhr bis 18:00 Uhr

Freitag: 08:00 Uhr bis 12:00 Uhr

bis einschließlich Dienstag, 25.06.2024 eingesehen werden.

Wir geben hiermit Gelegenheit zur Äußerung und Erörterung der Planung.

Brohl, 16.05.2024
Ortsgemeinde Brohl
Uwe Theobald, Ortsbürgermeister