Titel Logo
Region im Blick VG Kaisersesch
Ausgabe 26/2025
Aus den Gemeinden
Zurück zur vorigen Seite
Zurück zur ersten Seite der aktuellen Ausgabe

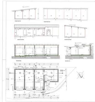
Ortsgemeinde Landkern veräußert drei Garagen und einen Nebenraum

Die Ortsgemeinde Landkern bietet drei Garagen zuzüglich eines Nebenraums zum Verkauf an. Es handelt sich um einen Massivbau aus dem Jahr 2022, welcher zentral in Landkern an der L107 liegt.

Die Garagen haben folgende Grundfläche:

Garage 1: 21,65 m² (6,76 m x 3,20 m)

Garage 2: 21,98 m² (6,76 m x 3,25 m)

Garage 3: 21,58 m² (6,76 m x 3,19 m)

Nebenraum: 18,86 m² (3,99 m x 4,72 m)

Die Garagen verfügen über elektrisch betriebene Rolltore sowie einen Stromanschluss. Der Nebenraum verfügt über einen Strom- und Wasseranschluss.

Die Garagen und der Nebenraum sind zurzeit vermietet.

Nähere Informationen sind bei der Ortsgemeinde Landkern erhältlich.

Bei Interesse bitten wir bis zum 31.07.2025 ein schriftliches Angebot bei Herrn Ortsbürgermeister Ewald Mattes, Oberer Berg 8, 56814 Landkern oder buergermeister@landkern.de abzugeben.