Titel Logo
Region im Blick VG Kaisersesch
Ausgabe 31/2022
Aus den Gemeinden
Zurück zur vorigen Seite
Zurück zur ersten Seite der aktuellen Ausgabe

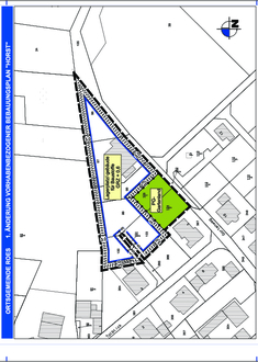
Bauleitplanung der Ortsgemeinde Roes

1. Änderung des vorhabenbezogenen Bebauungsplanes "Horst"

Der vorhabenbezogene Bebauungsplan „Horst“ stammt aus dem Jahr 2003. Anlass für die seinerzeitige Planung war die Absicht des in der Ortsgemeinde ansässigen Gewerbebetriebs geeignete Lagerflächen für Baumaterialien zu errichten und bereitzustellen. Zwischenzeitlich haben sich die Grundstücksverhältnisse im Geltungsbereich des vorhabenbezogenen Bebauungsplans geändert. Es ist daher angedacht, mehrere Parzellen, die bisher als Grünfläche festgesetzt waren, in die überbaubare Grundstücksfläche einzubeziehen. Der Ortsgemeinderat Roes hat daher in seiner Sitzung am 13.06.2022 eine 1. Änderung des vorhabenbezogenen Bebauungsplanes „Horst“ beschlossen und dem Entwurf des vorhabenbezogenen Bebauungsplanes zugestimmt. Dieser Entwurf beinhaltet insbesondere folgende Änderungen:

Die Parzellen Flur 4 Nr. 99, 100 und 103 sollen von der bisherigen Festsetzung als „Private Grünfläche“ in Baufläche umgewandelt werden. Weiterhin soll die allgemeinzulässige Art der baulichen Nutzung um Lagergebäude für Baustoffe, Baumaschinen und –geräte erweitert werden. Anstatt der bisherigen höchstzulässigen bebaubaren Grundfläche von 765 m² soll nunmehr eine Grundflächenzahl von 0,6 festgesetzt werden.

Der Entwurf zur 1. Änderung des vorhabenbezogenen Bebauungsplanes „Horst“ der Ortsgemeinde Roes einschl. der textlichen Festsetzungen, der Begründung sowie dem Lärmgutachten liegt gemäß § 13a Abs. 2 Baugesetzbuch (BauGB) i. V. m. § 13 Abs. 2 Nr. 1 und 2 BauGB i. V. m. § 3 Abs. 2 BauGB in der Fassung der Bekanntmachung vom 3. November 2017 (BGBl. I S. 3634) in der Zeit von

Montag, 15.08.2022 bis einschließlich Donnerstag, 15.09.2022

bei der Verbandsgemeindeverwaltung Kaisersesch, Am Römerturm 2, 56759 Kaisersesch, Zimmer DE01, zu folgenden Zeiten

Montag:

08:00 Uhr bis 12:30 Uhr

14:00 Uhr bis 16:00 Uhr

Dienstag:

08:00 Uhr bis 12:30 Uhr

Mittwoch:

08:00 Uhr bis 12:30 Uhr

Donnerstag:

08:00 Uhr bis 12:00 Uhr

14:00 Uhr bis 18:00 Uhr

Freitag:

08:00 Uhr bis 12:00 Uhr

zu jedermanns Einsicht öffentlich aus.

Während der Auslegungsfrist sind der Inhalt der Bekanntmachung nach § 3 Absatz 2 Satz 2 BauGB und die nach § 3 Absatz 2 Satz 1 BauGB auszulegenden Unterlagen auch auf der Website der Verbandsgemeinde Kaisersesch unter www.kaisersesch.de (>Aktuelles/Amtliche Bekanntmachung) unter dem Artikel „Ortsgemeinde Roes - Offenlage der 1. Änderung des vorhabenbezogenen Bebauungsplanes „Horst“ einsehbar.

Zudem können die Unterlagen in dem vorgenannten Zeitraum auch über das Geoportal des Landes Rheinland-Pfalz www.geoportal.rlp.de eingesehen werden.

Die Auslegung erfolgt im Rahmen des förmlichen Verfahrens nach § 3 Abs. 2 BauGB.

Besondere Hinweise wegen der Corona-Pandemie

Auf Grund der Corona-Problematik ist der Zutritt zur Verbandsgemeindeverwaltung Kaisersesch nur unter den jeweils geltenden Corona-Regelungen möglich. Der Dienstbetrieb bleibt aufrechterhalten, so dass die Einsichtnahme in die ausgelegten Unterlagen nach vorheriger Terminvereinbarung mit den Mitarbeitern des Fachbereichs Infrastruktur (Sachgebiet Bauleitplanung) unter der Tel. Nr.: 02653 9996-301 oder per Email: rainer.weiler@vg.kaisersesch.de möglich ist.

Während der oben genannten Auslegungsfrist können Stellungnahmen, Bedenken und/oder Anregungen zu dem Entwurf des genannten Bebauungsplanes abgegeben werden. Die Stellungnahmen/Bedenken/Anregungen können schriftlich, elektronisch oder mündlich zur Niederschrift bei der Verbandsgemeindeverwaltung abgegeben werden. Nicht fristgerecht abgegebene Stellungnahmen/Bedenken/Anregungen können bei der Beschlussfassung über den Bebauungsplan unberücksichtigt bleiben.

Hinweise:

1) Die Aufstellung des Bebauungsplanes erfolgt im beschleunigten Verfahren nach § 13a BauGB (Bebauungspläne der Innenentwicklung) ohne Durchführung einer Umweltprüfung nach § 2 Abs. 4 BauGB. In diesem Verfahren gelten die Vorschriften des vereinfachten Verfahrens nach § 13 Abs. 2 und 3 Satz 1 BauGB entsprechend. Nach § 13 Abs. 3 BauGB wird von einer Umweltprüfung nach § 2 Abs. 4 BauGB abgesehen (§ 13 a Abs. 3 Satz 1 Nr. 1 BauGB).

2) Die Öffentlichkeit kann sich ab Freitag, 05.08.2022 bei der Verbandsgemeindeverwaltung Kaisersesch zu den o. g. Zeiten über die allgemeinen Ziele und Zwecke sowie die wesentlichen Auswirkungen der Planung unterrichten. Eine Äußerung zu der Planung ist auch dann schon möglich.

Das Plangebiet ist aus dem nachstehend abgedruckten Plan ersichtlich.

Die 1. Änderung des vorhabenbezogenen Bebauungsplanes „Horst“ umfasst die Grundstücke

Gemarkung Roes

Flur 4

Flurstücke 96, 97, 98, 99, 100, 103, 104/1 und 104/2

Roes, den 26.07.2022
Ortsgemeinde Roes
Jörg Fuhrmann, Ortsbürgermeister