Titel Logo
Region im Blick VG Kaisersesch
Ausgabe 42/2024
Aus den Gemeinden
Zurück zur vorigen Seite
Zurück zur ersten Seite der aktuellen Ausgabe

Bekanntmachung | Bauleitplanung der Ortsgemeinde Roes 1. Änderung

Bauleitplanung der Ortsgemeinde Roes

1. Änderung des vorhabenbezogenen Bebauungsplanes „Horst“;

Öffentliche Bekanntmachung über die erneute öffentliche Auslegung nach § 4a Abs. 3 Sätze 1 bis 3 Baugesetzbuch (BauGB) i.V.m. § 3 Absatz 2 BauGB

Erneute Offenlage/öffentliche Auslegung

Gemäß § 4a Baugesetzbuch (BauGB) i.V.m. § 3 Abs. 2 in der Fassung der Bekanntmachung vom 3. November 2017 (BGBl. I S. 3634) wird hiermit öffentlich bekannt gemacht:

Der vorhabenbezogene Bebauungsplan „Horst“ stammt aus dem Jahr 2003. Anlass für die seinerzeitige Planung war die Absicht des in der Ortsgemeinde ansässigen Gewerbebetriebs geeignete Lagerflächen für Baumaterialien zu errichten und bereitzustellen. Zwischenzeitlich haben sich die Grundstücksverhältnisse im Geltungsbereich des vorhabenbezogenen Bebauungsplans geändert. Es ist daher angedacht, mehrere Parzellen die bisher als Grünfläche festgesetzt waren, in die überbaubare Grundstücksfläche einzubeziehen. Der Ortsgemeinderat Roes hat daher in seiner Sitzung am 13.06.2022 eine 1. Änderung des vorhabenbezogenen Bebauungsplanes „Horst“ beschlossen und dem Entwurf des vorhabenbezogenen Bebauungsplanes zugestimmt. Dieser Entwurf beinhaltet insbesondere folgende Änderungen:

Die Parzellen Flur 4 Nr. 99, 100 und 103 sollen von der bisherigen Festsetzung als „Private Grünfläche“ in Baufläche umgewandelt werden. Weiterhin soll die allgemeinzulässige Art der baulichen Nutzung um Lagergebäude für Baustoffe, Baumaschinen und –geräte erweitert werden. Anstatt der bisherigen höchstzulässigen bebaubaren Grundfläche von 765 m² soll nunmehr eine Grundflächenzahl von 0,6 festgesetzt werden.

Die öffentliche Auslegung fand in der Zeit vom 15.08.2022 bis zum 15.09.2022 statt. Da der Entwurf nach der Offenlage geändert wurde, erfolgt hiermit eine erneute öffentliche Auslegung. In der öffentlichen Sitzung des Ortsgemeinderates vom 26.08.2024 wurde dem geänderten Entwurf der 1. Änderung des vorhabenbezogenen Bebauungsplanes „Horst“ zugestimmt und die erneute Beteiligung der Öffentlichkeit nach § 4a Absatz 3 BauGB beschlossen. Die Dauer der Veröffentlichungsfrist und die Frist zur Stellungnahme werden auf zwei Wochen verkürzt. Der geänderte Entwurf des Bebauungsplanes ist daher gem. § 4a Abs. 3 BauGB erneut zu veröffentlichen und in Bezug auf die Änderung des Bebauungsplanentwurfes und ihre möglichen Auswirkungen wird nochmals Gelegenheit zur Stellungnahme gegeben. Stellungnahmen können nur zu den geänderten oder ergänzten Teilen abgegeben werden.

Nach der 1. öffentlichen Auslegung des Entwurfs des Bebauungsplanes wurde folgende Änderung vorgenommen:

  • Auf dem innerhalb des Bebauungsplanentwurfes befindliche Grundstück Flur 4 Flurstück 103 wird die Errichtung eines Einfamilienhauses zugelassen.

Den geänderten Planentwurf einschl. textlicher Festsetzungen und Begründung hat der Ortsgemeinderat Roes in seiner Sitzung am 26.08.2024 gebilligt.

Die Aufstellung des Bebauungsplanes erfolgt im beschleunigten Verfahren nach § 13a BauGB. In diesem Verfahren gelten die Vorschriften des vereinfachten Verfahrens nach § 13 Abs. 2 und 3 Satz 1 BauGB entsprechend. Nach § 13 Abs. 3 BauGB wird von einer Umweltprüfung nach § 2 Abs. 4 BauGB, von dem Umweltbericht nach § 2a BauGB, von der Angabe nach § 3 Absatz 2 Satz 2 BauGB, welche Arten umweltbezogener Informationen verfügbar sind, sowie von der zusammenfassenden Erklärung nach § 10a Absatz 1 BauGB abgesehen, § 4c BauGB (Überwachung/Monitoring) ist nicht anzuwenden.

Der geänderte Entwurf des vorhabenbezogenen Bebauungsplanes, die textlichen Festsetzungen, die Begründung sowie das Lärmgutachten, werden gemäß § 13a Abs. 2 Nr. 1 BauGB i.V.m. § 13 Abs. 2 BauGB i.V.m. § 4a Abs. 3 BauGB i.V.m. § 3 Abs. 2 BauGB in der Zeit von

Montag, 28.10.2024

bis einschließlich

Montag, 11.11.2024

auf der Website der Verbandsgemeinde Kaisersesch unter www.kaisersesch.de ({{gt}}Aktuelles/Presse- und Öffentlichkeitsarbeit/Amtliche Bekanntmachungen) unter dem Artikel „Ortsgemeinde Roes – Erneute Offenlage der 1. Änderung des vorhabenbezogenen Bebauungsplanes „Horst““ veröffentlicht.

Zusätzlich zur Veröffentlichung im Internet werden die vorgenannten Unterlagen bei der Verbandsgemeindeverwaltung Kaisersesch, Am Römerturm 2, 56759 Kaisersesch, Zimmer DE01, zu folgenden Zeiten

Montag:

08:00 Uhr bis 12:30 Uhr

14:00 Uhr bis 16:00 Uhr

Dienstag:

08:00 Uhr bis 12:30 Uhr

Mittwoch:

08:00 Uhr bis 12:30 Uhr

Donnerstag:

08:00 Uhr bis 12:00 Uhr

14:00 Uhr bis 18:00 Uhr

Freitag:

08:00 Uhr bis 12:00 Uhr

zu jedermanns Einsicht öffentlich ausgelegt.

Zudem können die Unterlagen in dem vorgenannten Zeitraum auch über das Geoportal des Landes Rheinland-Pfalz www.geoportal.rlp.de eingesehen werden.

Während der Auslegungsfrist können Stellungnahmen, Bedenken und/oder Anregungen nur zu den geänderten bzw. ergänzten Teilen abgegeben werden. Die Stellungnahmen/Bedenken/Anregungen können schriftlich, elektronisch oder mündlich zur Niederschrift bei der Verbandsgemeindeverwaltung abgegeben werden.

Es wird darauf hingewiesen, dass Stellungnahmen, die im Verfahren der Öffentlichkeits- und Behördenbeteiligung nicht fristgerecht abgegeben worden sind, bei der Beschlussfassung über den Bebauungsplan unberücksichtigt bleiben können, sofern die Ortsgemeinde Roes deren Inhalt nicht kannte und nicht hätte kennen müssen und deren Inhalt für die Rechtmäßigkeit des Bebauungsplanes nicht von Bedeutung ist (§ 4a Abs. 5 BauGB).

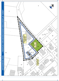
Das Plangebiet ist aus dem nachstehend abgedruckten Plan ersichtlich.

Die 1. Änderung des vorhabenbezogenen Bebauungsplanes „Horst“ umfasst die Grundstücke:

Gemarkung Roes

Flur 4

Flurstücke 96, 97, 98, 99, 100, 103, 104/1 und 104/2

Roes, den 14.10.2024
Ortsgemeinde Roes
In Vertretung
Thomas Schmitt, Erster Beigeordneter