Titel Logo
Region im Blick VG Kaisersesch
Ausgabe 51/2024
Aus den Gemeinden
Zurück zur vorigen Seite
Zurück zur ersten Seite der aktuellen Ausgabe

Zweckvereinbarung

Zwischen der Ortsgemeinde Leienkaul,

vertreten durch den Ortsbürgermeister, Herrn Burkhard Klinkner,

und

der Ortsgemeinde Masburg,

vertreten durch den Ortsbürgermeister, Herrn Patrick Schopp,

wird gemäß §§ 12 ff. Landesgesetz über die kommunale Zusammenarbeit - KomZG - vom 22.12.1982 (GVBl. S. 476) in Verbindung mit § 49 der Gemeindeordnung (GemO) vom 31.01.1994 (GVBl. S. 153), in den zurzeit geltenden Fassungen, folgende Zweckvereinbarung geschlossen:

§ 1

Allgemeines

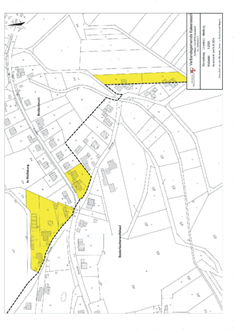
(1) Der Ortsteil Breitenbruch der Ortsgemeinde Masburg grenzt unmittelbar an die Ortslage der Ortsgemeinde Leienkaul an. Durch die dort im Eigentum bzw. in der Baulast der Ortsgemeinde Leienkaul liegenden Verkehrsanlagen sind auch Grundstücke erschlossen, die in der Gemarkung Masburg (Ortsteil Breitenbuch) liegen. Hierbei handelt es sich um die Grundstücke Gemarkung Masburg, Flur 15, Flurstücke: Nr. 116/1, Nr. 116/2, Nr. 126/6, Nr. 127/1, Nr. 151/1, Nr. 152, Nr. 153/2, Nr. 153/3, Nr. 153/4, Nr. 155, Nr. 157.

Die betroffenen Grundstücke sind in dem der Zweckvereinbarung beigefügten Lageplan farblich dargestellt.

Diese, in der Gemarkung Masburg liegenden Grundstücke, werden - mit Ausnahme der Grundstücke Flur 15 Nr. 126/6 und Nr. 127/1 - ausschließlich durch Verkehrsanlagen im Eigentum bzw. in der Baulast der Ortsgemeinde Leienkaul erschlossen. Die Grundstücke Flur 15 Nr. 126/6 und Nr. 127/1 werden auch durch die Verkehrsanlagen im Eigentum bzw. in der Baulast der Ortsgemeinde Leienkaul erschlossen.

Entscheidungen der Ortsgemeinde Leienkaul zum Ausbau der oder zu baulichen Maßnahmen an den dort im Eigentum bzw. in der Baulast der Ortsgemeinde Leienkaul liegenden Verkehrsanlagen haben Auswirkungen auf die in Absatz 1 genannten Grundstücke in der Gemarkung Masburg oder können Auswirkungen auf diese haben. Die Ortsgemeinden Leienkaul und Masburg kommen daher überein, Regelungen hierüber gemeinsam in dieser Zweckvereinbarung zu treffen.

(2) Die Ortsgemeinde Masburg kann von den vorstehend betroffenen Grundstückseigentümern, mit Ausnahme der Grundstückseigentümer der Grundstücke Flur 15 Nr. 126/6 und Nr. 127/1, keine Ausbaubeiträge nach den Bestimmungen des Kommunalabgabengesetzes erheben, da die betreffenden Grundstücke nicht durch im Eigentum bzw. in der Baulast der Ortsgemeinde Masburg stehenden Verkehrsanlagen erschlossen werden.

(3) Die Ortsgemeinde Leienkaul kann für die Grundstücke, die in der Gemarkung Masburg liegen, keine Ausbaubeiträge nach den Bestimmungen des Kommunalabgabengesetzes erheben, da diese Grundstücke nicht von der Abgabenhoheit und der Beitragssatzung der Ortsgemeinde Leienkaul erfasst werden.

§ 2

Zweck der Vereinbarung

(1) Zweck dieser Vereinbarung ist die Sicherstellung der Erschließung der in § 1 Absatz 1 dieser Vereinbarung genannten Grundstücke in der Ortsgemeinde Masburg – Ortsteil Breitenbruch -, die Tragung der Straßenbaulast und, abgeleitet hieraus, die Regelung des Rechts der Veranlagung von wiederkehrenden Straßenausbaubeiträgen.

(2) Zu diesem Zweck überträgt die Ortsgemeinde Masburg ihre grundsätzliche Verpflichtung zur Erschließung der in § 1 Absatz 1 dieser Vereinbarung genannten Grundstücke auf die Ortsgemeinde Leienkaul. Die Ortsgemeinde Leienkaul übernimmt diese Erschließungslast und trägt die alleinige Straßenbaulast der diese Grundstücke erschließenden (oder zusätzlich erschließenden) Verkehrsanlagen in der Ortsgemeinde Leienkaul, soweit diese nicht durch klassifizierte Baulastträger getragen wird.

(3) Ableitend aus der Aufgabenübertragung nach Absatz 2 wird hiermit auch das Recht auf Erhebung von wiederkehrenden Beiträgen für den Ausbau von Verkehrsanlagen nach dem Kommunalabgabengesetz für die in § 1 Absatz 1 genannten Grundstücke auf die Ortsgemeinde Leienkaul übertragen; für die Grundstücke Flur 15 Nr. 126/6 und Nr. 127/1 nur insoweit, als diese durch die in der Baulast der Ortsgemeinde Leienkaul liegenden Verkehrsanlagen zusätzlich erschlossen werden.

§ 3

Satzungszustimmung

(1) Die Ortsgemeinde Masburg stimmt der Satzung der Ortsgemeinde Leienkaul zur Erhebung von wiederkehrenden Beiträgen für den Ausbau von Verkehrsanlagen in der Abrechnungseinheit „Ortsgebiet Leienkaul“ vom 11.12.2024 zu. Somit gilt diese Satzung auch für die in § 1 Absatz 1 dieser Vereinbarung genannten Grundstücke.

(2) Die Satzung wird im Mitteilungsblatt der Verbandsgemeinde Kaisersesch jeweils unter den Gemeinden-Rubriken Leienkaul und Masburg öffentlich bekannt gemacht.

(3) Die Absätze 1 und 2 gelten für Satzungsänderungen und Neufassungen der Satzung entsprechend.

§ 4

Vermittlung bei Streitigkeiten

Die Vermittlung bei Streitigkeiten aus dieser Vereinbarung wird dem Bürgermeister der Verbandsgemeinde Kaisersesch übertragen. Die Vermittlung ist vor einer gerichtlichen Auseinandersetzung anzurufen.

§ 5

Gültigkeit

(1) Diese Vereinbarung bedarf der Bestätigung durch die Aufsichtsbehörde.

(2) Diese Vereinbarung gilt solange, bis sie durch einseitige schriftliche Erklärung einer der beteiligten Gemeinden zum Ende eines Kalenderjahres unter Einhaltung einer Frist von 6 Monaten gekündigt wird. Eine rückwirkende Kündigung ist ausgeschlossen.

(3) Die Vereinbarung erlischt, wenn die in § 3 genannte Satzung der Ortsgemeinde Leienkaul ersatzlos außer Kraft tritt.

§ 6

Inkrafttreten

(1) Dieser Vereinbarung wurde von den Gemeinderäten Leienkaul (Beschluss vom 10.12.2024 und Masburg (Beschluss vom 10.12.2024 und 12.12.2024 zugestimmt.

(2) Diese Zweckvereinbarung tritt am Tag nach der öffentlichen Bekanntmachung in Kraft.

Leienkaul, den 12.12.2024
(Siegel)
Gez.
Burkhard Klinkner,
Ortsbürgermeister
Masburg, den 12.12.2024
(Siegel)
Gez.
Patrick Schopp,
Ortsbürgermeister