Titel Logo
Saarburger Kreisblatt
Ausgabe 45/2022
Amtliche Bekanntmachungen und Mitteilungen
Zurück zur vorigen Seite
Zurück zur ersten Seite der aktuellen Ausgabe

Bekanntmachung

Satzungsbeschluss vom 13.10.2022

Rechtsverbindlichkeit des Bebauungsplans der Ortsgemeinde Lampaden für das Teilgebiet „Zum Sonnenhang II“

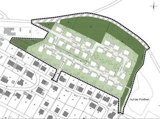
Der Ortsgemeinderat Lampaden hat in seiner Sitzung am 13.10.2022 den Bebauungsplan für das Teilgebiet „Zum Sonnenhang II“ als Satzung gemäß § 10 Abs. 1 des Baugesetzbuches (BauGB) beschlossen. Die Begründung zum Bebauungsplan wurde gebilligt. Der Satzungsbeschluss wird hiermit bekannt gemacht. Der Bebauungsplan tritt mit dieser Bekanntmachung in Kraft. Der Geltungsbereich des Gebiets ergibt sich aus nachstehendem Plan.

Jede Bürgerin/Jeder Bürger kann den Bebauungsplan nebst Begründung beim Bauamt der Verbandsgemeindeverwaltung Saarburg-Kell, Schlossberg 6, 54439 Saarburg, Raum 1.OG 45, während der allgemeinen Sprechstunden einsehen und über den Inhalt Auskunft verlangen. Die Satzungsunterlagen sind ebenso unter der Internetadresse:

https://www.saarburg-kell.de/saarburg_kell/Bauen & Wohnen/Bebauungspläne/Lampaden/ veröffentlicht.

Hinweise:

Auf die Vorschriften des § 44 Abs. 3 Satz 1 und 2 sowie Abs. 4 BauGB über die fristgemäße Geltendmachung etwaiger Entschädigungsansprüche für Eingriffe in eine bisher zulässige Nutzung durch diesen Bebauungsplan und über das Erlöschen von Entschädigungsansprüchen wird hingewiesen.

Gemäß § 215 BauGB wird darauf hingewiesen, dass unbeachtlich werden

eine nach § 214 Abs. 1 Satz 1 Nrn. 1 bis 3 BauGB beachtliche Verletzung der dort bezeichneten Verfahrens- und Formvorschriften,

nach § 214 Abs. 2a BauGB beachtliche Fehler bei der Aufstellung von Bebauungsplänen im beschleunigten Verfahren nach § 13a BauGB, auch in Verbindung mit § 13b BauGB und

nach § 214 Abs. 3 Satz 2 BauGB beachtliche Mängel des Abwägungsvorganges

wenn sie nicht innerhalb von einem Jahr seit Bekanntmachung dieses Bebauungsplans schriftlich gegenüber der Ortsgemeinde Lampaden unter Darlegung des die Verletzung begründenden Sachverhaltes geltend gemacht worden sind.

Satzungen, die unter Verletzung von Verfahrens- oder Formvorschriften der Gemeindeordnung für Rheinland-Pfalz (GemO) und der hierzu ergangenen Rechtsvorschriften zustande gekommen sind, gelten ein Jahr nach der Bekanntmachung als von Anfang an gültig zustande gekommen. Dies gilt nicht, wenn

1.

die Bestimmungen über die Öffentlichkeit der Sitzung, die Genehmigung, die Ausfertigung oder die Bekanntmachung der Satzung verletzt worden sind, oder

2.

vor Ablauf der in Satz 1 genannten Frist die Kreisverwaltung Trier-Saarburg den Beschluss beanstandet oder jemand die Verletzung der Verfahrens- oder Formvorschriften gegenüber der Verbandsgemeindeverwaltung Saarburg-Kell oder dem Ortsbürgermeister der Ortsgemeinde Lampaden unter Bezeichnung des Sachverhaltes, der die Verletzung begründen soll, geltend gemacht hat.

Hat jemand eine Verletzung nach Satz 2 Nr. 2 geltend gemacht, so kann nach Ablauf der in Satz 1 genannten Frist jedermann diese Verletzung geltend machen.

Sprechzeiten der Verbandsgemeindeverwaltung Saarburg-Kell:

montags bis donnerstags von 8.30 - 12.00 Uhr und 14.00 - 16.00 Uhr

donnerstags zusätzlich nach Vereinbarung von 16.00 - 18.00 Uhr

freitags von 8.30 - 12.00 Uhr

(nur nach telefonischer Terminvereinbarung)

Lampaden, 13.10.2022
Ortsgemeinde Lampaden
gez. Martin Marx, Ortsbürgermeister