Titel Logo
Kelsterbach aktuell
Ausgabe 6/2023
Titelseite
Zurück zur vorigen Seite
Zurück zur ersten Seite der aktuellen Ausgabe
-

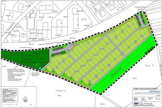
Öffentlichkeitsbeteiligung zur Erweiterung der Gartenanlage am Südpark beginnt

Zwischen Südpark und Südlicher Ringstraße sollen neue Kleingärten entstehen. Grafik: FIRU Koblenz GmbH

Auf dem weiß umränderten Gebiet soll die neue Gartenanlage entstehen.

Die Kelsterbacher Stadtverordnetenversammlung hat auf ihrer jüngsten Sitzung mehrheitlich beschlossen, die Öffentlichkeitsbeteiligung zur geplanten Erweiterung der Gartenanlage am Südpark einzuleiten. Folglich wird der Entwurf des entsprechenden Bebauungsplans in Kürze öffentlich bekanntgemacht und ausgelegt. Das Plangebiet ist zirka drei Hektar groß, es schließt nördlich an die bereits bestehende Kleingartenanlage am Südpark an und wird durch die Südliche Ringstraße begrenzt. Das Plangebiet besteht derzeit überwiegend aus landwirtschaftlicher Brachfläche. Durch die Erweiterung der Gartenanlage möchte die Stadt Kelsterbach die große Nachfrage nach Freizeit- und Erholungsgärten decken.

Durch die Aufstellung des Bebauungsplanes soll eine geordnete Erschließung und Entwicklung des Plangebietes vorbereitet und die Entwicklung als Freizeit- und Erholungsgärten planungsrechtlich abgesichert werden. Vorgesehen ist es, rund 80 Gartenparzellen mit jeweils einer Gartenhütte anzulegen. Die Hütten sollen eine Grundfläche von zwölf Quadratmetern nicht überschreiten und jeweils um eine Terrasse mit maximal zwanzig Quadratmetern Grundfläche ergänzt werden können.

Die zukünftigen Gartenparzellen werden nicht Bestandteil des angrenzenden Kleingartenvereins, sondern von der Stadt Kelsterbach einzeln verpachtet. Die bestehende Kleingartenanlage am Südpark sowie die Fläche der zukünftigen Gartenparzellen sind zukünftig auch räumlich durch den bestehenden Verlauf des Regionalparkkorridors voneinander getrennt.

Zum Plangebiet gehört das im Westen gelegene Forsthaus. Das Nebengebäude wird derzeit vom Kommunalbetrieb der Stadt Kelsterbach genutzt, was auch künftig geschehen soll. Das Forsthaus sollen die Pächter der künftigen Gartenanlage gemeinschaftlich nutzen, beispielsweise können dort Seminarräume, Sozialräume und Toiletten eingerichtet werden.

Der Bebauungsplan sieht vor, dass höchstens 30 Prozent der Flächen für bauliche Anlagen – einschließlich der Wege – in Anspruch genommen werden dürfen. Damit soll ein möglichst großer Anteil natürlicher Böden als Grundlage für die gärtnerische Nutzung gesichert werden. Im für das Bebauungsplanverfahren erstellten Umweltbericht heißt es, die Auswirkungen durch die zusätzliche Versiegelung bei Durchführung der Planung seien punktuell, kleinräumig und wenig tiefgründig. Der Umfang an zusätzlichen Bodenversiegelungen in den Gartenanlagen sowie an Baumasse und -material seien vergleichsweise gering.

Durch das Anlegen der Gärten gehen im Plangebiet vorhandene Gehölzbestände, Mähwiesen und Ackerbrachen verloren. Durch den Verlust dieser Lebensraumtypen, die mit hohen Biotopwertigkeiten versehen sind, ergibt sich ein erheblicher Eingriff, der im Geltungsbereich nicht kompensierbar ist. Die Umweltprüfung stellte ein Defizit von zirka 490.000 Biotopwertpunkten fest. Bis zum Satzungsbeschluss des Bebauungsplanes will die Stadt Kelsterbach klären, welche Ausgleichsmaßnahmen sie innerhalb ihrer Gemarkung vornehmen kann. Fest steht, dass eine spezifische Artenschutzmaßnahme für das im Plangebiet heimische Gelbe Filzkraut nötig ist, um dessen Fortbestand in Kelsterbach zu sichern.

Bürgermeister Manfred Ockel machte vor der Abstimmung in der Stadtverordnetenversammlung noch einmal den großen Bedarf an Freizeit- und Erholungsgärten bei der Kelsterbacher Bevölkerung deutlich. Dies sei der mit am häufigsten geäußerte Wunsch vieler Bürgerinnen und Bürger, insbesondere solcher, die mit großer Familie in kleinen Wohnungen lebten. Deshalb sei es das Ziel der Stadt, so viele Kleingärten wie möglich zu schaffen.

Die WIK-Fraktion zeigte sich nicht überzeugt von der vorgelegten Planung. Man hege Bedenken gegen den Umstand, dass bis zu 30 Prozent der Flächen versiegelt würden, machte Fraktionsvorsitzender Christian Hufgard deutlich. Es liege auch kein Plan für den Ausgleich des Eingriffs in die Frischluftschneise vor, der aber Bedingung sei für die Zustimmung der WIK. Die Stadtverordneten der Wählerinitiative stimmten folglich gegen die Beschlussvorlage, ein Vertreter der Fraktion „Die Linke / FNK“ enthielt sich und die übrigen Fraktionen billigten die Vorlage. (wö)