Titel Logo
Treburer Nachrichten
Ausgabe 30/2025
Amtliche Bekanntmachungen und Informationen
Zurück zur vorigen Seite
Zurück zur ersten Seite der aktuellen Ausgabe

Bauleitplanung Trebur

Bebauungsplan „Kita Kleine Welt“

Bekanntmachung der Veröffentlichung des Entwurfs gem. § 3 Abs. 2 BauGB

Die Gemeindevertretung der Gemeinde Trebur hat in ihrer Sitzung am 14.07.2023 den Aufstellungsbeschluss des Bebauungsplanes „Kita Kleine Welt“ gefasst.

In ihrer Sitzung am 23.05.2025 hat die Gemeindevertretung den Entwurf des Bebauungsplans „Kita Kleine Welt“ beschlossen außerdem wurde beschlossen die Veröffentlichung nach § 3 Abs. 2 BauGB und die Behördenbeteiligung nach § 4 Abs. 2 BauGB durchzuführen.

Es wird bekannt gegeben, dass die Entwurfsplanung zum Bebauungsplan, insgesamt bestehend aus der Planzeichnung, den textlichen Festsetzungen und der Begründung sowie dem Artenschutzgutachten in der Zeit von Montag, den 04.08.2025 bis einschließlich Freitag, den 05.09.2025 gemäß § 3 Abs. 2 BauGB auf der Internetseite der Gemeinde Trebur (Link: www.trebur.de) im PDF-Format veröffentlicht werden. Auf die vorgenannte Internetseite der Gemeinde Trebur wird auch im Zentralen Internetportal für Bauleitplanungen in Hessen (Link: https://bauleitplanung.hessen.de) verwiesen.

Gleichzeitig kann sich die Öffentlichkeit gemäß § 13a Abs. 3 Nr. 2 BauGB über die allgemeinen Ziele und Zwecke der Planung sowie die wesentlichen Auswirkungen der Planung des Bebauungsplanes unterrichten.

Zusätzlich liegen die Planunterlagen in dieser Zeit während der allgemeinen Dienststunden im Rathaus Trebur, Bauamt, Zimmer 13 (im Erdgeschoss), Herrngasse 3, 65468 Trebur aus.

Während der Veröffentlichungsfrist können Stellungnahmen zu den Zielen und Zwecken der Planung und zum Entwurf beim Gemeindevorstand der Gemeinde Trebur schriftlich (bevorzugt per E-Mail: gemeinde@trebur.de) abgegeben oder mündlich zu Protokoll gebracht werden.

Es wird darauf hingewiesen, dass nicht innerhalb der Veröffentlichungsfrist abgegebene Stellungnahmen bei der Beschlussfassung über den Bebauungsplan gemäß § 4a Abs. 5 BauGB unberücksichtigt bleiben können, sofern die Gemeinde deren Inhalt nicht kannte und nicht hätte kennen müssen und deren Inhalt für die Rechtmäßigkeit des Bebauungsplanes nicht von Bedeutung ist.

Im Rahmen der Abgabe einer Stellungnahme werden personenbezogene Daten, insbesondere Name, Anschrift, Telefonnummer, die allein zur Information über das durchgeführte Verfahren dienen, verarbeitet. Mit dieser Verarbeitung erklären Sie sich mit Abgabe der Stellungnahme einverstanden. Das Büro Planungsgruppe Darmstadt, Alicenstraße 23, 64293 Darmstadt ist mit der Auswertung der Stellungnahmen beauftragt. Sie willigen ein, dass die Gemeinde Trebur und das o.g. Büro Ihnen postalisch oder per Mail Informationen zum durchgeführten Verfahren zukommen lässt. Sie sind gemäß Art. 15 Datenschutzgrundverordnung (DSGVO) jederzeit berechtigt, gegenüber der Gemeinde Trebur und dem o.g. Büro um umfangreiche Auskunftserteilung zu den zu Ihrer Person gespeicherten Daten zu ersuchen. Gemäß Art. 17 DSGVO können Sie jederzeit gegenüber der Gemeinde Trebur und dem o.g. Büro die Berichtigung, Löschung und Sperrung einzelner personenbezogener Daten verlangen.

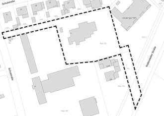
Räumlicher Geltungsbereich

Der Geltungsbereich umfasst in der Flur 1, der Gemarkung Geinsheim die Flurstücke 466/16 und 535/3 (tlw.) sowie in der Flur 3, der Gemarkung Geinsheim die Flurstücke 311 und 312/1 (tlw.).

Anlass und Ziel des Bebauungsplanes sowie der Änderung des Flächennutzungsplans

Ziel der Planung ist es die bestehende Nutzung als Kindertagesstätte zu erhalten und gleichzeitig neuen Wohnraum im Ortsteil Geinsheim zu schaffen. Die Planung sieht vor, auf der Fläche der bestehenden Kindertagesstätte „Kleine Welt“ einen gemischtgenutzten Neubau zu entwickeln. Im Zuge dessen sollen die bestehenden Kita-Räumlichkeiten abgerissen und im Erdgeschoss sowie im ersten Obergeschoss des Neubaus neu untergebracht werden. In den darüberliegenden Geschossen sollen Wohnungen entwickelt werden. Es handelt sich somit um ein Nachverdichtungsvorhaben im Sinne einer nachhaltigen städtebaulichen Innenentwicklung. So ermöglicht die „vertikale“ Entwicklung der bereits bebauten Fläche im Innenbereich des Ortsteils Geinsheim gleichzeitig die Versorgung der Bevölkerung mit Wohnraum und die Verwirklichung und Sicherung von Infrastruktureinrichtungen.

Durchführung des Bebauungsplanes im beschleunigten Verfahren nach § 13a BauGB

Die bauliche Entwicklung kann als Bebauungsplan der Innenentwicklung bewertet werden. Das beschleunigte Verfahren nach § 13a BauGB kann angewandt werden, weil die durch den Bebauungsplan zulässige Grundfläche gemäß § 19 Abs. 2 BauNVO unterhalb des Grenzwertes für ein beschleunigtes Verfahren von 20.000 m² liegt.

Es wird darauf hingewiesen, dass von der Durchführung einer Umweltprüfung sowie von der Angabe nach § 3 Abs. 2 Satz 4 BauGB, welche Arten umweltbezogener Informationen verfügbar sind abgesehen wird (§ 13a Abs. 2 i.V.m. § 13 Abs. 3 BauGB).

Negative Auswirkungen auf die Erhaltungsziele und Schutzzwecke der Gebiete von gemeinschaftlicher Bedeutung und der Europäischen Vogelschutzgebiete im Sinne des Bundesnaturschutzgesetzes sind durch die vorliegende Planung nicht zu befürchten (vgl. § 1 Abs. 6 Nr. 7b BauGB).

Trebur, den 21.07.2025
Der Gemeindevorstand der Gemeinde Trebur
Jochen Engel
Bürgermeister