Titel Logo
Birkenfelder Anzeiger
Ausgabe 15/2025
Amtliche Bekanntmachungen
Zurück zur vorigen Seite
Zurück zur ersten Seite der aktuellen Ausgabe

Öffentliche Bekanntmachung

Bauleitplanung der Stadt Birkenfeld

Bebauungsplan „Haesgeswiesen – 7. Änderung“

Aufstellungsbeschluss, frühzeitige Beteiligung der Öffentlichkeit gemäß § 3 Abs. 1 Baugesetzbuch (BauGB) und örtliche Bauvorschriften

Gemäß § 2 Abs. 1 BauGB (in der derzeit gültigen Fassung) wird hiermit öffentlich bekannt gemacht:

Um die bauliche und sonstige Nutzung nach Maßgabe des BauGB und der Baunutzungs-verordnung (BauNVO) zuzuordnen und zu leiten, hat der Stadtrat der Stadt Birkenfeld am 04.02.2025 die Aufstellung der 7. Änderung des Bebauungsplans „Haesgeswiesen“ beschlossen.

In gleicher Sitzung hat der Stadtrat den Bebauungsplanvorentwurf und die mit ihm aufgestellten örtlichen Bauvorschriften „Haesgeswiesen - 7. Änderung“ gebilligt und die Durchführung der sogenannten „frühzeitigen“ Beteiligung der Öffentlichkeit, sowie der Beteiligung und Unterrichtung der Behörden und sonstigen Träger öffentlicher Belange beschlossen.

Städtebauliches Ziel dieser Änderungsaufstellung ist die Anpassung an aktuelle Veränderungen durch nachgefragte Bau- und Dachformen zur Realisierung zeitgerechter Wohnbauprojekte. Dabei werden die Festsetzungen zur grundsätzlichen Gebietsart allgemeines Wohngebiet § 4 BauNVO, Mischgebiet § 6 BauNVO und Sondergebiet § 11 BauNVO nicht verändert.

Im ursprünglichen Bebauungsplan aus dem Jahr 2004 sind in Teilbereichen Hausgruppen festgesetzt. Aus den Erfahrungen im Zuge der Vermarktung von vier Bauabschnitten ergab sich allerdings dafür keine Nachfrage, sondern lediglich für Einzel- bzw. Doppelhäuser.

Die Umsetzungsmöglichkeit von Flachdächern (mit/ohne Staffelgeschoß) und Pultdächern soll mit der Änderung ebenfalls gegeben werden. Darüber hinaus ergeben sich Anpassungen in Bereichen der Überschreitung der zulässigen Grundfläche und Nebenanlagen. Die Realisierung von sogenannten „Schottergärten“ wird ausgeschlossen. Im 5. Bauabschnitte entsteht ein Teilbereich, der die Realisierung von sogenannten „Tiny-Häusern ermöglicht. Im nördlichsten Teilbereich der Geltungsbereichsgrenze wird die Palette der Nutzungsschablonen um die Nutzungsschablone „O“ ergänzt, welche die Grundflächen und Geschossflächenzahl anpasst. Somit gibt es Nutzungsschablonen A bis O, wobei L entfällt.

Durch die Anpassung bzw. Änderung des Bebauungsplans ergeben sich für die sozialen, wirtschaftlichen, sowie umwelttechnischen Verhältnisse keine nachteiligen Auswirkungen.

Alle Änderungen ergeben sich aus dem offengelegten Planmaterial in Zeichnung und Text.

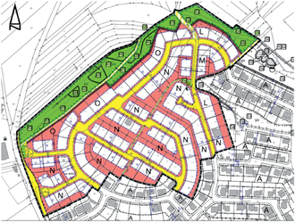
Der Geltungsbereich ist im folgenden Lageplan mit einer schwarz unterbrochenen Linie dargestellt. Der Änderungsbereich ist zusätzlich farblich gestaltet und liegt vollflächig im rechtskräftigen Bebauungsplan „Haesgeswiesen“, der im Übrigen unberührt bleibt.

Geltungsbereich/Lageplan:

Frühzeitige Beteiligung der Öffentlichkeit gemäß § 3 Abs. 1 BauGB:

Die Darlegung der Planung und Anhörung der Bürger erfolgt durch Veröffentlichung der Planunterlagen (Geltungsbereich, Bebauungsplanvorentwurf, textliche Festsetzung und Begründung) in der Zeit von

Donnerstag, 10.04.2025 bis Mittwoch 07.05.2025

auf der Homepage der Verbandsgemeinde Birkenfeld https://www.vg-birkenfeld.de/100 zur Ansicht und zum Download bereit. Ergänzend sind die Planunterlagen auch über das Internetportal des Landes Rheinland-Pfalz (Geoportal) abrufbar.

Zusätzlich stehen alle Planunterlagen im genannten Zeitraum bei der Verbandsgemeinde-verwaltung Birkenfeld (Fachbereich 2, bauliche Infrastruktur, Auf dem Römer 17, 55765 Birkenfeld, Zimmer 6) während der Öffnungszeiten (montags bis donnerstags von 8:30 Uhr bis 12:00 Uhr und von 14:00 Uhr bis 16 Uhr und freitags von 8:30 Uhr bis 12:00 Uhr) zur Ansicht bereit.

Während der genannten Veröffentlichungsfrist haben die Bürger die Möglichkeit sich über die allgemeinen Ziele und Zwecke der Planung zu informieren und sich im genannten Zeitraum zur Planung zu äußern.

Birkenfeld, 31.03.2025
Hans-Peter Lampel
Stadtbürgermeister