Titel Logo
Birkenfelder Anzeiger
Ausgabe 24/2023
Amtliche Bekanntmachungen
Zurück zur vorigen Seite
Zurück zur ersten Seite der aktuellen Ausgabe

Öffentliche Bekanntmachung

Bauleitplanung der Stadt Birkenfeld

Bebauungsplan „Haesgeswiesen 6. Änderung“ und örtliche Bauvorschriften

Aufstellungsbeschluss und förmliche Beteiligung der Öffentlichkeit gemäß § 3 Abs. 2 Baugesetzbuch (BauGB) als Bebauungsplan der Innenentwicklung gemäß § 13a BauGB

Gemäß § 2 Abs. 1 BauGB (in der derzeit gültigen Fassung) wird hiermit öffentlich bekanntgemacht:

Um die bauliche und sonstige Nutzung nach Maßgabe des BauGB und der Baunutzungsverordnung (BauNVO) zu ordnen und zu leiten hat der Stadtrat der Stadt Birkenfeld am 23.05.2023 die Aufstellung der 6. Änderung des Bebauungsplanes „Haesgeswiesen“ im beschleunigten Verfahren nach § 13a BauGB beschlossen. Im beschleunigten Verfahren gelten die Vorschriften des vereinfachten Verfahrens nach § 13 Abs. 2 und 3 Satz 1 BauGB entsprechend. In gleicher Sitzung hat der Stadtrat den Bebauungsplanentwurf und die mit ihm aufgestellten örtlichen Bauvorschriften „Haesgeswiesen 6. Änderung“ gebilligt und die Durchführung der förmlichen Beteiligung der Öffentlichkeit sowie der Behörden und sonstigen Träger öffentlicher Belange beschlossen.

Städtebauliches Ziel dieser Änderungsaufstellung ist die Ermöglichung der Realisierung von Bauprojekten in einer barrierefreien seniorengerechten Bauausführung und Wohnform. Eine zweigeschossige Wohnbebauung mit maximal sechs Wohneinheiten, bezogen auf den Änderungsbereich den die Flurstücke 403 und 402, Flur 3 der Gemarkung Birkenfeld, vollflächig im Geltungsbereich „Haesgeswiesen“ gelegen, bilden, ist geplant.

Die dafür benötigten Änderungen:

-

Die Grundflächenzahl wird mit 0,4 festgesetzt

-

Die Geschossflächenzahl wird mit 0,8 festgesetzt

-

Im Hinblick auf die neu zu errichtenden Straßen zur Erschließung des Plangebietes, wird der Höhenbezugspunkt auf das fertige Straßenniveau geändert

-

Um die Errichtung eines Mehrfamilienhauses zu ermöglichen, wird die Anzahl der maximal zu errichtenden Wohneinheiten auf 6 erhöht

-

Schottergärten werden im Hinblick auf den Klima-, Natur- und Artenschutz ausgeschlossen

-

Die Festsetzungen zur Dachform und -neigung werden konkretisiert. Es sind nunmehr neben geneigten Dächern auch Flachdächer mit einer Neigung von 0 Grad bis 45 Grad zulässig.

Durch die Änderungen wird eine Anpassung der zeichnerischen Festsetzungen für den Bereich der 6. Änderung lediglich für die sogenannte Nutzungsschablone erforderlich.

Im beschleunigten Verfahren wird von der Umweltprüfung nach § 2 Abs. 4 BauGB, von dem Umweltbericht nach § 2a BauGB, von der Angabe nach § 3 Abs. 2 Satz 2 BauGB, welche Arten umweltbezogener Informationen verfügbar sind, sowie von der zusammenfassenden Erklärung nach § 10a Abs. 1 BauGB abgesehen.

Hinsichtlich der Eingriffe in Natur und Landschaft kommt es in der vorliegenden Änderung zu keinen weiteren erheblichen Eingriffen. Abwägungserhebliche Belange des Natur- und Landschaftsschutzes werden nicht berührt. Negative Auswirkungen auf die Erhaltungsziele und Schutzzwecke der Gebiete von gemeinschaftlicher Bedeutung sind in naturschutzfachlicher Hinsicht durch die vorliegende, marginale Änderungsplanung, nicht zu befürchten.

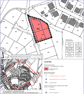
Der Geltungsbereich ist im folgenden Lageplan mit einer schwarz unterbrochenen Linie umrandet dargestellt. Der Änderungsbereich ist zusätzlich farblich dunkel hinterlegt und liegt vollflächig im rechtskräftigen Bebauungsplan „Haesgeswiesen“, der im Übrigen unberührt bleibt und ebenso mit einer Linie umgrenzt abgebildet ist.

Geltungsbereich / Lageplan:

Der Entwurf des Bebauungsplanes mit Textfestsetzungen und Begründung liegt gemäß § 3 Abs. 2 BauGB in der Zeit vom

Donnerstag, 22.06.2023 bis Freitag, 21.07.2023

bei der Verbandsgemeindeverwaltung Birkenfeld Bauverwaltung, Auf dem Römer 17, 55765 Birkenfeld, Zimmer 6 während der Öffnungszeiten vormittags: Montag bis Freitag von 8.30 Uhr bis 12.00 Uhr, nachmittags: Montag bis Donnerstag von 14.00 Uhr bis 16.00 Uhr sowie nach telefonischer Vereinbarung auch außerhalb dieser Zeit, zu jedermanns Einsicht öffentlich aus.

Zusätzlich stehen alle Planunterlagen im genannten Zeitraum auch auf der Homepage der Verbandsgemeinde Birkenfeld https://www.vg-birkenfeld.de/031.html zur Ansicht und zum Download bereit. Ergänzend sind die Planunterlagen auch über das Internetportal des Landes Rheinland-Pfalz (GeoPortal) abrufbar.

Während der genannten Auslegungszeit können von jedermann Stellungnahmen abgegeben werden. Fristgemäß abgegebene Stellungnahmen werden vom Stadtrat geprüft. Das Ergebnis der Prüfung wird mitgeteilt. Es wird darauf hingewiesen dass nicht innerhalb der Offenlegungsfrist abgegebene Stellungnahmen bei der Beschlussfassung über den Bebauungsplan gemäß § 3 Abs. 2 und § 4a Abs. 6 BauGB unberücksichtigt bleiben können, sofern die Gemeinde deren Inhalt nicht kannte und nicht hätte kennen müssen und deren Inhalt für die Rechtmäßigkeit des Bauleitplanes nicht von Bedeutung ist.

55765 Birkenfeld, 05.06.2023
Stadt Birkenfeld
Miroslaw Kowalski
Stadtbürgermeister