Titel Logo
Birkenfelder Anzeiger
Ausgabe 32/2022
Amtliche Bekanntmachungen
Zurück zur vorigen Seite
Zurück zur ersten Seite der aktuellen Ausgabe

Öffentliche Bekanntmachung

Ortsgemeinde Oberhambach

Aufstellungsbeschluss

Bebauungsplan und örtliche Bauvorschriften

„Sondergebiet Sport und Freizeitanlagen Aufm Gehrech“

(Ersetzung des Bebauungsplanes und der örtlichen Bauvorschriften „Tenniszentrum“)

Frühzeitige Beteiligung der Öffentlichkeit

Bebauungsplan und örtliche Bauvorschriften

„Sondergebiet Sport und Freizeitanlagen Aufm Gehrech“

(Ersetzung des Bebauungsplanes und der örtlichen Bauvorschriften „Tenniszentrum“)

Gemäß § 2 Abs. 1 Baugesetzbuch (in der derzeit gültigen Fassung) wird hiermit öffentlich bekannt gemacht:

Der Gemeinderat der Ortsgemeinde Oberhambach hat am 20.07.2022 die Aufstellung des Bebauungsplanes und die mit ihm aufgestellten örtlichen Bauvorschriften „Sondergebiet Sport und Freizeitanlagen Aufm Gehrech“ (Ersetzung des Bebauungsplanes und der örtlichen Bauvorschriften „Tenniszentrum“) beschlossen, um die bauliche und sonstige Nutzung nach Maßgabe des Baugesetzbuches (BauGB) und der Baunutzungsverordnung (BauNVO) zu ordnen und zu leiten.

In gleicher Sitzung hat der Gemeinderat den vorgestellten Bebauungsplanentwurf und die mit ihm aufgestellten örtlichen Bauvorschriften „Sondergebiet Sport und Freizeitanlagen Aufm Gehrech“ gebilligt und die Durchführung der frühzeitigen Beteiligung der Öffentlichkeit sowie der Behörden und sonstigen Träger öffentlicher Belange beschlossen.

Des Weiteren erfolgte in gleicher Sitzung die Beschlussfassung über die entsprechende Paralleländerung des Flächennutzungsplanes.

Planungsinhalt:

Die Ortsgemeinde Oberhambach beabsichtigt die Ersetzung des Bebauungsplanes „Tenniszentrum“ durch die Aufstellung des Bebauungsplanes „Sondergebiet Sport und Freizeitanlagen Aufm Gehrech“. Der 1992 genehmigte Bebauungsplan „Tenniszentrum“ verfolgte das städtebauliche Ziel Baurecht für Sport- und Freizeitanlagen i.S.v. Tennisanlagen zum Feriendorf Oberhambach zu schaffen. Diese Sport- und Freizeitanlagen wurden mit der Zweckbestimmung „Tenniszentrum“ festgesetzt und entsprechend dem Planungswillen der Gemeinde i.V.m. den Entwicklungswünschen des Vorhabenträgers gebaut und genutzt. Durch geänderte Sport- und Freizeitanforderungen wird eine Nutzungsänderung der bestehenden Halle erforderlich, die auch eine Nutzungsänderung des Bebauungsplanes verursacht. Die Nutzungsänderung soll im Rahmen des bestehenden Baukörpers erfolgen und einen weiteren Baustein zur Infrastruktur des Feriendorfes Oberhambach bilden. Angedacht ist eine „Indoorhalle“ für Kinder, Jugendliche und Erwachsene. Die „offenen“ Tennisplätze bleiben überwiegend bestehen und werden in den neuen Bebauungsplan übernommen. Der ehemalige Bebauungsplan wird demnach in seinen planerischen und textlichen Festsetzungen teilweise übernommen und auf der Grundlage aktueller und zukünftiger Planungs- und Erweiterungswünsche neu aufgestellt.

Als Art der baulichen Nutzung soll in dem Bebauungsplan ein „Sonstiges Sondergebiet“ gemäß § 11 BauNVO mit der Zweckbestimmung „Sport und Freizeitanlagen“ (Tennisanlagen und Indoorfreizeithalle) festgesetzt werden.

Die Erschließung soll über die Gemeindestraße „Eichenweg“ erfolgen.

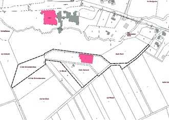
Der Geltungsbereich des Bebauungsplanes und der örtlichen Bauvorschriften ist im nachfolgenden Abgrenzungsplan mit einer schwarz unterbrochenen Linie dargestellt:

Frühzeitige Beteiligung der Öffentlichkeit gemäß § 3 Abs. 1 BauGB:

Die Darlegung der Planung und Anhörung der Bürger erfolgt durch Auslegung der Planunterlagen (Geltungsbereich, Bebauungsplanvorentwurf, Textliche Festsetzungen, Begründung, Umweltbericht, Fachbeitrag Naturschutz, Artenschutzfachbeitrag) in der Zeit von

Montag 22.08.2022 bis Donnerstag 22.09.2022

während der Öffnungszeiten (montags bis donnerstags von 8:30 Uhr bis 12:00 Uhr und von 14:00 Uhr bis 16:00 Uhr und freitags von 08:30 Uhr bis 12:00 Uhr) beim Bauamt der Verbandsgemeindeverwaltung Birkenfeld, Auf dem Römer 17 (Zimmer 7), 55765 Birkenfeld.

Zusätzlich stehen alle Planunterlagen im genannten Zeitraum auf der Homepage der Verbandsgemeinde Birkenfeld unter der Internetadresse

https://www.vg-birkenfeld.de/231.html zur Ansicht oder zum Download bereit. Ergänzend sind die Planunterlagen über das Internetportal des Landes Rheinland-Pfalz (Geoportal) abrufbar.

Während der genannten Auslegungsfrist haben die Bürger die Möglichkeit, sich über die allgemeinen Ziele und Zwecke der Planung zu informieren.

Jeder Bürger hat die Möglichkeit sich im genannten Zeitraum zur Planung zu äußern.

55765 Oberhambach, 01.08.2022
Günter Stolz, Ortsbürgermeister