Titel Logo
Rund um Hermeskeil
Ausgabe 6/2024
3 - Aus den Hochwaldgemeinden
Zurück zur vorigen Seite
Zurück zur ersten Seite der aktuellen Ausgabe

Planungsänderungen beim Neubaugebiet in Gusenburg

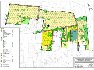
Die Skizze zeigt den Änderungsplan für das Neubaugebiet. Die rot umrandeten Flächen stellen die Magerwiesen dar. Grafik: Gde Gusenburg

Markante Einrichtungen in der Gemeinde werden neu beschildert

Zu einer Routinesitzung hatte Ortsbürgermeister Siegfried Joram die Damen und Herren des Rates am Dienstag vergangener Woche ins Bürgerhaus eingeladen. Neben 10 Ratsmitgliedern konnte er von der Verwaltung Jens Lauer als Schriftführer begrüßen, Zuschauer waren keine anwesend. Nach Begrüßung und Feststellung der Beschlussfähigkeit ging es an die Tagesordnungspunkte, nach 30 Minuten war die Sitzung abgewickelt.

Unter dem obligatorischen Punkt „Informationen des Ortsbürgermeisters“ teilte Joram mit, dass der Weihnachtsmarkt Anfang Dezember gut über die Bühne gegangen sei, die Gemeinde mit Sven Adams einen neuen Gemeindearbeiter eingestellt hat, es bei der Brennholzversteigerung keine Probleme gab, noch einige Baustellen in der Ortslage abgewickelt werden müssen und in der Kreuzstraße der Trafo von der Firma Westnetz umgesetzt wird.

Für das geplante Neubaugebiet „Moosbruch/Hinter der Anwand“ muss aus bekannten Gründen die Planung geändert werden. Im neuen Plan (s. Skizze) sind zwei Flächen als Magerwiesen ausgewiesen, diese fallen aus der Bebauung, dadurch reduziert sich die Anzahl der Baugrundstücke von 35 auf 26. Dadurch ist ein Ausnahmeantrag wegen der naturschutzfachlichen Befreiung an die Untere Naturschutzbehörde erforderlich geworden, dieser soll im Sommer gestellt werden. Zwangsläufig sind damit auch neue Planungsleistungen in Auftrag zu geben. Zusätzliche Planungsvarianten sind darzustellen, Planzeichnungen müssen überarbeitet werden, eine Biotopkartierung der Alternativfläche ist erforderlich, der Ausnahmeantrag an die Kreisverwaltung und der Umweltbericht müssen angepasst werden. Ohne Diskussion segnete der Rat diese Änderungen ab. Im Herbst, so Joram, wird die Offenlage der geänderten Planung erfolgen, mit den Erschließungsarbeiten kann dann, sofern es keine weiteren Verzögerungen gibt, in 2025 begonnen werden.

Markante Einrichtungen in und außerhalb der Ortslage sollen neu beschildert werden. Dorfbegleiterin Hillu Pawlik stellte die in einer Arbeitsgruppe angedachten Schilder und die Standorte vor. Neu ausgewiesen werden sollen die Grenderichhalle, die Freizeitanlage, der Spielplatz in der Kreuzstraße und der Schulgarten. Der Bouleplatz erhält eine Info-Schild, der Generationentreff eine Benutzungsordnung. Marketingfachmann Bernd Neisen hat für die Schilder Entwürfe erstellt. Die Gesamtkosten für Schilder, Pfosten und Befestigungsmaterial werden sich auf rd. 1.580 Euro belaufen. Die markanten Punkte sollen in Google-Maps aufgenommen werden. bb