Titel Logo
Unsere Heimat VG Herrstein-Rhaunen
Ausgabe 14/2023
Öffentliche Bekanntmachungen der Ortsgemeinden der Nationalparkverbandsgemeinde
Zurück zur vorigen Seite
Zurück zur ersten Seite der aktuellen Ausgabe

Öffentliche Bekanntmachung

Bebauungsplan „Solarpark Auf´m Mühlenberg“

Bekanntmachung der frühzeitigen Beteiligung der Öffentlichkeit

Der Ortsgemeinderat der Ortsgemeinde Sien hat in seiner Sitzung am 25.11.2021 gemäß § 1 Abs. 3 und § 2 Abs. 1 BauGB beschlossen, den Bebauungsplan „Solarpark Auf’m Mühlenberg“ aufzustellen.

Die Leipziger Energie GmbH & Co. KG, welche die Entwicklung und Errichtung von Erneuerbare-Energien-Projekten betreibt, strebt die Errichtung eines Solarparks in der Ortsgemeinde Sien an.

Der Solarpark dient der regenerativen Erzeugung von Strom und der gleichzeitigen Reduzierung des Verbrauchs fossiler Energieträger.

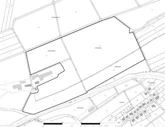
Das Plangebiet befindet sich nordwestlich des Siedlungskörpers der Ortsgemeinde Sien und nördlich angrenzend zur B 270, im Bereich des Mühlenberges.

Die Erschließung des Solarparks ist über einen Feldwirtschaftsweg gesichert, der von Südwesten an die Fläche heranführt.

Die zu überplanenden Flächen befinden sich - mit Ausnahme der öffentlichen Parzellen Gemarkung Sien, Flur 1, Flurstücke 82, 117, 120, und 124 - vollständig im Privateigentum. Die Flächen werden für die Dauer des Betriebes vom Antragsteller gepachtet. Der Antragsteller ist verfügungsberechtigt.

Der geplante Solarpark umfasst eine Fläche von insgesamt ca. 17,1 ha. Für einen ca. 12,2 ha großen Teilbereich ist die Errichtung als Agri-Photovoltaikanlage geplant.

Aktuell beurteilt sich die planungsrechtliche Zulässigkeit des Solarparks nach § 35 BauGB (Außenbereich). Danach ist die Planung nicht realisierungsfähig. Deshalb bedarf es der Aufstellung eines Bebauungsplanes.

Der Flächennutzungsplan der ehemaligen Verbandsgemeinde Herrstein stellt für das Plangebiet Dauergrünland, eine Fläche für Maßnahmen zum Schutz, zur Pflege und zur Entwicklung von Natur und Landschaft, eine oberirdische Hauptversorgungsleitung (20-kV-Freileitung) und Wasserfläche (Mühlenbach) dar. Der vorliegende Bebauungsplan widerspricht dem Entwicklungsgebot nach § 8 Abs. 2 BauGB, wonach Bebauungspläne aus dem Flächennutzungsplan zu entwickeln sind.

Gemäß § 8 Abs. 4 S. 2 BauGB kann ein vorzeitiger Bebauungsplan aufgestellt werden, bevor der Flächennutzungsplan ergänzt oder geändert ist, wenn bei Gebiets- oder Bestandsänderungen von Gemeinden oder anderen Veränderungen der Zuständigkeit für die Aufstellung von Flächennutzungsplänen ein Flächennutzungsplan fort gilt.

Im Hinblick auf den Zusammenschluss der beiden Verbandsgemeinden Herrstein und Rhaunen zum 01.01.2020 und dem damit einhergehenden Planungsbedürfnis für einen neuen gemeinsamen Flächennutzungsplan kann der vorliegende Bebauungsplan als vorzeitiger Bebauungsplan gem. § 8 Abs. 4 S. 2 BauGB aufgestellt werden.

Der in Rede stehende Bebauungsplan bedarf jedoch, da er nicht aus dem gültigen Flächennutzungsplan entwickelt ist, gemäß § 10 Abs. 2 BauGB der Genehmigung durch die Kreisverwaltung Birkenfeld als höhere Verwaltungsbehörde (vgl. § 1 Nr. 2 der Landesverordnung über die Zuständigkeiten nach dem Baugesetzbuch - ZuVO nach BauGB -).

Die genauen Grenzen des Geltungsbereiches des Bebauungsplanes sind dem beigefügten Lageplan zu entnehmen:

Gemäß § 3 Abs. 1 BauGB, in der Fassung der Bekanntmachung vom 03. November 2017 (BGBI. I S. 3634), unter Berücksichtigung der aktuell gültigen Änderungen, wird hiermit öffentlich bekannt gemacht, dass die frühzeitige Beteiligung der Öffentlichkeit in Form einer Offenlage durchgeführt wird.

Der Entwurf des Bebauungsplanes, bestehend aus der Planzeichnung (Teil A), dem Textteil (Teil B), der Begründung inklusive einer naturschutzfachlichen Kurzbeurteilung, ist in der Zeit

vom 11.04.2023 bis einschließlich 05.05.2023

während der Dienstzeiten

(Montag, Mittwoch, Freitag

von 08.00 Uhr bis 12.00 Uhr

Dienstag

von 08.00 Uhr bis 12.00 Uhr und

14.00 Uhr bis 18.00 Uhr

Donnerstag

von 08.00 Uhr bis 12.00 Uhr und

14.00 Uhr bis 16.00 Uhr)

bei der Nationalparkverbandsgemeindeverwaltung Herrstein-Rhaunen, Fachbereich 2, Bauliche Infrastruktur, Zimmer 451, Brühlstraße 16, 55756 Herrstein zu jedermanns Einsicht öffentlich einsehbar.

Der Entwurf des Bebauungsplanes kann darüber hinaus über die Internetseite der Nationalparkverbandsgemeinde Herrstein-Rhaunen (https://www.vg-hr.de/aktuelles/bebauungsplanverfahren) unter der Rubrik Ortsgemeinde Sien „Solarpark Auf’m Mühlenberg“ eingesehen werden.

Während dieser Auslegungsfrist können von jedermann Stellungnahmen schriftlich oder elektronisch per Mail an die E-Mailadresse v.schwinn@vg-hr.de vorgebracht oder nach vorheriger Terminabsprache zur Niederschrift erklärt werden.

Die Stellungnahmen werden von der Ortsgemeinde Sien geprüft. Nicht fristgerecht abgegebene Stellungnahmen können bei der Beschlussfassung über den Bebauungsplan unberücksichtigt bleiben.

Der Umweltbericht gem. § 2a BauGB wird nach Abschluss der frühzeitigen Beteiligung der Öffentlichkeit und der Behörden und sonstiger Träger öffentlicher Belange sowie der Nachbargemeinden gem. § 3 Abs. 1 BauGB, § 4 Abs. 1 BauGB und § 2 Abs. 2 BauGB fertiggestellt.

Sien, 30.03.2023
Steffen Bernhard (DS)
Ortsbürgermeister