Titel Logo
Unsere Heimat VG Herrstein-Rhaunen
Ausgabe 28/2022
Öffentliche Bekanntmachungen der Ortsgemeinden der Nationalparkverbandsgemeinde
Zurück zur vorigen Seite
Zurück zur ersten Seite der aktuellen Ausgabe

Öffentliche Bekanntmachung

Erlass einer Ergänzungssatzung in der Ortsgemeinde Niederhosenbach im Gemarkungsteil „An der Hauptstraße“ im vereinfachten Verfahren nach § 13 BauGB

Bekanntmachung der öffentlichen Auslegung

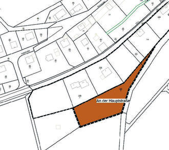
Der Ortsgemeinderat der Ortsgemeinde Niederhosenbach hat in seiner öffentlichen Sitzung am 28.04.2022 beschlossen, im Gemarkungsteil „An der Hauptstraße“ einzelne Außenbereichsflächen in den im Zusammenhang bebauten Ortsteil mit einzubeziehen.

Die Lage des Geltungsbereiches ist in der Übersichtsskizze in etwa dargestellt:

Die Beteiligung der Öffentlichkeit erfolgt in Form der Auslegung gemäß § 34 Abs. 6 in Verbindung mit § 13 Abs. 2 Nr. 2 und § 3 Abs. 2 BauGB.

Gemäß § 13 Abs. 2 Nr. 2 und § 3 Absatz 2 BauGB in der zurzeit gültigen Fassung wird hiermit öffentlich bekannt gemacht, dass der Entwurf der Ergänzungssatzung, bestehend aus Satzungsentwurf, Deckblatt und Begründung in der Zeit

vom 25.07.2022 bis einschließlich 26.08.2022

während der Dienstzeiten

(Montag, Mittwoch, Freitag

von 08.00 Uhr bis 12.00 Uhr

Dienstag

von 08.00 Uhr bis 18.00 Uhr

Donnerstag

von 08.00 Uhr bis 12.00 Uhr und

14.00 Uhr bis 16.00 Uhr)

bei der Nationalparkverbandsgemeindeverwaltung Herrstein-Rhaunen, Fachbereich 2, Bauliche Infrastruktur, Zimmer 451, Brühlstraße 16, 55756 Herrstein zu jedermanns Einsicht ausliegt.

Er kann darüber hinaus über die Internetseite der Nationalparkverbandsgemeinde Herrstein-Rhaunen (https://www.vg-hr.de/aktuelles/bebauungsplanverfahren) unter der Rubrik Ortsgemeinde Niederhosenbach „Ergänzungssatzung Im Gemarkungsteil An der Hauptstraße“ eingesehen werden.

Die Ortsgemeinde Niederhosenbach weist darauf hin, dass keine Umweltprüfung gemäß § 2 Abs. 4 BauGB durchgeführt wurde.

Während dieser Auslegungsfrist können von jedermann Stellungnahmen schriftlich oder elektronisch per Mail an die E-Mailadresse v.schwinn@vg-hr.de vorgebracht oder nach vorheriger Terminabsprache zur Niederschrift erklärt werden.

Die Anregungen werden von der Ortsgemeinde Niederhosenbach geprüft. Das Ergebnis der Prüfung wird mitgeteilt. Nicht fristgerecht abgegebene Stellungnahmen können bei der Beschlussfassung über den Bebauungsplan unberücksichtigt bleiben.

Es wird darauf hingewiesen, dass ein Antrag nach § 47 Verwaltungsgerichtsordnung (VwGO) gemäß § 3 Abs. 2 BauGB unzulässig ist, soweit mit ihm Einwendungen geltend gemacht werden, die vom Antragsteller im Rahmen der Auslegung nicht oder verspätet geltend gemacht wurden, aber hätten geltend gemacht werden können.

Hinweis: Die Nationalparkverbandsgemeindeverwaltung Herrstein-Rhaunen hat Vorkehrungen getroffen, um die Ausbreitung des Coronaviruses einzudämmen. Wir möchten Sie darauf hinweisen, dass bei einer persönlichen Einsichtnahme ein geeigneter Mund- und Nasenschutz zu tragen ist. Auch gelten die bekannten Regeln wie Abstandswahrung und die Händedesinfektion; entsprechendes Desinfektionsmittel steht im Gebäudeeingangsbereich zur Verfügung.

Niederhosenbach, 04.07.2022
Michael Pelke (DS)
Ortsbürgermeister