Titel Logo
Nachrichtenblatt der VG Bodenheim
Ausgabe 30/2024
Amtlicher Teil
Zurück zur vorigen Seite
Zurück zur ersten Seite der aktuellen Ausgabe
-

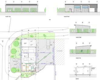
Förderbescheidübergabe zum Neubau einer Bauhof-Gerätehalle

(v. l. n. r.): Architekt Keßler, Ortsbürgermeister Müller, Innenminister Ebling, Bürgermeister Dr. Scheurer.

Gut gelaunt nahmen Bürgermeister Dr. Robert Scheurer und Ortsbürgermeister Patric Müller den Förderbescheid zum Neubau einer Gerätehalle für den Bauhof aus den Händen des rheinland-pfälzischen Innenministers Michael Ebling entgegen. Im Ratskeller des Unterhofes traf man sich am 18. Juli zu einer kleinen Feierstunde, um der Übergabe einen würdigen Rahmen zu bereiten.

Der Gemeinderat hatte am 16.12.2021 den Grundsatzbeschluss zum Neubau gefasst und die Planung auf den Weg gebracht. Das gemeindeeigene Grundstück vor dem neuen Kindergarten ist im Bebauungsplan bereits seit 2015 als sog. „Gemeinbedarfsfläche Kindertagesstätte und Bauhof“ ausgewiesen und wird somit zum Standort des Projektes. Es verbleibt zudem noch Potenzial für eine mögliche KITA-Erweiterung.

„Der Bedarf eines zeitgemäßen Bauhofes mit entsprechenden Räumlichkeiten ergibt sich aufgrund der Tatsache, dass unsere Mitarbeiter seit jeher in einer einfachen Lagergarage untergebracht sind und diese keinerlei sanitärtechnischen Einrichtungen, Umkleide-, Pausen- bzw. Bereitschaftsräume beinhaltet. Auch die Unterbringung von Materialien, Werkzeugen und Gegenständen hat sich im Laufe der Zeit auf den angrenzenden VG-eigenen Parkplatz am Feuerwehrgerätehaus und Nebenräume im Unterhof, im Kindergarten und auf dem Friedhof bis hin zu privaten Scheunen verlagert. Das aktuelle Pritschenfahrzeug steht seit Anschaffung ohne jegliche Überdachung auf der frei zugänglichen und hierfür nicht vorgesehenen Parkfläche“, so Patric Müller in seiner Projektbegründung. Auch Bürgermeister Dr. Robert Scheurer und Innenminister Michael Ebling unterstrichen die Notwendigkeit eines funktionierenden und modern ausgestatteten Bauhofs in der Ortsgemeinde. Der beauftragte Architekt Alfons Keßler, welcher in seinen Leistungsphasen die Antragstellung vorbereitet hatte, beziffert die Gestehungskosten auf 638.760 Euro, von denen das Land 250.000 Euro übernimmt. Im nächsten Schritt werden nun Bodenuntersuchungen vorgenommen und der Bauantrag gestellt.

Ortsbürgermeister Müller bedankte sich bei den anwesenden Ratsmitgliedern für die Unterstützung des Projektes und bei dem Ratskellerteam Mechtild Becker und Christine Engelhardt für die Bewirtung an diesem Nachmittag.