Titel Logo
Nachrichtenblatt der VG Bodenheim
Ausgabe 49/2023
Amtlicher Teil
Zurück zur vorigen Seite
Zurück zur ersten Seite der aktuellen Ausgabe

Bauleitplanung der Ortsgemeinde Nackenheim

Bebauungsplan „Alte Weide“, 1. Änderung

hier: Erneute Veröffentlichung des Planentwurfs

Der Gemeinderat der Ortsgemeinde Nackenheim hat in seiner Sitzung am 22. März 2021 die Aufstellung des Bebauungsplanes „Alte Weide“, 1. Änderung nach § 13a BauGB i.V.m. § 2 Abs. 1 BauGB beschlossen. Die förmliche Beteiligung der Öffentlichkeit gemäß § 3 Abs. 2 BauGB erfolgte in der Zeit vom 16. Januar 2023 bis einschließlich 17. Februar 2023. Aufgrund der mit der Abwägung einhergehenden Erweiterung des Geltungsbereichs um die Vorhaltezone Hochwasserdamm und Schutzzone Hochwasserdamm wird eine erneute Veröffentlichung gemäß § 4a Abs. 3 BauGB durchgeführt.

Im bestehenden Bebauungsplan „Alte Weide“ ist die Parzelle Flur 9 Nr. 49/1 als Fläche für den Gemeinbedarf mit der Zweckbestimmung „Holzschredderanlage für Grünschnitt“ festgesetzt. Da diese als solche nicht mehr genutzt wird ist vorgesehen, dort einen Bikepark für Kinder und Jugendliche zu errichten. Hierfür ist eine Änderung des Bebauungsplanes notwendig.

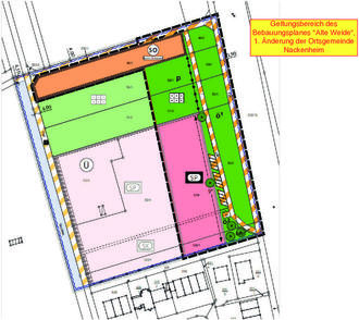
Im beiliegenden nicht maßstäblichen Bebauungsplanausschnitt ist der Geltungsbereich durch eine Umrandung gekennzeichnet. Der Plan hat keine Rechtswirkung und dient nur dem besseren Verständnis dieser Bekanntmachung.

Nach § 4a Abs. 3 i.V.m. § 3 Abs. 2 BauGB wird hiermit bekannt gemacht, dass der Bebauungsplanentwurf einschließlich der Begründung in der Zeit von Montag, dem 18.12.2023 bis einschließlich Montag, dem 22.01.2024 erneut zu jedermanns Einsichtnahme im Internet veröffentlicht und außerdem in den Räumen der Verbandsgemeindeverwaltung zu jedermanns Einsichtnahme öffentlich ausliegt.

Während der Veröffentlichungsfrist steht der Bebauungsplanentwurf auf unserer Internetseite www.vg-bodenheim.de unter „Aktuelles - Ortsgemeinden - Ortsgemeinde Nackenheim“ sowie im Geoportal des Landes Rheinland-Pfalz unter www.geoportal.rlp.de (Suchbegriff „Offenlage Nackenheim“) zur Verfügung.

Bitte beachten Sie, dass das Rathaus der Verbandsgemeinde Bodenheim für den regelmäßigen Publikumsverkehr grundsätzlich nach vorheriger Terminvereinbarung geöffnet ist, sodass eine persönliche Einsichtnahme in die ausgelegten Planunterlagen innerhalb der Veröffentlichungsfrist nach vorheriger telefonischer Absprache mit den Mitarbeiter*innen des Fachbereichs Natürliche Lebensgrundlagen und Bauen unter den Telefonnummern 06135 – 72266 und 06135 – 72130 oder per E-Mail an bauleitplanung@vg-bodenheim.de

im Rathaus der Verbandsgemeinde Bodenheim, Am Dollesplatz 1, 55294 Bodenheim, während der üblichen Dienststunden der Verwaltung möglich ist. Für Mittwoch-Nachmittag werden keine Termine vergeben. Hier haben Sie die Möglichkeit, zwischen 14.00 Uhr und 19.00 Uhr ohne vorherige Terminabsprache in die ausgelegten Planunterlagen Einsicht zu nehmen.

Es wird ausdrücklich darauf hingewiesen, dass der Bebauungsplan im beschleunigten Verfahren nach § 13a BauGB aufgestellt wird, da es sich um eine Maßnahme der Innenentwicklung handelt. Es bestehen keine Anhaltspunkte für eine Beeinträchtigung der Erhaltungsziele und des Schutzzwecks der Natura 2000-Gebiete im Sinne des Bundesnaturschutzgesetzes sowie keine Anhaltspunkte dafür, dass bei der Planung Pflichten zur Vermeidung oder Begrenzung der Auswirkungen von schweren Unfällen nach § 50 Satz 1 des Bundes-Immissionsschutzgesetzes zu beachten sind.

Der Entwurf des Bebauungsplanes ist mit der Begründung und den nach Einschätzungen der Gemeinde wesentlichen, bereits vorliegenden umweltbezogenen Stellungnahmen öffentlich auszulegen. Umweltbezogene Informationen sind in Form einer Abschätzung der vorhersehbaren Auswirkungen auf die verschiedenen Umweltbelange im Rahmen der Begründung zum Bebauungsplan (Umweltbericht) sowie in Form eines Artenschutzgutachtens vorhanden.

Es wird darauf hingewiesen, dass während der Veröffentlichungsfrist die Stellungnahmen nur zu den ergänzten Teilen abgegeben werden können. Die Stellungnahmen sollen nach Möglichkeit elektronisch übermittelt werden, können bei Bedarf aber auch auf anderem Wege abgegeben werden. Sofern Sie Ihre Stellungnahme elektronisch übermitteln möchten, bitten wir darum, diese per E-Mail an bauleitplanung@vg-bodenheim.de zu übersenden. Nicht fristgerecht abgegebene Stellungnahmen können bei der Beschlussfassung über den Bebauungsplan unberücksichtigt bleiben.

Nackenheim, den 29.11.2023
René Adler
Ortsbürgermeister