Titel Logo
Amtsblatt der VG Gau-Algesheim
Ausgabe 20/2024
Amtlicher Teil
Zurück zur vorigen Seite
Zurück zur ersten Seite der aktuellen Ausgabe

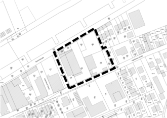
Vollzug des Baugesetzbuches, Bebauungsplan „Alter Einkaufsmarkt“ der Stadt Gau-Algesheim

hier: Bekanntmachung über das Inkrafttreten gem. § 10 BauGB

Gemäß § 10 Abs. 3 BauGB in der Fassung vom 3. November 2017 (BGBl. I S. 3634), zuletzt geändert durch Artikel 9 des Gesetzes vom 10. September 2021 (BGBl. I S. 4147), wird Folgendes bekannt gemacht:

Der Rat der Stadt Gau-Algesheim hat in seiner Sitzung am 24.04.2024 den Bebauungsplan „Alter Einkaufsmarkt“ gem. § 10 BauGB als Satzung beschlossen. Der Bebauungsplan wird hiermit gemäß § 10 Abs. 3 BauGB bekanntgemacht.

Mit dieser Bekanntmachung tritt der Bebauungsplan in Kraft.

Auf die Voraussetzungen für die Geltendmachung der Verletzung von Verfahrens- und Formvorschriften und von Mängeln der Abwägung sowie der Rechtsfolgen des § 215 Abs. 1 BauGB wird hingewiesen.

Unbeachtlich werden demnach

1.

eine nach § 214 Abs. 1 S. 1 Nr. 1 bis 3 BauGB beachtliche Verletzung der dort bezeichneten Verfahrens- und Formvorschriften und

2.

eine unter Berücksichtigung des § 214 Abs. 2 BauGB beachtliche Verletzung der Vorschriften über das Verhältnis des Bebauungsplans und des Flächennutzungsplans und

3.

nach § 214 Abs. 3 S. 2 BauGB beachtliche Mängel des Abwägungsvorgangs, wenn sie nicht innerhalb eines Jahres seit Bekanntmachung des Bebauungsplans schriftlich gegenüber der Gemeinde geltend gemacht worden sind; der Sachverhalt, der die Verletzung oder den Mangel begründen soll, ist darzulegen.

Ferner gelten gemäß § 24 Abs. 6 der Gemeindeordnung Rheinland-Pfalz (GemO) Satzungen, die unter Verletzung von Verfahrens- oder Formvorschriften der Gemeindeordnung oder aufgrund der Gemeindeordnung erlassener Vorschriften zustande gekommen sind, ein Jahr nach ihrer Bekanntmachung als von Anfang an gültig zustande gekommen.

Dies gilt nicht, wenn

1.

die Bestimmungen über die Öffentlichkeit der Sitzung, die Genehmigung, die Ausfertigung oder Bekanntmachung der Satzung verletzt worden sind, oder

2.

vor Ablauf der in Satz 1 genannten Frist die Aufsichtsbehörde den Beschluss beanstandet oder jemand die Verletzung der oben genannten Verfahrens- und Formvorschriften gegenüber der Verbandsgemeindeverwaltung Gau-Algesheim, Hospitalstraße 22, 55435 Gau-Algesheim, unter Bezeichnung des Sachverhaltes, der die Verletzung begründen soll, schriftlich geltend gemacht hat.

Hat jemand eine Verletzung nach Nr. 2 geltend gemacht, so kann auch nach Ablauf der vorgenannten Frist jemand diese Verletzung geltend machen.

Auf die Vorschriften des § 44 BauGB (Fälligkeit und Erlöschen von Entschädigungsansprüchen) wird hingewiesen.

Die Unterlagen zum Bebauungsplan mit Planurkunde, Textfestsetzungen und Begründung, die Gutachten sowie die genannten Vorschriften sind gem. § 10 a Abs. 2 BauGB während der Öffnungszeiten des Bauamtes in der Verbandsgemeindeverwaltung Gau-Algesheim, Hospitalstraße 22, 55435 Gau-Algesheim, Zimmer 210 und 211, von jedermann eingesehen werden. Über den Inhalt wird auf Verlangen Auskunft erteilt, eine vorherige Terminvereinbarung wird empfohlen.

Ergänzend sind die Unterlagen auch auf der Internetseite der Verbandsgemeinde Gau-Algesheim unter www.vg-gau-algesheim.de/Bebauungsplaene einsehbar sowie über das Geoportal des Landes Rheinland-Pfalz unter www.geoportal.rlp.de zu finden.

Öffnungszeiten

Montag-Freitag

08.00 - 12.00 Uhr

Montag + Dienstag

14.00 - 15.30 Uhr

Donnerstag

14.00 - 18.00 Uhr

gez. Michael König
-Stadtbürgermeister-