Titel Logo
Amtsblatt der VG Gau-Algesheim
Ausgabe 30/2022
Amtlicher Teil
Zurück zur vorigen Seite
Zurück zur ersten Seite der aktuellen Ausgabe

Vollzug des Baugesetzbuches

Inkrafttreten des Bebauungsplanes „Am Sportplatz, 4. Änderung“

Der Rat der Ortsgemeinde Appenheim hat in seiner Sitzung am 12.07.2022 den Bebauungsplan „Am Sportplatz, 4. Änderung“ gem. § 10 BauGB als Satzung beschlossen.

Der Bebauungsplan mit Begründung inkl. Artenschutzrechtlicher Einschätzung und Beschlussfassung über die Abwägung der Stellungnahmen artenschutzrechtlicher Beurteilung wird hiermit gemäß § 10 Abs. 3 BauGB in Verbindung mit § 215 Abs. 3 BauGB und § 24 Abs. 3 GemO bekannt gemacht.

Auf die Vorschriften des § 44 BauGB (Fälligkeit und Erlöschen von Entschädigungsansprüchen) und § 215 BauGB (Geltendmachung der Verletzung von Verfahrens- und Formvorschriften) sowie § 24 Abs. 6 GemO wird besonders hingewiesen.

Der Bebauungsplan, der Vorhaben- und Erschließungsplan, die Begründung inkl. Anlagen , die Gutachten und die genannten Vorschriften können während der Öffnungszeiten des Bauamtes in der Verbandsgemeindeverwaltung Gau-Algesheim, Hospitalstraße 22, Zimmer 210, 55435 Gau-Algesheim, von jedermann eingesehen werden.

Eine vorherige Terminvereinbarung wird empfohlen.

Die Unterlagen sind auch auf unserer Internetseite www.vg-gau-algesheim.de/Bebauungsplaene einzusehen. Ferner werden sie über das zentrale Internetportals des Landes Rheinland-Pfalz unter www.geoportal.rlp.de zugänglich gemacht.

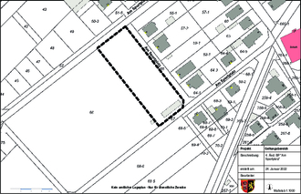
Der räumliche Geltungsbereich des Bebauungsplanes „Am Sportplatz, 4. Änderung“ ist der Flur 6 in der Gemarkung Appenheim zugeordnet und umfasst einen Teilbereich des Flurstücks Nr. 66. Der Geltungsbereich wird begrenzt im Nordwesten durch Flurstück 72, den Wethbach, im Nordosten durch die öffentliche Straße Am Sportplatz, Flurstück 65, sowie im Südosten durch einen Fuß- und Fahrweg, Flurstück 67. Die Lage und Abgrenzung des Geltungsbereichs ergibt sich zudem aus nachfolgender Planskizze:

Die vorstehende Planskizze zeigt die Lage des Plangebiets und dient dem besseren Verständnis der Bekanntmachung. Sie entfaltet keine Rechtswirkung.

Öffnungszeiten

Montag-Freitag

08.00 - 12.00 Uhr

Montag + Dienstag

14.00 – 15.30 Uhr

Donnerstag

14.00 - 18.00 Uhr

ausgefertigt:
gez. Schacht, Ortsbürgermeister