Titel Logo
Rhein-Selz aktuell
Ausgabe 31/2025
Amtlicher Teil
Zurück zur vorigen Seite
Zurück zur ersten Seite der aktuellen Ausgabe

Öffentliche Bekanntmachung des Bebauungsplans „Kette-Saar, 12. Änderung“ der Stadt Oppenheim

Hier: Bekanntmachung gemäß § 10 Abs. 3 Baugesetzbuch (BauGB) in der Fassung der Bekanntmachung vom 3. November 2017 (BGBl. I S. 3634), das zuletzt durch Artikel 3 des Gesetzes vom 20. Dezember 2023 (BGBl. 2023 I Nr. 394) geändert worden ist.

Der Stadtrat der Stadt Oppenheim hat in seiner öffentlichen Sitzung am 18.06.2025 den Bebauungsplan „Kette-Saar, 12. Änderung“ gemäß § 10 Abs. 1 BauGB als Satzung beschlossen.

Der Satzungsbeschluss des Bebauungsplans wird hiermit gemäß § 10 Abs. 3 Satz 1 BauGB öffentlich bekannt gemacht.

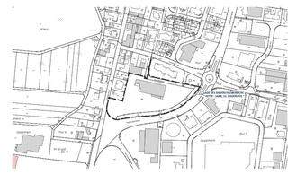
Es folgt Anlage Nr.: (Geltungsbereich)

Der genaue räumliche Geltungsbereich des Bebauungsplanes ist in der obenstehenden Planskizze durch eine dick gestrichelte Linie umrandet (ohne Maßstab).

Der Bebauungsplan „Kette-Saar, 12. Änderung“ tritt mit der Bekanntmachung in Kraft.

Dieser kann mit Begründung und den dazugehörenden Anlagen ab sofort von jedermann in der Verbandsgemeindeverwaltung Rhein-Selz, im Dienstgebäude „Castello“, Fachbereich Bauen und Umwelt, Zimmer C 210, 2. Obergeschoss, Sant´ Ambrogio-Ring 31, 55276 Oppenheim, während der Dienststunden eingesehen werden. Über die Inhalte wird auf Verlangen Auskunft erteilt.

Hinweis zum Einstellen der Planunterlagen in das Internet:

Gemäß § 10a Abs. 2 BauGB wird der in Kraft getretene Bebauungsplan mit Begründung und Anlagen in das Internet eingestellt. Die vollständigen Unterlagen können auf der Internetseite der Verbandsgemeindeverwaltung Rhein-Selz mit Adresse https://www.vg-rhein-selz.de unter der Rubrik „Bürger und Service“ und der Unterrubrik „Bauen in der Verbandsgemeinde/Rechtskräftige Bebauungspläne“ eingesehen werden. Des Weiteren werden diese über ein zentrales Internetportal des Landes Rheinland-Pfalz zugänglich gemacht. Die Internetadresse lautet: www.geoportal.rlp.de.

Weitere Hinweise:

  1. Es wird darauf hingewiesen, dass nach § 44 Abs. 3 Satz 1 und 2 BauGB der Entschädigungsberechtigte Entschädigung verlangen kann, wenn die in den
    §§ 39 bis 42 BauGB bezeichneten Vermögensnachteile eingetreten sind. Er kann die Fälligkeit des Anspruchs dadurch herbeiführen, dass er die Leistung der Entschädigung schriftlich bei dem Entschädigungspflichtigen beantragt. Nach § 44 Abs. 4 BauGB erlischt ein Entschädigungsanspruch, wenn nicht innerhalb von drei Jahren nach Ablauf des Kalenderjahres, in dem die in § 44 Absatz 3 Satz 1 BauGB bezeichneten Vermögensnachteile eingetreten sind, die Fälligkeit des Anspruchs herbeigeführt wird.

II. Es wird darauf hingewiesen, dass

1.

eine nach § 214 Abs. 1 Satz 1 Nr. 1 bis 3 BauGB beachtliche Verletzung der dort bezeichneten Verfahrens- und Formvorschriften,

2.

eine unter Berücksichtigung des § 214 Abs. 2 BauGB beachtliche Verletzung der Vorschriften über das Verhältnis des Bebauungsplans und des Flächennutzungsplans,

3.

nach § 214 Abs. 3 Satz 2 BauGB beachtliche Mängel des Abwägungsvorgangs sowie

4.

beachtliche Fehler nach § 214 Abs. 2a BauGB gemäß § 215 Abs. 1 BauGB unbeachtlich werden

1. eine nach § 214 Absatz 1 Satz 1 Nummer 1 bis 3 beachtliche Verletzung der dort bezeichneten Verfahrens- und Formvorschriften,

2. eine unter Berücksichtigung des § 214 Absatz 2 beachtlichen Verletzung der Vorschriften über das Verhältnis des Bebauungsplans und des Flächennutzungsplans und

3. nach § 214 Absatz 3 Satz 2 beachtliche Mängel des Abwägungsvorgangs, wenn sie nicht innerhalb eines Jahres seit Bekanntmachung des Flächennutzungsplans oder der Satzung schriftlich gegenüber der Verbandsgemeindeverwaltung Rhein-Selz, Sant´ Ambrogio-Ring 31, 55276 Oppenheim unter Darlegung des die Verletzung begründenden Sachverhalts geltend gemacht worden sind. Satz 1 gilt entsprechend, wenn Fehler nach § 214 Absatz 2a beachtlich sind.

III. Nach § 24 Abs. 6 Satz 1 GemO gelten Satzungen, die unter Verletzung von Verfahrens- oder Formvorschriften dieses Gesetzes oder auf Grund dieses Gesetzes zustande gekommen sind, gelten ein Jahr nach dieser Bekanntmachung als von Anfang an gültig zustande gekommen. Dies gilt nicht, wenn

1.

die Bestimmungen über die Öffentlichkeit der Sitzung, die Genehmigung, die Ausfertigung oder die Bekanntmachung der Satzung verletzt worden sind, oder

2.

vor Ablauf der in Satz 1 genannten Frist die Aufsichtsbehörde den Beschluss beanstandet oder jemand die Verletzung der Verfahrens- oder Formvorschriften gegenüber der Verbandsgemeindeverwaltung Rhein-Selz, Sant´ Ambrogio-Ring 31, 55276 Oppenheim unter Bezeichnung des Sachverhaltes, der die Verletzung begründen soll, schriftlich geltend gemacht hat.

Hat jemand eine Verletzung nach § 24 Abs. 6 Satz 2 Nr. 2 GemO geltend gemacht, so kann auch nach Ablauf der in § 24 Abs. 6 Satz 1 GemO genannten Frist jedermann diese Verletzung geltend machen. Bei der Bekanntmachung der Satzung ist auf die Voraussetzungen für die Geltendmachung der Verletzung von Verfahrens- oder Formvorschriften und die Rechtsfolgen hinzuweisen.

Oppenheim, den 14.07.2025
gez. Silke Rautenberg
(Stadtbürgermeisterin)

Hinweis nach § 24 Abs. 6 GemO

Satzungen, die unter Verletzung von Verfahrens- oder Formvorschriften dieses Gesetzes oder auf Grund dieses Gesetzes zustande gekommen sind, gelten ein Jahr nach der Bekanntmachung als von Anfang an gültig zustande gekommen. Dies gilt nicht, wenn

1.

die Bestimmungen über die Öffentlichkeit der Sitzung, die Genehmigung, die Ausfertigung oder die Bekanntmachung der Satzung verletzt worden sind, oder

2.

vor Ablauf der in Satz 1 genannten Frist die Aufsichtsbehörde den Beschluss beanstandet oder jemand die Verletzung des Verfahrens oder Formvorschriften gegenüber der Gemeindeverwaltung unter Bezeichnung des Sachverhaltes, der die Verletzung begründen soll, schriftlich geltend gemacht hat.

Hat jemand eine Verletzung nach Satz 2 Nr. 2 geltend gemacht, so kann auch nach Ablauf der in Satz 1 genannten Frist jedermann diese Verletzung geltend machen.