Titel Logo
Amtsblatt VG Sprendlingen-Gensingen
Ausgabe 8/2023
Bekanntmachungen und Mitteilungen der Ortsgemeinden
Zurück zur vorigen Seite
Zurück zur ersten Seite der aktuellen Ausgabe

Bebauungsplan der Ortsgemeinde Sprendlingen für das Gebiet„In der Frecht‘‘

Bekanntmachung des Satzungsbeschlusses gemäß § 10 Abs. 3 des Baugesetzbuches

Der Ortsgemeinderat Sprendlingen hat gemäß Baugesetzbuch in der Fassung der Bekanntmachung vom 3. November 2017 (BGBI. I S. 3634), das zuletzt durch Artikel 2 des Gesetzes vom 4. Januar 2023 (BGBl. 2023 I Nr. 6) geändert worden ist in Verbindung mit der Landesbauordnung Rheinland-Pfalz (LBauO) vom 24.11.1998 (GVBI. 1998 S. 365), zuletzt geändert durch Gesetz vom 07.12.2022 (GVBl. S. 403) und der Gemeindeordnung für Rheinland-Pfalz (GemO) vom 31.01.1994 (GVBI. 1994 S. 153) zuletzt geändert durch Artikel 1 des Gesetzes vom 27.01.2022 (GVBI. S. 21) jeweils in der derzeit geltenden Fassung den Bebauungsplan für das Gebiet ‘‘In der Frecht‘‘ in seiner Sitzung vom 22.02.2018 als Satzung beschlossen.

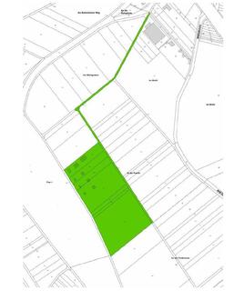
Der räumliche Geltungsbereich des Bebauungsplans erstreckt sich über die Grundstücke Flur 4 Nr. 322 tlw., 325 tlw., 341, 347, 348, 349, 350, 351, 352 und 353.

Übersichtslageplan:

Die vorstehende Planskizze erhebt keinen Anspruch auf Rechtsverbindlichkeit, sie dient dem besseren Verständnis der Bekanntmachung.

Der Bebauungsplan ‘‘In der Frecht‘‘ trifft mit dieser Bekanntmachung in Kraft.

Der Bebauungsplan wird mit der Begründung und zusammenfassender Erklärung zu jedermanns Einsicht bereitgehalten.

Auf Verlangen wird über den Inhalt Auskunft gegeben. Der Bebauungsplan kann während der Dienststunden bei der Verbandsgemeindeverwaltung Sprendlingen-Gensingen, Elisabethenstraße 1, 55576 Sprendlingen, Zimmer A 008, während der Dienststunden, montags bis mittwochs von 08.00 Uhr bis 12.00 Uhr und 14.00 Uhr bis 16.00 Uhr, donnerstags von 08.00 Uhr bis 12.00 Uhr und 14.00 Uhr bis 18.00 Uhr und freitags von 08.00 Uhr bis 12.00 Uhr eingesehen werden.

Auf folgende Bestimmungen des Baugesetzbuches und der Gemeindeordnung Rheinland-Pfalz wird besonders hingewiesen:

§ 44

Abs. 3 Satz 1 und 2 Baugesetzbuch

Der Entschädigungsberechtigte kann Entschädigung verlangen, wenn die in den §§ 39 bis 42 bezeichneten Vermögensnachteile eingetreten sind. Er kann die Fälligkeit des Anspruchs dadurch herbeiführen, dass er die Leistung der Entschädigung schriftlich bei dem Entschädigungspflichtigen beantragt.

§ 44

Abs. 4 Baugesetzbuch

Ein Entschädigungsanspruch erlischt, wenn nicht innerhalb von drei Jahren nach Ablauf des Kalenderjahrs, in dem die in Absatz 3 Satz 1 bezeichneten Vermögensnachteile eingetreten sind, die Fälligkeit des Anspruchs herbeigeführt wird.

§ 215

Abs. 1 Baugesetzbuch

(1) Unbeachtlich werden

1.

eine nach § 214 Abs. 1 Satz 1 Nr. 1 bis 3 beachtliche Verletzung der dort bezeichneten Verfahrens- und Formvorschriften,

2.

eine unter Berücksichtigung des § 214 Abs. 2 beachtliche Verletzung der Vorschriften über das Verhältnis des Bebauungsplans und des Flächennutzungsplans und

3.

nach § 214 Abs. 3 Satz 2 beachtliche Mängel des Abwägungsvorgangs, wenn sie nicht innerhalb eines Jahres seit Bekanntmachung des Flächennutzungsplans oder der Satzung schriftlich gegenüber der Gemeinde unter Darlegung des die Verletzung begründenden Sachverhalts geltend gemacht worden sind. Satz 1 gilt entsprechend, wenn Fehler nach § 214 Abs. 2a beachtlich sind.

§ 24

Abs. 6 Satz 1, 2 und 3 Gemeindeordnung Rheinland-Pfalz

Satzungen, die unter Verletzung von Verfahrens- oder Formvorschriften dieses Gesetzes oder auf Grund dieses Gesetzes

zustande gekommen sind, gelten ein Jahr nach der Bekanntmachung als von Anfang an gültig zustande gekommen. Dies

gilt nicht, wenn

1.

die Bestimmungen über die Öffentlichkeit der Sitzung, die Genehmigung, die Ausfertigung oder die Bekanntmachung der Satzung verletzt worden sind, oder

2.

vor Ablauf der in Satz 1 genannten Frist die Aufsichtsbehörde den Beschluss beanstandet oder jemand die Verletzung der Verfahrens- oder Formvorschriften gegenüber der Gemeindeverwaltung unter Bezeichnung des Sachverhalts, der die Verletzung begründen soll, schriftlich geltend gemacht hat.

Hat jemand eine Verletzung nach Satz 2 Nr. 2 geltend gemacht, so kann auch nach Ablauf der in Satz 1 genannten Frist jedermann diese Verletzung geltend machen.

Sprendlingen, 22.02.2023
Manfred Bucher
Ortsbürgermeister