Titel Logo
Nachrichtenblatt Wöllstein aktuell
Ausgabe 18/2025
Verbandsgemeinde Wöllstein
Zurück zur vorigen Seite
Zurück zur ersten Seite der aktuellen Ausgabe

Öffentliche Bekanntmachung

Teiländerung des Flächennutzungsplanes der Verbandsgemeinde Wöllstein

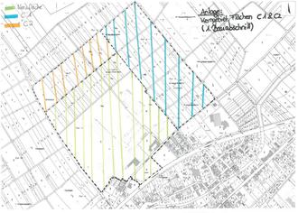
Ausweisung einer Gewerbefläche - Errichtung eines „Rechenzentrums mit Energieversorgung auf dem Gelände der bestehenden Ziegelei; Kernfläche + Flächen C 1 + Flächen C 2 (1. Bauabschnitt)“ in der Gemarkung Wöllstein

Aufstellungsbeschluss nach § 2 Abs. 1 i. V.m. § 1 Abs. 8 Baugesetzbuch (BauGB)

Der Verbandsgemeinderat Wöllstein hat in seiner Sitzung am 08.04.2025 gem. § 2 Abs. 1 i. V.m. § 1 Abs. 8 des Baugesetzbuches (BauGB) in der derzeit gültigen Fassung die Teiländerung „Rechenzentrum mit Energieversorgung auf dem Gelände der bestehenden Ziegelei; Kernfläche + Flächen C 1 + Flächen C 2 (1. Bauabschnitt)“ des Flächennutzungsplanes der Verbandsgemeinde Wöllstein beschlossen.

Ziel der Teiländerung ist die Bereitstellung einer Gewerbefläche für das Errichten eines Rechenzentrums mit Energieversorgung auf dem Gelände der bestehenden Ziegelei in Wöllstein.

Die bauplanungsrechtlichen Voraussetzungen zur Realisierung dieses Vorhabens sind nicht erfüllt. Die Fläche ist im Flächennutzungsplan der Verbandsgemeinde Wöllstein als Flächen für Abgrabungen oder für die Gewinnung von Bodenschätzen dargestellt. Im Regionalen Raumordnungsplan Rheinhessen-Nahe sind für diese Fläche die Ziele „Vorranggebiet - genehmigter Rohstoffabbaufläche ohne Raumwiderstand“.

Der Aufstellungsbeschluss wird hiermit gem. § 2 Abs. 1 S. 2 i. V.m. § 1 Abs. 8 BauGB öffentlich bekannt gemacht.

Wöllstein, den 14.04.2025
gez. Gerd Rocker, Bürgermeister