Titel Logo
Nachrichtenblatt Wöllstein aktuell
Ausgabe 43/2025
Abwasserbeseitigung Wöllstein-Wörrstadt (AöR)
Zurück zur vorigen Seite
Zurück zur ersten Seite der aktuellen Ausgabe

Bekanntmachung über die betriebsfertige Herstellung von öffentlichen Abwasseranlagen in der Ortsgemeinde Wallertheim

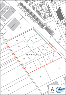
Unter Bezugnahme auf § 7 der Satzung über die Entwässerung und den Anschluss an die öffentliche Abwasserbeseitigungseinrichtung (Allgemeine Entwässerungssatzung) wird hiermit bekanntgemacht, dass die öffentlichen Abwasseranlagen im Geltungsbereich des Bebauungsplans „An der Sülz“ der Ortsgemeinde Wallertheim betriebsfertig hergestellt worden sind. Das umfasste und abwassertechnisch erschlossene Gebiet ist in der nachfolgenden Karte dargestellt.

Mit der betriebsfertigen Herstellung der öffentlichen Abwasseranlagen ist der Anschluss- und Benutzungszwang gem. § 7 und 8 der Allgemeinen Entwässerungssatzung wirksam geworden.

Karte: Gebiet „An der Sülz“