Titel Logo
Amtsblatt VG Wonnegau
Ausgabe 13/2024
Amtlicher Teil - Amtliche Bekanntmachungen und Mitteilungen
Zurück zur vorigen Seite
Zurück zur ersten Seite der aktuellen Ausgabe

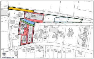
Bebauungsplan „Nr. 40 – Lorchsmühle“;

Frühzeitige Beteiligung der Öffentlichkeit gemäß § 3 Abs. 1 BauGB und Unterrichtungsverfahren der Behörden sowie Träger öffentlicher Belange gemäß § 4 Abs. 1 BauGB

Die Stadt Osthofen plant die Entwicklung des Wohnbaugebietes „Nr. 40 – Lorchsmühle“ zwischen Stärkmühlweg, Lorchsmühlweg und ehemaliger SEG-Trasse am nördlichen Siedlungsrand von Osthofen. Es ist vorgesehen ein allgemeines Wohnbaugebiet auszuweisen. Dabei sollen südlich der Seebach Mehrfamilienhäuser und nördlich des Gewässers drei Einfamilienhäuser entwickelt werden können.

Für die konkrete Planung soll die betroffene Öffentlichkeit frühzeitig beteiligt werden. Die Durchführung der frühzeitigen Öffentlichkeitsbeteiligung und vorgezogene Beteiligung der Behörden und Träger öffentlicher Belange (Unterrichtungsverfahren) findet in der Zeit vom 02.04.2024 bis einschließlich 06.05.2024 statt.

Der Geltungsbereich ist im anliegenden Plan gekennzeichnet und umfassen die Grundstücke Gemarkung Osthofen Flur 20, Nr. 98/2, 98/4, 98/8, 98/9, 99, 100, 102/1, 103/1, 104/1, 270 (tlw.) und 271 (tlw.).

Die Planunterlagen mit ihren dazugehörigen Teilen, sowie die einschlägigen Rechtsvorschriften und verwendeten DIN-Normen können sowohl bei der Stadtverwaltung Osthofen, Friedrich-Ebert-Straße 31-33, 67574 Osthofen während der Sprechstunden des Stadtbürgermeisters (montags, dienstags, donnerstags und freitags von 8.00 Uhr bis 12.00 Uhr) als auch bei der Verbandsgemeindeverwaltung Wonnegau, Am Schneller 3 in 67574 Osthofen während der allgemeinen Öffnungszeiten (montags bis freitags von 8.00 Uhr bis 12.00 Uhr sowie donnerstags zusätzlich von 14.00 Uhr bis 18.00 Uhr) in Zimmer 3.5 (Dachgeschoss) kostenfrei zu jedermanns Einsicht eingesehen werden. Es können Anregungen vorgebracht werden. Darüber hinaus wird Gelegenheit zur Erörterung gegeben. Der Inhalt dieser Bekanntmachung sowie die vollständigen Planunterlagen sind auch auf www.vg-wonnegau.de einsehbar.

Osthofen, den 13.03.2023
Gez. Goller (DS)
Goller, Stadtbürgermeister

Anlage: Planauszug