Titel Logo
Bad Dürkheimer Woche
Ausgabe 45/2024
Amtliche Bekanntmachungen
Zurück zur vorigen Seite
Zurück zur ersten Seite der aktuellen Ausgabe

​​​​​​​Öffentliche Bekanntmachung

der Stadt Bad Dürkheim
Bebauungsplan „Trift Änderungsplan III“ Bekanntmachung Aufstellungsbeschluss gemäß § 2 i.V.m. § 13 a BauGB und
förmliche Öffentlichkeitsbeteiligung
gemäß § 3 Abs. 2 i.V.m. § 4 Abs. 2 BauGB und § 13a BauGB

Die Stadt Bad Dürkheim für derzeit ein Verfahren zu Änderung eines Teilbereiches des Bebauungsplanes Trift durch. In der öffentlichen Sitzung des Stadtrates am 29.10.2024 wurde die Aufstellung des Bebauungsplanes Aufstellungsbeschluss gemäß § 2 i.V.m. § 13 a BauGB beschlossen. Der Bebauungsplan wird als Bebauungsplan der Innenentwicklung nach § 13a BauGB ohne Durchführung einer Umweltprüfung nach § 2 Abs. 4 BauGB aufgestellt. Die Öffentlichkeit kann sich über die allgemeinen Ziele und Zwecke sowie die wesentlichen Auswirkungen der Planung bei der Stadtverwaltung Bad Dürkheim, Sachgebiet Stadtplanung und Umwelt, Mannheimer Str. 24, 67098 Bad Dürkheim, 06322/935-2110 oder unter stadtplanung@bad-duerkheim.de bis zum 20.12.2024 unterrichten.

In der öffentlichen Sitzung des Stadtrates am 29.10.2024 wurde die Offenlage des Bebauungsplanes „Trift Änderungsplan III“ gemäß § 13a Abs. 2 Nr. 1 i.V.m. § 3 Abs. 2 und § 4 Abs. 2 BauGB beschlossen.

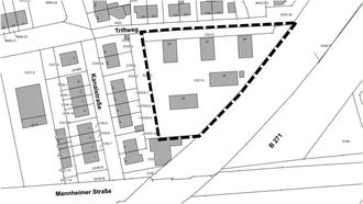
Der Bebauungsplan umfasst die städtischen Grundstücke des Triftweges 50-58. Die Abgrenzung des Geltungsbereiches ist auf der, mit dieser Bekanntmachung veröffentlichten Planskizze dargestellt.

Der Öffentlichkeit sowie den berührten Behörden und sonstigen Trägern öffentlicher Belange wird Gelegenheit zur Stellungnahme gegeben. Die Öffentlichkeit kann sich über die allgemeinen Ziele und Zwecke sowie die wesentlichen Auswirkungen der Planung unterrichten. Die dem Bebauungsplan zugrundeliegenden DIN-Normen und Regelwerke können ebenfalls in der Stadtverwaltung vor Ort eingesehen werden.

Weiterhin wird im Folgenden gemäß § 3 Abs. 2 Satz 2 BauGB auf die bereits vorliegenden umweltrelevanten Informationen in Form von Gutachten und Untersuchungen hingewiesen, die ebenfalls eingesehen werden können:

Schutzgut

Art der umweltbezogenen Information, Urheber und Kurzbeschreibung

Klima,

Mensch

Integriertes Klimaschutzkonzept für die Stadt Bad Dürkheim, B.A.U.M. Consult von Oktober 2019

- Ziel- und Maßnahmenkonzept für die nachhaltige, klimafreundliche Weiterentwicklung und Verbesserung der Situation in Bad Dürkheim

Wasser, Boden, Klima,

Mensch

Leitlinie zum Klimaschutz und Klimaanpassung in der Bauleitplanung für die Stadt Bad Dürkheim, von März 2023

- Beschreibt Leitbilder und Ziele, zum Beispiel für die Ausrichtung und Lage der Baukörper, der Versiegelung, der Niederschlagswasserbewirtschaftung, dem Starkregenschutz, dem Grünflächenkonzept sowie des Energie- und Mobilitätskonzepts

Wasser, Boden, Klima,

Mensch

Starkregengefährdungskarten vom Landesamt für Umwelt Rheinland-Pfalz (LfU), Abteilung Gewässerschutz, Abteilung Hydrologie, Abruf am 16.08.2024

- Untersuchung des Starkregen und Überflutungsrisikos

Wasser, Boden, Klima,

Pflanzen

Wasserhaushaltsbilanz, Dr.-Ing. Burkhardt Döll (ö.b.v.S. für Siedlungswirtschaft) vom 31.05.2024

- Untersuchung der Wasserhaushaltsbilanz

Mensch

Schalltechnische Untersuchung, IBS GmbH von August 2023

- Untersuchung der Lärmauswirkung auf das Gebiet durch die Eisenbahnstrecke, die angrenzende Straße sowie die Straßenbahn

Ziel des Bebauungsplanes ist es, eine städtebaulich verträgliche Nachverdichtung des Grundstückes zu ermöglichen um die Nachfrage nach Wohnraum für kleine und mittlere Einkommen zu befriedigen. Es soll sichergestellt werden, dass sich die geplanten Gebäude verträglich in die Umgebungsbebauung einfügen und alle privaten und öffentlichen Belange in dem Bebauungsplan berücksichtigt werden. Weitere Anforderungen an die Gestaltung und Ausgestaltung der Gebäude sowie weitere Aspekte des Klimaschutzes und der Klimaanpassung können im weiteren Verfahren berücksichtigt werden, da die Stadt nicht nur im Rahmen der Planungshoheit der Bauleitplanung agiert, sondern ebenfalls Bauherr oder zumindest Grundstücksbesitzer ist.

Der Entwurf des Bebauungsplanes wird in der Zeit vom

18.11.2024 bis einschließlich 20.12.2024

bei der Stadtverwaltung Bad Dürkheim, Mannheimer Straße 24, 67098 Bad Dürkheim, im Foyer des Bürgerbüros öffentlich ausgelegt und ist zu folgenden Dienststunden der Stadtverwaltung ohne Terminvereinbarung einsehbar:

Montag

08:00 bis 12:00 Uhr und 14:00 bis 17:00 Uhr

Dienstag

08:00 bis 14:00 Uhr

Mittwoch

07:00 bis 12:00 Uhr

Donnerstag

08:00 bis 12:00 Uhr und 14:00 bis 18.00 Uhr

Freitag

08:00 bis 12:00 Uhr

Außerhalb der Dienststunden auch nach Vereinbarung unter 06322/935-2110. Für eine fachkundige Beratung ist eine Terminvereinbarung ratsam.

Ergänzend dazu stehen während der Zeit der Auslegung die Unterlagen auf der Homepage der Stadt Bad Dürkheim unter www.bad-duerkheim.de/bebauungsplaene zur Einsichtnahme zur Verfügung.

Während der Auslegungsfrist können Stellungnahmen per E-Mail an stadtplanung@bad-duerkheim.de oder schriftlich abgegeben werden. Bei Bedarf können diese auch zur Niederschrift vorgebracht werden. Da das Ergebnis der Behandlung der Stellungnahmen mitgeteilt wird, ist die Angabe der Anschrift des Verfassers zweckmäßig.

Nicht fristgerecht abgegebene Stellungnahmen können gemäß § 3 Abs. 2 BauGB i. V. m. § 4 a Abs. 5 BauGB bei der Beschlussfassung über den Bauleitplan unberücksichtigt bleiben, sofern die Gemeinde deren Inhalt nicht kannte und nicht hätte kennen müssen und deren Inhalt für die Rechtmäßigkeit des Bauleitplans nicht von Bedeutung ist.

Ein Antrag nach § 47 Verwaltungsgerichtsordnung (VwGO) ist unzulässig, soweit mit ihm Einwendungen geltend gemacht werden, die vom Antragsteller im Rahmen der Auslegung nicht oder verspätet geltend gemacht wurden, aber hätten geltend gemacht werden können.

Hinweis zum Datenschutz:

Im Zusammenhang mit dem Datenschutz wird ausdrücklich darauf hingewiesen, dass ein Bauleitplanverfahren ein öffentliches Verfahren ist und daher in der Regel alle dazu eingehenden Stellungnahmen in öffentlichen Sitzungen beraten und entschieden werden, sofern sich nicht aus der Art der Einwände oder der betroffenen Personen ausdrückliche oder offensichtliche Einschränkungen ergeben. Laut den Vorgaben der Datenschutzgrundverordnung (DSVGO) Art. 6 Abs. 1. e) werden personenbezogene Daten von Bürger:innen wie Vor- und Familienname sowie Kontaktdaten (Anschrift, Telefon und Faxnummer, E-Mailadresse) zur Bearbeitung der vorgebrachten Anregungen gespeichert und in den Drucksachen für die öffentlichen Sitzungen des Stadtrats und der Ausschüsse anonymisiert aufgeführt. Grundsätzlich wird auf die Datenschutzerklärung der Stadt Bad Dürkheim verwiesen.

Bad Dürkheim, den 04.11.2024
gez.: Natalie Bauernschmitt, Bürgermeisterin
Geltungsbereich zur öffentlichen Bekanntmachung über die förmliche Öffentlichkeits-beteiligung des Bebauungsplanes „Trift Änderungsplan III“