Titel Logo
Winnweiler Rundschau
Ausgabe 10/2026
Amtlicher Teil
Zurück zur vorigen Seite
Zurück zur ersten Seite der aktuellen Ausgabe

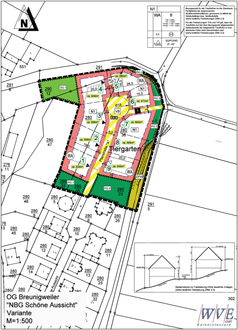
Baugrundstücke in Breunigweiler „Schöne Aussicht“

In Breunigweiler stehen 9 Baugrundstücke für Wohnhäuser zur Verfügung. Die attraktiv zugeschnittenen Baugrundstücke überzeugen durch ihre ruhige Lage im Grünen mit einem beeindruckenden Ausblick auf den Donnersberg und eignen sich ideal für nachhaltiges Bauen. Breunigweiler liegt im oberen Pfrimmtal, umgeben von Feldern, Wiesen und Wäldern. Die Gemeinde ist ruhig, familienfreundlich und hat Anschluss an die A63. Einkaufsmöglichkeiten, Schulen, Kindergärten und medizinische Versorgung sind schnell erreichbar. Die Freizeitangebote in der Natur sind vielfältig. Die angebotenen Baugrundstücke bieten vielseitige Möglichkeiten zur Realisierung individueller Wohnideen. Die Grundstücksgrößen variieren zwischen 470m2 und 690m2. Alle Grundstücke profitieren von hervorragenden Lichtverhältnissen. Die Nutzung richtet sich nach dem Bebauungsplan „Schöne Aussicht“. Möglich sind Einfamilienhäuser, Doppelhäuser und moderne Wohnkonzepte. Weitere Informationen gibt es bei der Verbandsgemeinde Winnweiler.

Der Preis für die Baugrundstücke beträgt etwa 250€/m2; die Erschließung beginnt, sobald fünf Plätze reserviert wurden, wobei hierfür eine Reservierungsvereinbarung erforderlich ist; Ansprechpartner ist die Gemeinde Breunigweiler.

Ansprechpartner:

Breunigweiler

Herr Marcel Form | Tel. 06357 / 975 975 | form.marcel@gmx.de

Verbandsgemeindeverwaltung Winnweiler

Herr Roland Schreiber | Tel. 06302-602-50 |

schreiberr@winnweiler-vg.de