Titel Logo
Winnweiler Rundschau
Ausgabe 10/2026
Amtlicher Teil
Zurück zur vorigen Seite
Zurück zur ersten Seite der aktuellen Ausgabe

Öffentliche Bekanntmachung der Ortsgemeinde Winnweiler

Die Gemeindevertretung der Ortsgemeinde Winnweiler hat am 05.02.2026 in öffentlicher Sitzung die Aufhebung des Beschlusses vom 11.01.2018 für das nach der frühzeitigen Beteiligung aufgeteilte Bebauungsplanverfahren „Jakobstraße/ Sparkasse“ beschlossen.

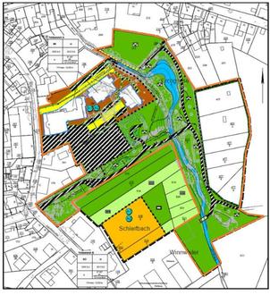
Der Ortsgemeinderat Winnweiler hat am 11.01.2018 in öffentlicher Sitzung die Aufstellung des Bebauungsplanes „Jakobstraße/ Lohnsbachpark“ beschlossen. Der Geltungsbereich beinhaltet den Lohnsbachpark, sowie angrenzende Grundstücke und hat eine Größe von ca. 3,3 ha. Die genaue Abgrenzung ergibt sich aus der Planurkunde.

Mit der Aufstellung des Bebauungsplanes war beabsichtigt, die bauplanungs- und bauordnungsrechtlichen Voraussetzungen für die Realisierung von zwei Mehrfamilienhäusern und einem Sondergebiet mit der Zweckbestimmung „Medizinische Versorgung“ zu schaffen, sowie die bestehenden Grünflächen im rückwärtigen Bereich der Jakobstraße sowie des Lohnsbachparks zu sichern.

Die frühzeitige Bürgerbeteiligung gemäß § 3 Abs. 1 BauGB sowie die Beteiligung der Behörden und sonstigen Trägern öffentlicher Belange gem. § 4 Abs. 1 BauGB fand vom 28.01.2021 bis einschließlich 01.03.2021 statt.

Im Zuge der frühzeitigen Beteiligung wurde das Verfahren in zwei getrennte Verfahren aufgeteilt. Das eine Verfahren wurde unter dem Bebauungsplanverfahren „Lohnsbachpark/ Sparkasse“ und das andere Bebauungsplanverfahren mit der Bezeichnung „Schleifbach“ durchgeführt.

Der Bebauungsplan „Schleifbach“ ist am 29.09.2023 mit der öffentlichen Bekanntmachung in Kraft getreten und hat damit die bauplanungs- und bauordnungsrechtlichen Voraussetzungen für die Errichtung eines Sondergebietes mit der Zweckbestimmung „Medizinische Versorgung“ geschaffen. Zwischenzeitlich wurde auf dieser Fläche das neue GeFoWi Ärztehaus erfolgreich verwirklicht.

Im Geltungsbereich „Lohnsbachpark/ Sparkasse“ sollten die beiden Mehrfamilienhäuser errichtet und die bestehenden Grünanlagen gesichert werden. Da von der Planung der Errichtung der Mehrfamilienhäuser Abstand genommen wurde ist für den kompletten Geltungsbereich des Bebauungsplanverfahrens „Jakobstraße/ Sparkasse“ eine Überplanung nicht mehr erforderlich und der Aufstellungsbeschluss wird aufgehoben. Mit Vollzug dieser Bekanntmachung ist die Aufhebung des Aufstellungsbeschlusses vom 11.01.2018 für das Bebauungsplanverfahren „Jakobstraße/ Sparkasse“ rechtskräftig und das Verfahren somit eingestellt.

Winnweiler, den 06.03.2026
Winnweiler, den 06.03.2026
Ortsgemeinde
Verbandsgemeindeverwaltung
gez. Rudolf Jacob
gez. Rudolf Jacob
Ortsbürgermeister
Bürgermeister

Abgrenzung Geltungsbereich Bebauungsplanentwurf „Jakobstraße/ Sparkasse“