Titel Logo
Winnweiler Rundschau
Ausgabe 3/2023
Amtlicher Teil
Zurück zur vorigen Seite
Zurück zur ersten Seite der aktuellen Ausgabe

Öffentliche Bekanntmachung der Ortsgemeinde Winnweiler OT Potzbach

Betreff: Vollzug des Baugesetzbuches (BauGB);

hier: Aufstellung der Satzung zur Aufhebung des rechtskräftigen Bebauungsplanes „Flurstraße“ in der Ortsgemeinde Winnweiler OT Potzbach im Regelverfahren

- Bekanntmachung der frühzeitigen Öffentlichkeitsbeteiligung gemäß § 3 Abs. 1 BauGB i.V. m. § 4 Abs. 1 BauGB

Die Gemeindevertretung der Ortsgemeinde Winnweiler hat am 14.10.2021/ 13.12.2022 in öffentlicher Sitzung aufgrund von § 2 Abs. 1 BauGB beschlossen, für den Planbereich „Flurstraße“ eine Aufhebungssatzung des Bebauungsplanes aufzustellen und eine frühzeitige Beteiligung der Öffentlichkeit nach § 3 Abs.1 BauGB durchzuführen.

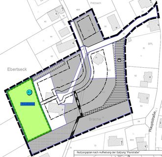
Geltungsbereich:

Die räumliche Abgrenzung des Aufhebungsbereiches ergibt sich aus dem Lageplan und entspricht dem räumlichen Geltungsbereich des Bebauungsplanes „Flurstraße“ aus dem Jahr 2006. Der Geltungsbereich des aufzuhebenden Bebauungsplanes umfasst folgende Flurstücke: 48 (teilweise), 59, 60, 74, 75/1, 75/2, 76 (teilweise), 77 und 79 (teilweise).

Ziele und Zwecke der Planung:

Mit der Aufstellung des Bebauungsplans „Flurstraße“ sollten die planungsrechtlichen Voraussetzungen für die Entwicklung von Wohnbaufläche geschaffen werden. Die Planung wurde bislang nur zum Teil umgesetzt und wird nicht weiter angestrebt. Die Grundstücke im räumlichen Geltungsbereich des aufzuhebenden Bebauungsplans liegen künftig im unbeplanten Innenbereich. Die planungsrechtliche Zulässigkeit von Bauvorhaben richtet sich künftig nach § 34 BauGB.

Flächennutzungsplan

Nach § 5 Abs. 1 Satz 1 BauGB ist im Flächennutzungsplan für das ganze Gemeindegebiet die sich aus der beabsichtigten städtebaulichen Entwicklung ergebende Art der Bodennutzung nach den voraussehbaren Bedürfnissen der Gemeinde in den Grundzügen darzustellen. Für die Verbandsgemeinde Winnweiler wird aktuell die 2. Fortschreibung des Flächennutzungsplans durchgeführt. Der Entwurf der Flächennutzungsplanung weist das Gebiet als geplante Mischbaufläche aus.

Frühzeitige Öffentlichkeitsbeteiligung:

Der Öffentlichkeit wird Gelegenheit zur Stellungnahme gegeben.

Die Öffentlichkeit kann sich im Rathaus der Verbandsgemeindeverwaltung Winnweiler, Jakobstraße 29, 67722 Winnweiler, Gebäude 2 Zimmer-Nummer 2-101 während der Öffnungszeiten über die allgemeinen Ziele und Zwecke sowie die wesentlichen Auswirkungen der Planung unterrichten und sich innerhalb einer Frist von einem Monat vom 26.01.2023 bis einschließlich 28.02.2023 zur Planung schriftlich oder zur Niederschrift äußern.

Die Auslegungszeiten sind wie folgt festgelegt:

Montags, dienstags, mittwochs von 08.00 Uhr bis 12.00 Uhr und von 13.00 Uhr bis 16.30 Uhr, donnerstags von 08.00 Uhr bis 12.00 Uhr und von 13.00 Uhr bis 17.30 Uhr, freitags von 08.00 Uhr bis 12.00 Uhr.

Gegenstand der Auslegung:

Entwurf der Aufhebungssatzung

Entwurf Begründung

Hinweis:

Für die Dauer der Auslegung können Stellungnahmen zum Bebauungsplan eingereicht werden. Die Anregungen etc. können schriftlich oder zur Niederschrift bei der Verbandsgemeindeverwaltung, Jakobstr. 29, 67722 Winnweiler, vorgebracht werden. Da das Ergebnis der Behandlung der Stellungnahmen mitgeteilt wird, ist die Angabe der Anschrift des Verfassers zweckmäßig.

Gemäß § 3 Abs. 2 Satz 2 BauGB wird darauf hingewiesen, dass nicht fristgerecht abgegebene Stellungnahmen bei der Beschlussfassung über den Bauleitplan unberücksichtigt bleiben können.

Ergänzend zur Auslegung können die oben genannten Unterlagen im Internet, unter www.winnweiler-vg.de unter der Rubrik: Rathaus, Bauen und Wohnen, Bauleitplanung, Bauleitpläne im Verfahren und auch über das Geoportal Rheinland-Pfalz (http://www.geoportal.rlp.de) elektronisch abgerufen bzw. eingesehen werden.

Datenschutz:

Im Zusammenhang mit dem Datenschutz wird darauf hingewiesen, dass Bauleitplanverfahren öffentliche Verfahren sind und daher alle dazu eingehenden Stellungnahmen in öffentlicher Sitzung beraten und beschlossen werden.

Winnweiler, 18.01.2023
Verbandsgemeindeverwaltung Gemeinde Winnweiler
gez. Rudolf Jacob , Bürgermeister

Anlage: Geltungsbereich der Aufhebungssatzung des Bebauungsplanes „Flurstraße“ in der Ortsgemeinde Winnweiler OT Potzbach