Titel Logo
Winnweiler Rundschau
Ausgabe 30/2024
Amtlicher Teil
Zurück zur vorigen Seite
Zurück zur ersten Seite der aktuellen Ausgabe

Öffentliche Bekanntmachung Gemeinde Breunigweiler

Betreff: Vollzug des Baugesetzbuches (BauGB);

hier: Bebauungsplanverfahren „Schöne Aussicht“ in der Ortsgemeinde Breunigweiler

Erneute Offenlage des Planentwurfes gemäß § 3 Abs. 2 BauGB i.V.m. 4a Abs. 3 BauGB

Der Ortsgemeinderat Breunigweiler hat in seiner öffentlichen Sitzung am 03.07.2024 die öffentliche Auslegung des Bebauungsplanentwurfs, bestehend aus Plan, Textfestsetzungen, Begründung und Umweltbericht, sowie den wesentlichen umweltbezogenen Stellungnahmen und Informationen, gemäß § 3 Abs. 2 Baugesetzbuch (BauGB), vom 03.11.2017 (BGBl. I S. 3634), in der derzeit gültigen Fassung, beschlossen.

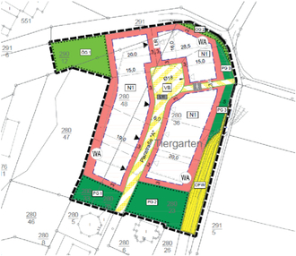
Geltungsbereich:

Das Plangebiet befindet sich im Nordosten der Ortslage der Gemeinde Breunigweiler. Die genaue Abgrenzung des Geltungsbereichs lässt sich aus den zeichnerischen Festsetzungen entnehmen.

Der Geltungsbereich umfasste zum Zeitpunkt des Aufstellungsbeschlusses eine Größe von ca. 0,9 ha und wurde im Vorfeld der Offenlage des Bebauungsplanes insb. im nördlichen Bereich um den bestehenden Feldweg verkleinert, sodass der Flächenumgriff derzeit circa 0,8 Hektar beträgt.

Allgemeine Ziele und Zweck der Planung:

Zur Deckung der kurz- und mittelfristigen Nachfrage nach Wohnbaugrundstücken beabsichtigt die Ortsgemeinde Breunigweiler im Nordosten der Ortslage neue Wohnbauflächen auszuweisen.

Der Aufstellungsbeschluss wurde vom Gemeinderat am 16.05.2018 in öffentlicher Sitzung gefasst. Mit der Ausweisung erfolgt eine Abrundung bzw. ein Lückenschluss zwischen der bestehenden Bebauung des Gebietes „Tiergarten“ im Süden und der Bestandsbebauung der Straße „Im Tiergarten“ nordwestlich des Plangebietes. Der Bebauungsplan enthält rechtsverbindliche Festsetzungen für die städtebauliche Ordnung und damit werden planungsrechtliche Voraussetzungen für die Erschießung und die Bebauung, d.h. für eine langfristige geordnete Siedlungsentwicklung geschaffen.

Erneute Offenlage

Auf Grund der im Ergebnis der Offenlage erforderlichen Änderungen und inhaltlichen Anpassungen der Planungsunterlagen im Bereich der Grünordnung und des Naturschutzes ist es erforderlich die Planungsunterlagen gemäß § 4a Abs. 3 BauGB erneut offenzulegen. Bei der erneuten Planauslegung sollen Stellungnahmen nur zu den geänderten oder ergänzten Teilen abgegeben werden. Der Öffentlichkeit wird gem. § 4a Abs. 3 BauGB erneut Gelegenheit zur Stellungnahme gegeben. Die Änderungen sind im Textteil farblich hervorgehoben.

Gegenstand der Auslegung:

Ausgelegt werden: der Bebauungsplanentwurf, bestehend aus Plan, Textfestsetzungen, Begründung, Umweltbericht mit integriertem Fachbeitrag Naturschutz und Artenschutzrechtlicher Vorprüfung mit Potentialabschätzung, Entwässerungskonzept, Geo-/ umwelttechnischer Bericht, Kampfmittelvorerkundung, Konzept zur Etablierung von artenreichen Flachland-Mähwiesen im Rahmen der Ausnahmegenehmigung nach § 30 Abs. 3 u. 4 BNatSchG sowie den nach Einschätzung der Gemeinde Breunigweiler wesentlichen umweltbezogenen Stellungnahmen und Informationen und der Abwägung aus dem Beteiligungsverfahren nach §§ 3 Abs. 2 und 4 Abs. 2 BauGB.

Folgende umweltbezogene Informationen sind verfügbar:

Umweltbericht mit umweltbezogenen Themen:

Auswirkungen auf den Menschen (Verkehr, Luftschadstoffe, Lärmemissionen etc..), Fauna (Säugetiere, Vögel, Reptilien und sonstige Arten), Flora (Pflanzen, Vegetation, Biotoptypen etc.), Böden (Relief, Geologie etc.), Wasser (Grundwasser, Oberflächenwasser, Wasserhaushalt etc.), Klima und Lufthygiene (Niederschlag, Temperatur etc.), Landschaftsbild und Erholung, Kultur- und sonstige Sachgüter

Umweltbezogene Fachgutachten:

Artenschutzrechtliche Vorprüfung (Potentialabschätzung) vom Februar 2018/ Tektur März 2022

Geo-/ umwelttechnischer Bericht vom 01.02.2022

Entwässerungskonzept Stand Mai 2022

Kampfmittelvorerkundung Auswertungsprotokoll vom 19.11.2021

Hinweise zu Umweltbelangen aus den Verfahren nach § 3 und § 4 BauGB:

-

Dienstleistungszentrum Ländlicher Raum vom 30.05.2018: Ausgleichsflächen und –maßnahmen

-

Kreisverwaltung Donnersbergkreis, Untere Landesplanungsbehörde vom 27.06.2018 und vom 11.08.2022: Ausgleichsflächen und –maßnahmen, Schwellenwertnachweis

-

Kreisverwaltung Donnersbergkreis, Untere Naturschutzbehörde vom 25.06.2018 und vom 12.08.2022: Artenschutzrechtliche Vorprüfung, Biotop/ Schutzflächen, Gehölzehalt, Ausgleichsfläche, Eingriffs-/ Ausgleichsbilanzierung, Geschützte Arten – Zauneidechse

-

Landesamt für Geologie und Bergbau Rheinland-Pfalz vom 02.07.2018: Baugrund und Radonprognose

-

Landesjagdverband Rheinland-Pfalz e.V. vom 02.07.2018: Schutzkriterien nach dem LNatSchG und artenschutzrechtliche Verträglichkeit

-

Planungsgemeinschaft Westpfalz vom 10.08.2022: Schwellenwerte

-

Private Stellungnahme vom 02.07.2018: Ausgleichsflächen

-

Private Stellungnahmen vom 08.08.2022: Regenwasserentwässerung, Schmutzwasser, strukturelle und nachhaltige Dorfentwicklung, Erschließung

-

Struktur- und Genehmigungsdirektion Süd, Regionalstelle Wasserwirtschaft, Abfallwirtschaft und Bodenschutz vom 09.07.2018 und vom 24.08.2022: Niederschlagswasserbewirtschaftung, Starkregengefährdung Flächenversiegelung, Entwässerungskonzept, Gewässer/ Außengebietsentwässerung, Grundwasserschutz, Schmutzwasser und Bodenschutz

Gemäß § 3 Abs. 2 BauGB wird der Entwurf des Bebauungsplanes, die Textlichen Festsetzungen, die Begründung mit Umweltbericht und den nach Einschätzung der Gemeinde wesentlichen, bereits vorliegenden umweltbezogenen Stellungnahmen und Informationen für die Dauer eines Monats, mindestens jedoch für die Dauer von 30 Tagen in der Zeit vom 29.07.2024 bis einschließlich 30.08.2024 im Internet unter www.winnweiler-vg.de unter der Rubrik, Rathaus, Bauen und Wohnen, Bauleitplanung, Bauleitpläne im Verfahren veröffentlicht.

Zusätzlich zur Veröffentlichung im Internet liegen in diesem Zeitraum die Unterlagen des Bebauungsplanverfahrens zu jedermanns Einsicht, während der üblichen Dienstzeiten bei der Verbandsgemeindeverwaltung Winnweiler, Gebäude 2, Zimmer 2/101, Jakobstraße 29, 67722 Winnweiler, öffentlich aus.

Die Auslegungszeiten sind wie folgt festgesetzt: Montags, dienstags, mittwochs von 08.00 Uhr bis 12.00 Uhr und von 13.00 Uhr bis 16.30 Uhr, donnerstags von 08.00 Uhr bis 12.00 Uhr und von 13.00 Uhr bis 17.30 Uhr, freitags von 08.00 Uhr bis 12.00 Uhr.

Hinweis:

Während der Dauer der Veröffentlichungsfrist können Stellungnahmen zum Entwurf des Bebauungsplanes abgegeben werden. Diese Stellungnahmen sollen elektronisch an bauleitplanung@winnweiler-vg.de übermittelt werden. Auf anderem Weg fristgerecht abgegebene Stellungnahmen werden ebenfalls beim Verfahren berücksichtigt.

Unabhängig von der Übermittlung weisen wir darauf hin, dass gem. § 3 Abs. 2 Nr. 3 BauGB nicht fristgerecht abgegebene Stellungnahmen bei der Beschlussfassung über den Bauleitplan unberücksichtigt bleiben können.

Datenschutz:

Im Zusammenhang mit dem Datenschutz wird darauf hingewiesen, dass Bauleitplanverfahren öffentliche Verfahren sind und daher alle dazu eingehenden Stellungnahmen in öffentlicher Sitzung beraten und beschlossen werden.

Winnweiler, 26.07.2024
Breunigweiler, 26.07.2024
Verbandsgemeindeverwaltung
Gemeinde Breunigweiler
gez. Rudolf Jacob
gez. Marcel Form
Bürgermeister
Ortsbürgermeister

Geltungsbereich:

Bebauungsplan „Schöne Aussicht“,

Gemeinde Breunigweiler