Titel Logo
Winnweiler Rundschau
Ausgabe 4/2023
Amtlicher Teil
Zurück zur vorigen Seite
Zurück zur ersten Seite der aktuellen Ausgabe

Öffentliche Bekanntmachung der Ortsgemeinde Winnweiler

Betreff: Vollzug des Baugesetzbuches (BauGB);

hier:

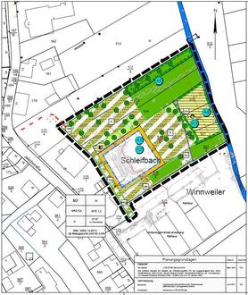
Bebauungsplanverfahren „Schleifbach“ in der Ortsgemeinde Winnweiler

Erneute Offenlage des Planentwurfes gemäß § 4a Abs. 3 Baugesetzbuch

Der Ortsgemeinderat Winnweiler hat in seiner öffentlichen Sitzung am 13.12.2022 die erneute öffentliche Auslegung des Bebauungsplanentwurfs, bestehend aus Plan, Textfestsetzungen, Begründung und Umweltbericht, sowie den wesentlichen umweltbezogenen Stellungnahmen und Informationen, gemäß § 3 Abs. 2 Baugesetzbuch (BauGB) in der Fassung der Bekanntmachung vom 03. November 2017 (BGBI. I S. 3634), das zuletzt durch Artikel 1 des Gesetzes vom 14. Juni 2021 (BGBI. I S. 1802) geändert worden ist, beschlossen.

Allgemeine Ziele und Zweck der Planung:

Die Ortsgemeinde Winnweiler beabsichtigt die Aufstellung des Bebauungsplanes „Schleifbach“, um die bauplanungs- und bauordnungsrechtlichen Voraussetzungen für die Errichtung eines Sondergebietes mit der Zweckbestimmung „Medizinische Versorgung“ zu erreichen.

Geltungsbereich:

Der räumliche Geltungsbereich des Bebauungsplans "Schleifbach" wurde erweitert und umfasst die Grundstücke mit den Flurstücks-Nummern 515, 515/2, 516, 519, 520, 521, 521/3, 518/2, 518/5 und 522/2 entsprechend der Darstellung in der Planurkunde. Der räumliche Geltungsbereich des Bebauungsplanes umfasst eine Gesamtfläche von ca. 0,75 ha.

Flächennutzungsplan:

Das Plangebiet wird in der Fortschreibung bzw. im Entwurf des neuen Flächennutzungsplans der VG Winnweiler zum einen teilweise als Neuausweisung (Wi 08) zum anderen bereits teilweise als Flächen für den Gemeinbedarf mit der Zweckbestimmung "öffentliche Verwaltung" in der OG Winnweiler berücksichtigt und stellt eine Siedlungserweiterung der Winnweiler Ortslage in östlicher Richtung dar.

Erneute Offenlage:

Aufgrund der eingegangenen Stellungnahmen aus der Öffentlichkeitsbeteiligung nach § 3 Absatz 2 BauGB und der eingegangenen Stellungnahmen aus der Beteiligung der Behörden und sonstigen Träger öffentlicher Belange nach § 4 Absatz 2 BauGB wurde der Entwurf angepasst und abgeändert. Weiterhin wurde der Geltungsbereich erweitert.

Gegenstand der Auslegung:

-

Bebauungsplanentwurf

-

textlichen Festsetzungen mit Begründung und Umweltbericht

-

Fachbeitrag Naturschutz

-

umweltbezogenen Stellungnahmen und Informationen.

-

Abwägungsunterlagen

Hinweise zu Umweltbelangen aus den Verfahren nach § 3 und § 4 BauGB

Stellungnahme Bürger vom 26.02.2021: Hochwasserschutz, Verkehr, Städtebauliche Entwicklung

Stellungnahme Bürger vom 01.03.2021: Verkehr, Grünflächen, Städtebauliche Entwicklung

Stellungnahme Bürger vom 26.02.2021: Hochwasserschutz, Verkehr, Städtebauliche Entwicklung

Stellungnahme Bürger vom 22.02.2021: Schutz des Menschen, Schutz der Natur, Artenschutz, Hochwasserschutz, Retentionsflächen, Klima

Stellungnahme Bürger vom 01.03.2021: Schutz des Menschen, Gewässer/ Hochwasserschutz, Flächenversiegelung, Ausgleich-/ Ersatzmaßnahmen

Stellungnahme Bürger vom 01.02.2021 und 23.02.2021: Hochwasserschutz, Bestands-und Konfliktplan, Flächenversiegelung, Ausgleichs- und Ersatzmaßnahmen

Stellungnahme Bürger vom 14.02.2021: Schutz des Menschen, Schutz von Flora und Fauna, Immisionssschutz, Verkehr, Gewässer, Hochwasserschutz, Retentionsflächen, Ausgleichsmaßnahmen, Klimawandel, städtebauliche Entwicklung

Stellungnahme Bürger vom 15.02.2021: Schutz des Menschen, Immisionsschutz, Erholungsräume, Verkehr, Hochwasserschutz, Retentionsflächen

Stellungnahme Bürger vom 22.02.2021: Schutz des Menschen, Schutz von Flora und Fauna, Hochwasserschutz, Retentionsflächen, Flächenversiegelung, Klimawandel, Verkehr, Immissionsschutz

Stellungnahme Bürger vom 24.02.2021: Schutz des Menschen, Freizeit- und Erholungsfläche, Schutz von Flora und Fauna, Immissiosschutz, Hochwasserschutz, Retentionsflächen, Verkehr, Klimawandel, Ausgleichs-/ Ersatzmaßnahmen, Städtebauliche Entwicklung

Stellungnahme Bürger vom 24.02.2021: Schutz des Menschen, Immissionsschutz, Hochwasserschutz, Verkehr, Klimawandel, Städtebauliche Entwicklung

Stellungnahme Bürger vom 24.02.2021: Schutz des Menschen, Schutz von Flora und Fauna, Immissionsschutz, Grundwasser, Gewässer, Hochwasserschutz, Retentionsflächen, Flächenversiegelung, Klimawandel, Verkehr, Städtebauliche Entwicklung

Stellungnahme Bürger vom 26.02.2021: Hochwasserschutz, Entwässerung

Stellungnahme Bürger vom 07.08.2021 und 13.08.2021: Ausgleichsmaßnahmen, Umweltbericht, Hochwassersituation, Ausgleichs- und Ersatzmaßnahmen

Generaldirektion Kulturelles Erbe Rheinland- Pfalz, Direktion Landesarchäologie, Mainz: Kleindenkmäler

Generaldirektion Kulturelles Erbe Rheinland- Pfalz, Landesdenkmalpflege, Mainz: Kulturdenkmäler

Kreisverwaltung Donnersbergkreis, Untere Landesplanungsbehörde Kirchheimbolanden: Hochwasserschutz, Schwellen und Bedarfswert-berechnung

Kreisverwaltung Donnersbergkreis, Untere Naturschutzbehörde, Kirchheimbolanden: Vegetationsflächen, Einzelstrukturen und Lebensräume, landespflegerische Maßnahmen, bilanzierende Eingriffs-/ Ausgleichsbilanzierung

Schutzgemeinschaft Deutscher Wald/ Landesaktionsgemeinschaft Natur und Umwelt, Obermoschel: Kompensationsmaßnahmen, Bodenversiegelung, Landschaftsbild

Struktur- und Genehmigungsdirektion Süd, Kaiserslautern: Oberflächenentwässerung, Gewässer, Hochwasser-/Starkregengefährdung, Schmutzwasser, Bodenschutz

Planungsgemeinschaft Westpfalz, Kaiserslautern: Städtebauliches Entwicklungskonzept, Gewässerverlauf, Hochwasserschutz

Gemäß § 3 Abs. 2 BauGB liegen die Unterlagen in der Zeit vom 02.02.2023 bis einschließlich 06.03.2023 zu jedermanns Einsicht, während der üblichen Dienstzeiten bei der Verbandsgemeindeverwaltung Winnweiler, Gebäude 2, Zimmer 2/101, Jakobstraße 29, 67722 Winnweiler, öffentlich aus.

Die Auslegungszeiten sind wie folgt festgesetzt: Montags, dienstags, mittwochs von 08.00 Uhr bis 12.00 Uhr und von 13.00 Uhr bis 16.30 Uhr, donnerstags von 08.00 Uhr bis 12.00 Uhr und von 13.00 Uhr bis 17.30 Uhr, freitags von 08.00 Uhr bis 12.00 Uhr.

Hinweis:

Für die Dauer der Auslegung können Stellungnahmen zum Bebauungsplan eingereicht werden. Die Anregungen etc. können schriftlich oder zur Niederschrift bei der Verbandsgemeindeverwaltung, Jakobstr. 29, 67722 Winnweiler, vorgebracht werden.

Gemäß § 3 Abs. 2 Satz 2 BauGB wird darauf hingewiesen, dass nicht fristgerecht abgegebene Stellungnahmen bei der Beschlussfassung über die Bauleitpläne unberücksichtigt bleiben können.

Ergänzend zur Auslegung können die o.g. Unterlagen im Internet unter www.winnweiler-vg.de unter der Rubrik, Rathaus, Bauen und Wohnen, Bauleitplanung, Bauleitpläne im Verfahren abgerufen bzw. eingesehen werden.

Die vollständigen umweltbezogenen Stellungnahmen von Fachbehörden und sonstiger Träger öffentlicher Belange aus der Behördenbeteiligung, Verbände und Bürger können nur bei der Verbandsgemeindeverwaltung eingesehen werden.

Datenschutz:

Im Zusammenhang mit dem Datenschutz wird darauf hingewiesen, dass Bauleitplanverfahren öffentliche Verfahren sind und daher alle dazu eingehenden Stellungnahmen in öffentlicher Sitzung beraten und beschlossen werden.

Winnweiler, den 25.01.2023
Winnweiler, den 25.01.2023
Ortsgemeinde
Verbandsgemeindeverwaltung
gez. Rudolf Jacob
gez. Rudolf Jacob
Ortsbürgermeister
Bürgermeister

Anlage:

Entwurf Geltungsbereich

Gemeinde Winnweiler Bebauungsplan „Schleifbach“