Titel Logo
Winnweiler Rundschau
Ausgabe 43/2024
Amtlicher Teil
Zurück zur vorigen Seite
Zurück zur ersten Seite der aktuellen Ausgabe

Öffentliche Bekanntmachung der Gemeinde Münchweiler

Inkrafttreten des Bebauungsplans

„PV- Anlage Stockwiese“ der Gemeinde Münchweiler a.d. Alsenz

Genehmigung:

Aufgrund des § 10 Baugesetzbuch (BauGB) in der Fassung der Bekanntmachung vom 3. November 2017 (BGBl. I S. 3634), zuletzt durch Artikel 3 des Gesetzes vom 20. Dezember 2023 (BGBI. 2023 I Nr. 394) in Verbindung mit § 88 Abs. 6 Landesbauordnung Rheinland-Pfalz vom 24. November 1998 zuletzt geändert durch Gesetz vom 07.12.2022 (GVBl. S. 403), erlässt die Kreisverwaltung als zuständige Verwaltungsbehörde am 24.09.2024 folgende Verfügung:

„Der vom Ortsgemeinderat am 06.06.2024 als Satzung beschlossene Bebauungsplan PV- Anlage Stockwiese wird genehmigt.“

Die Gemeindevertretung der Ortsgemeinde Münchweiler hat am 06.06.2024 in öffentlicher Sitzung den Bebauungsplan „PV- Anlage Stockwiese“ als Satzung beschlossen.

Geltungsbereich:

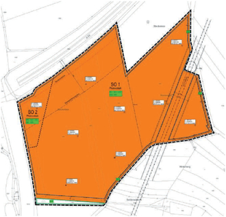
Der Geltungsbereich umfasst eine Gesamtfläche von ca. 12 ha und beinhaltet die Grundstücke mit den Flurstücks-Nummern 1917, 1918, 1957, 1958, 1960, 1961, 1962 und 1963 (teilw.). Die genaue Abgrenzung des Geltungsbereichs lässt sich aus der Darstellung in der Planurkunde entnehmen.

Der Bebauungsplan „PV- Anlage Stockwiese“ der Ortsgemeinde Münchweiler a.d. Alsenz tritt mit dieser Bekanntmachung in Kraft (vgl. § 10 Abs. 3 BauGB).

Der Bebauungsplan, bestehend aus der Planurkunde, den Textlichen Festsetzungen, der Begründung mit Umweltbericht und der Zusammenfassenden Erklärung, kann bei der Verbandsgemeindeverwaltung Winnweiler, Jakobstraße 29, 67722 Winnweiler, Referat 2, während den üblichen Öffnungszeiten eingesehen werden.

Ergänzend sind die Unterlagen im Internet unter:

https://www.winnweiler-vg.de/rathaus/bauleitplanung/bebauungsplaene/og-muenchweiler

einsehbar.

Auf die Vorschriften des § 44 Abs. 3 Satz 1 und 2 BauGB, über die Fälligkeit etwaiger Entschädigungsansprüche, deren Leistung schriftlich beim Entschädigungspflichtigen zu beantragen ist, und des § 44 Abs. 4 BauGB über das Erlöschen von Entschädigungsansprüchen, wird hingewiesen.

Es wird, gemäß § 215 Abs. 1 und 2 BauGB, darauf hingewiesen, dass eine Verletzung der in § 214 Abs. 1 Satz 1 Nr. 1 - 3 des Baugesetzbuches bezeichneten Verfahrens- und Formvorschriften, eine unter Berücksichtigung des § 214 Abs. 2 beachtliche Verletzung der Vorschriften, über das Verhältnis des Bebauungsplans und des Flächennutzungsplans, ein nach § 214 Abs. 2 a BauGB beachtlicher Fehler oder ein nach § 214 Abs. 3 Satz 2 BauGB beachtlicher Mangel des Abwägungsvorgangs nur beachtlich werden, wenn sie innerhalb eines Jahres, seit dieser Bekanntmachung, schriftlich, gegenüber der Gemeinde, geltend gemacht worden sind. Der Sachverhalt, der die Verletzung von Rechtsvorschriften oder den Mangel des Abwägungsvorganges begründen soll, ist darzulegen.

Satzungen, die unter Verletzung von Verfahrens- und Formvorschriften der Gemeindeordnung zustande gekommen sind, gelten ein Jahr nach der Bekanntmachung als von Anfang an gültig zustande gekommen. Auf § 24 Abs. 6 der Gemeindeordnung Rheinland-Pfalz wird verwiesen.

Münchweiler, 25.10.2024
Winnweiler, 25.10.2024
Verbandsgemeindeverwaltung
gez. Tanja Dautermann
gez. Rudolf Jacob
Ortsbürgermeisterin
Bürgermeister

Satzung

über die Aufstellung des Bebauungsplans „PV- Anlage Stockwiese“ in der Ortsgemeinde Münchweiler/ Alsenz im Verfahren nach § 2 Abs. 1 BauGB

vom 11.10.2024

Aufgrund des § 10 des Baugesetzbuches (BauGB) i.V.m. § 24 Gemeindeordnung (GemO) hat die Gemeindevertretung der Ortsgemeinde Münchweiler in öffentlicher Sitzung am 06.06.2024 den Bebauungsplan „PV- Anlage Stockwiese“ im Verfahren nach § 2 Abs. 1 BauGB beschlossen.

§ 1

Der räumliche Geltungsbereich des Bebauungsplanes umfasst eine Gesamtfläche von ca. 12 ha und beinhaltet die Grundstücke mit den Flurstücks-Nummern 1917, 1918, 1957, 1958, 1960, 1961, 1962 und 1963 (teilw.). Die genaue Abgrenzung des Geltungsbereichs lässt sich aus der Darstellung in der Planurkunde entnehmen.

§ 2

Bestandteil der Satzung ist die Bebauungsplanurkunde, die Textlichen Festsetzungen, die Begründung mit Umweltbericht und die Zusammenfassende Erklärung.

§ 3

Der Bebauungsplan „PV- Anlage Stockwiese“ der Ortsgemeinde Münchweiler tritt mit der Bekanntmachung in Kraft (§ 10 Abs. 3 BauGB).

Münchweiler, den 11.10.2024
gez. Tanja Dautermann
Ortsbürgermeisterin

Lageplan Bebauungsplan „PV- Anlage Stockwiese“, OG Münchweiler