Titel Logo
Winnweiler Rundschau
Ausgabe 44/2022
Amtlicher Teil
Zurück zur vorigen Seite
Zurück zur ersten Seite der aktuellen Ausgabe

Vergabe-Richtlinie, Zuteilung eines gemeindeeigenen Baugrundstücks

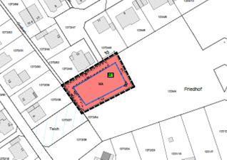
In der Gemeinde Münchweiler steht ein gemeindeeigenes Grundstück, mit der Plan-Nummer 1224/5 und einer Größe von 1.340 m², in der Ziegelstraße, als Bauland zur Verfügung. Das Grundstück ist nach den Regelungen des Bebauungsplans, der Gemeinde Münchweiler Ackerwiese, Ziegelhütte, Bornacker, Seier, 6. Änderung, bebaubar.

https://www.winnweiler-vg.de/rathaus/bauleitplanung/bebauungsplaene

Auszug Bebauungsplan:

Da in der Gemeinde Münchweiler eine Knappheitssituation an Baulandflächen besteht, hat die Gemeinde Münchweiler die Aufstellung einer Vergabe-Richtlinie zur Zuteilung des Baugrundstücks beschlossen.

Bei der Bereitstellung von Bauland handelt die Gemeinde im Bereich der kommunalen Selbstverwaltung. Es steht daher im Ermessen der Gemeinde, ob und inwieweit sie in ihrem Eigentum befindliches Bauland an Private vergibt.

Unter den nachfolgend genannten Bedingungen können Bewerber einen Zuteilungsantrag stellen:

Stufe 1

1.

Der/Die Bewerber müssen, zum Zeitpunkt der Bewerbung, mit Hauptwohnsitz in der Gemeinde Münchweiler/Als. gemeldet sein. Als Nachweis ist dem Antrag eine Meldebescheinigung beizulegen.

2.

Wer ein, an seinem Bedarf orientiert, ausreichend bemessenes Hausgrundstück, im Eigentum hat, kann keinen Zuteilungsantrag stellen. Als ausreichend bemessener Bedarf gelten die folgenden Wohnungsflächengrenzen:

-

Familienheime mit nur einer Wohnung

-

Familienheime mit zwei Wohnungen

-

eigengenutzte Eigentumswohnungen

und Kaufeigentumswohnungen

-

andere Wohnungen in der Regel

Bei Familienheimen mit zwei oder mehr Wohnungen darf keine der Wohnungen die Wohnfläche von 130 Quadratmeter übersteigen. Als weitere Wohnung gilt nur eine abgeschlossene Wohnung.

Eine Überschreitung der Wohnflächengrenzen ist zulässig, soweit die Mehrfläche zu einer angemessenen Unterbringung eines Haushalts mit mehr als vier Personen erforderlich ist, oder soweit die Mehrfläche zur angemessenen Berücksichtigung der besonderen persönlichen oder beruflichen Bedürfnisse erforderlich ist.

Als Nachweis ist dem Antrag eine Eigenerklärung des Bewerbers beizulegen.

Stufe 2

In der zweiten Stufe des Vergabeverfahrens werden die Bewerber, nach Prüfung der Zuteilungsanträge, zur Abgabe eines Gebotes aufgefordert.

Hierzu gelten folgende Bedingungen:

-

Mindestgebot 200 € / m² Grundstücksfläche, entspricht 268.000 €

-

Vorlage einer Finanzierungsbestätigung

-

Bebauung entsprechend den Festsetzungen des Bebauungsplans

-

Bauverpflichtung (Bezugsfertig 3 Jahre)

-

Veräußerungs- und Vermietungsbeschränkung (5 Jahre)

-

Rückübertragungsverpflichtung (10 Jahre)

-

Auskehrung Mehrerlös im Falle einer unzulässigen Weiterveräußerung

Die Gebote sind erst nach Aufforderung in einem gekennzeichneten, verschlossenen Umschlag, bei der Verbandsgemeindeverwaltung, bis zum Eröffnungstermin abzugeben. Die Öffnung der Gebote erfolgt im Ratssaal des Rathauses der Verbandsgemeinde Winnweiler. Die Bieter sind berechtigt am Eröffnungstermin teilzunehmen. Im Eröffnungstermin werden nur die Nummern der Bieter und die Gebote, jedoch keine Namen genannt. Bei gleichem Gebot entscheidet das Los über die Zuteilung. Bei Rückzug des Höchstgebots erhält das nächsthöchste Gebot den Zuschlag, sofern es über dem Mindestgebot liegt.

Das Formular ´Zuteilungsantrag´ (Stufe 1) kann bei der Verbandsgemeindeverwaltung, Bauverwaltung, Jakobstr. 29, 67722 Winnweiler, telefonisch, schriftlich oder per Email angefordert werden.

Tel.: 06302-60250, bauleitplanung@winnweiler-vg.de

Das Formular ´Zuteilungsantrag´ ist bis zum 30.11.2022, in Schriftform, bei der Verbandsgemeindeverwaltung Winnweiler, Referat 2, Jakobstr. 29, 67722 Winnweiler einzureichen.

Für Rückfragen stehen wir gerne zur Verfügung.