Titel Logo
Winnweiler Rundschau
Ausgabe 47/2023
Amtlicher Teil
Zurück zur vorigen Seite
Zurück zur ersten Seite der aktuellen Ausgabe

Öffentliche Bekanntmachung der Ortsgemeinde Höringen

Betreff: Vollzug des Baugesetzbuches (BauGB);

hier: Bebauungsplanverfahren „Ehemaliges Sportplatzgelände“

in der Ortsgemeinde Höringen

Erneute Offenlage des Planentwurfes gemäß § 4a Abs. 3 Baugesetzbuch

Der Ortsgemeinderat Höringen hat in seiner öffentlichen Sitzung am 08.11.2023 die erneute öffentliche Auslegung des Bebauungsplanentwurfs, bestehend aus Plan, Textfestsetzungen, Begründung und Umweltbericht, sowie den wesentlichen umweltbezogenen Stellungnahmen und Informationen, gemäß § 3 Abs. 2 Baugesetzbuch (BauGB) in der Fassung der Bekanntmachung vom 03. November 2017 (BGBI. I S. 3634), das zuletzt durch Artikel 1 des Gesetzes vom 28. Juli 2023 (BGBI. 2023 I Nr. 221) geändert worden ist, beschlossen.

Allgemeine Ziele und Zweck der Planung:

In der Gemeinde Höringen wird beabsichtigt das alte Sportgelände in einem durch Landwirtschaft geprägten Gebiet städtebaulich neu zu ordnen. Nach Aufgabe der sportlichen Nutzung des Geländes möchten die Eigentümer die großen Flächen gerne für den Pferdesport und sonstige Freizeitanlagen nutzen.

Die Gemeinde hat langfristig die Absicht mit dem alten Sportgelände die Attraktivität des Gebietes zu erhöhen, einem Leerstand entgegenzuwirken und die neuen Eigentümer in Höringen zu halten. Pferdehaltung sowie weitere landwirtschaftliche Hobbynutzungen und sonstige Nebenanlagen sollen baurechtlich ermöglicht werden. Die Flächen sind für die angedachten Nutzungen prädestiniert und fügen sich gut in den landwirtschaftlich geprägten Bereich ein. Um in diesem Außenbereich diese Nutzung zu ermöglichen und z. B. auch Stallungen, Reitplätze und Führanlagen sowie eine Wanderreitstation „Pfalz zu Pferd“ und Nutzgärten zulassen zu können, möchte die Gemeinde die bauplanungsrechtlichen Voraussetzungen hierfür schaffen.

Geltungsbereich:

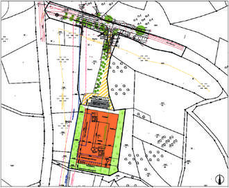
Das Plangebiet befindet sich südlich von Höringen. Beginnend an der Landesstraße L 390 bewegt es sich nach Süden. Die Fläche ist über die bestehende Bebauung bereits erschlossen und über private Zuwegungen gesichert. Der Geltungsbereich des Bebauungsplanes umfasst die Flurstücke 1575/4 und 1575/6 sowie die entsprechende Einmündung in die L 390 und hat eine Größe von ca. 1,29 ha. Die genaue Abgrenzung des räumlichen Geltungsbereichs des Bebauungsplans ergibt sich aus der Planzeichnung.

Flächennutzungsplan:

Im derzeitig gültigen Flächennutzungsplan der Verbandsgemeinde Winnweiler ist die gesamte Fläche des Plangebietes als Außenbereich dargestellt. Im Zuge der Fortschreibung des Flächennutzungsplanes vom November 2020 wird das Plangebiet als Sondergebiet mit Pferdehaltung (Hö 02) ausgewiesen.

Erneute Offenlage:

Der Gemeinderat Höringen hat am 04.07.2016 den Aufstellungsbeschluss und am 12.12.2017 den Satzungsbeschluss für den Bebauungsplan „Ehemaliges Sportplatzgelände Höringen“ gefasst. Die Satzungsunterlagen wurden im Rahmen des Genehmigungsverfahrens von der Kreisverwaltung Donnersbergkreis beanstandet. Der Bebauungsplanentwurf wurde vor allem bzgl.des Entwässerungskonzeptes und möglichen Altablagerungen überarbeitet und wird gemäß § 4a Abs. 3 BauGB im Rahmen einer erneuten Offenlage den Behörden und Trägern öffentlicher Belange sowie den Nachbargemeinden vorgelegt. Zeitgleich wird der Bebauungsplan für die Öffentlichkeit erneut ausgelegt.

Gegenstand der Auslegung:

Ausgelegt werden: der Bebauungsplanentwurf, bestehend aus Plan, Textfestsetzungen, Begründung und Umweltbericht, das Entwässerungskonzept, sowie den nach Einschätzung der Gemeinde Höringen wesentlichen umweltbezogenen Stellungnahmen und Informationen.

Folgende umweltbezogene Informationen sind verfügbar:

Umweltbericht mit umweltbezogenen Themen:

Naturräumliche Gegebenheiten, Schutzgut Mensch, Schutzgut, Tiere und Pflanzen, Schutzgut Boden, Schutzgut Wasser, Schutzgut Luft und Klima, Schutzgut Landschaft, Schutzgut Kultur- und sonstige Sachgüter

Umweltbezogene Fachgutachten

Entwässerungskonzept vom August 2023

Umwelttechnische Erkundung mit Ergänzungen vom August 2022

Verkehrstechnische Überplanung vom März 2021

Hinweise zu Umweltbelangen aus den Verfahren nach § 3 und § 4 BauGB

-

Forstamt Donnersberg vom 16.08.2016: Abstand zum Privatwald

-

Generaldirektion Kulturelles Erbe Rheinland- Pfalz, Direktion Landesarchäologie, Außenstelle Speyer vom 19.07.2016 und vom 13.06.2017: archäologische Kulturdenkmäler, Fundstellenkartierung

-

Kreisverwaltung Donnersbergkreis – Naturschutzbehörde vom 11.10.2016 und vom 06.06.2017: Bodenschutz, Ausgleichsfläche

-

Kreisverwaltung Donnersbergkreis – untere Wasserbehörde vom 09.08.2016 und vom 06.07.2017: Oberflächenentwässerung, Außengebietsabfluss, Gewässerschutzstreifen, Grundwasserschutz, Schmutzwasser, Bodenschutz

-

Landesamt für Geologie und Bergbau vom 17.08.2016 und vom 06.07.2017: Bergbau, Boden und Baugrund, Hochwasserschutz, Rohstoffe, Radonprognose

-

Landesjagdverband Rheinland- Pfalz vom 17.08.2016: Biotopschutz, Geotopschutz, Beweidung, Pferdehaltung, Regenwasserbewirtschaftung

-

Landesverband der Deutschen Wandervereine vom 19.08.2016: Wanderwege

-

SGD Süd, Regionalstelle Wasserwirtschaft, Abfallwirtschaft, Bodenschutz vom 03.08.2016 und vom 07.07.2017: Oberflächenentwässerung, Außengebietsabfluss, Gewässer, Grundwasserschutz, Schmutzwasser, Bodenschutz

Gemäß § 3 Abs. 2 i.V.m. § 4a Abs. 3 BauGB liegen die Unterlagen in der Zeit vom 04.12.2023 bis einschließlich 05.01.2024 zu jedermanns Einsicht, während der üblichen Dienstzeiten bei der Verbandsgemeindeverwaltung Winnweiler, Gebäude 2, Zimmer 2/101, Jakobstraße 29, 67722 Winnweiler, öffentlich aus.

Die Auslegungszeiten sind wie folgt festgesetzt: Montags, dienstags, mittwochs von 08.00 Uhr bis 12.00 Uhr und von 13.00 Uhr bis 16.30 Uhr, donnerstags von 08.00 Uhr bis 12.00 Uhr und von 13.00 Uhr bis 17.30 Uhr, freitags von 08.00 Uhr bis 12.00 Uhr.

Hinweis:

Für die Dauer der Auslegung können Stellungnahmen zum Bebauungsplan eingereicht werden. Die Anregungen etc. können schriftlich oder zur Niederschrift bei der Verbandsgemeindeverwaltung, Jakobstr. 29, 67722 Winnweiler, vorgebracht werden.

Gemäß § 3 Abs. 2 Satz 2 BauGB wird darauf hingewiesen, dass nicht fristgerecht abgegebene Stellungnahmen bei der Beschlussfassung über die Bauleitpläne unberücksichtigt bleiben können.

Ergänzend zur Auslegung können die o.g. Unterlagen im Internet unter www.winnweiler-vg.de unter der Rubrik, Rathaus, Bauen und Wohnen, Bauleitplanung, Bauleitpläne im Verfahren abgerufen bzw. eingesehen werden.

Die vollständigen umweltbezogenen Stellungnahmen von Fachbehörden und sonstiger Träger öffentlicher Belange aus der Behördenbeteiligung, Verbände und Bürger können nur bei der Verbandsgemeindeverwaltung eingesehen werden.

Datenschutz:

Im Zusammenhang mit dem Datenschutz wird darauf hingewiesen, dass Bauleitplanverfahren öffentliche Verfahren sind und daher alle dazu eingehenden Stellungnahmen in öffentlicher Sitzung beraten und beschlossen werden.

Höringen, den 24.11.2023
Winnweiler, den 24.11.2023
Ortsgemeinde
Verbandsgemeindeverwaltung
gez. Brigitte Enders
gez. Elisabeth Franck
Ortsbürgermeisterin
Beigeordnete

Anlage:

Entwurf Geltungsbereich

Gemeinde Höringen Bebauungsplan „Ehemaliges Sportplatzgelände“