Titel Logo
Winnweiler Rundschau
Ausgabe 51/2022
Amtlicher Teil
Zurück zur vorigen Seite
Zurück zur ersten Seite der aktuellen Ausgabe

Öffentliche Bekanntmachung der Ortsgemeinde Imsbach

Betreff: Vollzug des Baugesetzbuches (BauGB);

hier: Aufstellung des Bebauungsplanes „Auf dem Rain“

in der Ortsgemeinde Imsbach gemäß § 2 Abs. 1 BauGB

-

Bekanntmachung des

Aufstellungs-/Verfahrenseinleitungsbeschlusses gemäß § 2 Abs. 1 Satz 2 BauGB

-

Bekanntmachung der frühzeitigen Öffentlichkeitsbeteiligung gemäß § 3 Abs. 1 BauGB i.V. m. § 4 Abs. 1 BauGB

Die Gemeindevertretung der Ortsgemeinde Imsbach hat am 10.11.2022 in öffentlicher Sitzung aufgrund von § 2 Abs. 1 BauGB beschlossen, für den in der Planzeichnung dargestellten Bereich den Bebauungsplan „Auf dem Rain“ aufzustellen und eine frühzeitige Beteiligung der Öffentlichkeit nach § 3 Abs.1 BauGB durchzuführen.

Der Aufstellungs-/Verfahrenseinleitungsbeschluss des Gemeinderates gemäß § 2 Abs. 1 Satz 2 BauGB wird hiermit gemäß § 2 Abs. 1 Satz 2 Baugesetzbuch (BauGB) ortsüblich bekannt gemacht.

Die frühzeitige Öffentlichkeitsbeteiligung gemäß § 3 Abs. 1 BauGB wird hiermit ebenfalls ortsüblich bekannt gemacht.

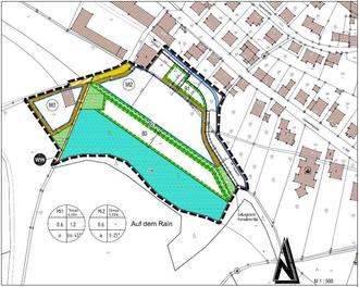
Geltungsbereich:

Für den räumlichen Geltungsbereich des Bebauungsplanes ist der Lageplan vom Oktober 2022 maßgebend.

Der Geltungsbereich des Bebauungsplanes hat eine Größe von ca. 1,45 ha und beinhaltet die Flurstücke 438, 438/2 (tw.), 439, 478, 484/15 (tw.), 725/6 (tw.) Die Fläche ist durch den vorhandenen öffentliche Erschließungsweg (Flurstücke 484/14 und 484/15) erschlossen.

Ziele und Zwecke der Planung:

Durch die vorliegende Satzung sollen einzelne Außenbereichsflächen (Flurstücks-Nr: 439 und 478 wie Teilflächen der Flurstücke 438/2, 484/15 und 725/6) überplant werden. Das bisher im Außenbereich befindliche Wohngebäude (Gienanthstraße 4, Flurstück 438) wird gleichzeitig mit in den Geltungsbereich der Satzung einbezogen. Dadurch wird eine städtebaulich abschließende Abrundung der bestehenden Bebauung am Ortsrand erreicht.

Ziel und Zweck der Bebauungsplanung ist für die unbebauten Grundstücke die betriebliche Erweiterung der ortsansässigen Dachdeckerei Schultz zu ermöglichen und ortsnahe Arbeitsplätze zu schaffen bzw. zu sichern.

Geplant ist der Neubau einer Produktionshalle (ca. 31,0 x 50,0 m und einer Bauhöhe von ca. 9,0 m) zum Herstellen von Dach- und Wandelementen mit CNC Abbundanlage und Portalbearbeitung.

Flächennutzungsplan

Im rechtskräftigen Flächennutzungsplan ist der Satzungsbereich als Außenbereich dargestellt.

In dem Entwurf des im Aufstellung- und Änderungsverfahren befindlichen Flächennutzungsplanes der VG Winnweiler ist dieser Bereich bislang nicht enthalten, soll aber im Zuge der hier vorliegenden Bebauungsplanung parallel ergänzt werden. Für den Geltungsbereich sind Grün- und Waldflächen dargestellt.

Frühzeitige Öffentlichkeitsbeteiligung:

Der Öffentlichkeit wird Gelegenheit zur Stellungnahme gegeben.

Die Öffentlichkeit kann sich im Rathaus der Verbandsgemeindeverwaltung Winnweiler, Jakobstraße 29, 67722 Winnweiler, Gebäude 2 Zimmer-Nummer 2-101 während der Öffnungszeiten über die allgemeinen Ziele und Zwecke sowie die wesentlichen Auswirkungen der Planung unterrichten und sich innerhalb einer Frist von einem Monat vom 29.12.2022 bis einschließlich 31.01.2023 zur Planung schriftlich oder zur Niederschrift äußern.

Die Auslegungszeiten sind wie folgt festgelegt:

Montags, dienstags, mittwochs von 08.00 Uhr bis 12.00 Uhr und von 13.00 Uhr bis 16.30 Uhr, donnerstags von 08.00 Uhr bis 12.00 Uhr und von 13.00 Uhr bis 17.30 Uhr, freitags von 08.00 Uhr bis 12.00 Uhr.

Gegenstand der Auslegung:

Entwurf des Bebauungsplanes

Entwurf Textliche Festsetzungen

Entwurf Begründung

Landespflegerischer Bestandsplan

Landespflegericher Konfliktplan

Landespflegerischer Massnahmenplan

Geotechnischer Bericht

Hinweis:

Für die Dauer der Auslegung können Stellungnahmen zum Bebauungsplan eingereicht werden. Die Anregungen etc. können schriftlich oder zur Niederschrift bei der Verbandsgemeindeverwaltung, Jakobstr. 29, 67722 Winnweiler, vorgebracht werden. Da das Ergebnis der Behandlung der Stellungnahmen mitgeteilt wird, ist die Angabe der Anschrift des Verfassers zweckmäßig.

Gemäß § 3 Abs. 2 Satz 2 BauGB wird darauf hingewiesen, dass nicht fristgerecht abgegebene Stellungnahmen bei der Beschlussfassung über den Bauleitplan unberücksichtigt bleiben können.

Ergänzend zur Auslegung können die oben genannten Unterlagen im Internet, unter www.winnweiler-vg.de unter der Rubrik: Rathaus, Bauen und Wohnen, Bauleitplanung, Bauleitpläne im Verfahren und auch über das Geoportal Rheinland-Pfalz (http://www.geoportal.rlp.de) elektronisch abgerufen bzw. eingesehen werden.

Datenschutz:

Im Zusammenhang mit dem Datenschutz wird darauf hingewiesen, dass Bauleitplanverfahren öffentliche Verfahren sind und daher alle dazu eingehenden Stellungnahmen in öffentlicher Sitzung beraten und beschlossen werden.

Winnweiler, 21.12.2022 Winnweiler, 21.12.2022
Verbandsgemeindeverwaltung Gemeinde Imsbach
gez. Rudolf Jacob gez. Oliver Krupp
Bürgermeister Ortsbürgermeister

Anlage: Geltungsbereich des Bebauungsplanes „Auf dem Rain“ in der Ortsgemeinde Imsbach