Titel Logo
Winnweiler Rundschau
Ausgabe 6/2023
Amtlicher Teil
Zurück zur vorigen Seite
Zurück zur ersten Seite der aktuellen Ausgabe

Öffentliche Bekanntmachung der Ortsgemeinde Winnweiler OT Alsenbrück-Langmeil

Vollzug des Baugesetzbuches (BauGB);

hier: Aufstellung der Ergänzungssatzung „Südlicher Sattelhof“ der Gemeinde Winnweiler Ortsteil Alsenbrück- Langmeil gemäß § 34 Abs. 4 Nr. 3 BauGB

-

Bekanntmachung des Aufstellungs- / Verfahrenseinleitungsbeschlusses gemäß § 2 Abs. 1 BauGB

-

Bekanntmachung der frühzeitigen Öffentlichkeitsbeteiligung gemäß § 3 Abs. 1 BauGB und der Beteiligung der Behörden und sonstigen Träger öffentlicher Belange gemäß § 4 Abs. 1 BauGB

Die Gemeindevertretung der Ortsgemeinde Winnweiler hat am 13.12.2022 in öffentlicher Sitzung aufgrund von § 2 Abs. 1 BauGB beschlossen, die Ergänzungssatzung „Südlicher Sattelhof“ gemäß § 34 Abs. 4 Nr. 3 BauGB aufzustellen und eine frühzeitige Beteiligung der Öffentlichkeit nach § 3 Abs. 1 BauGB durchzuführen.

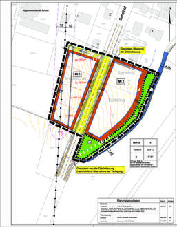
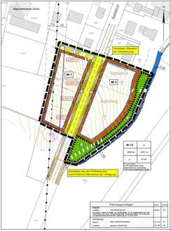
Geltungsbereich:

Das Plangebiet der Ergänzungssatzung „Südlicher Sattelhof“ umfasst die Flurstücks-Nummern 130/18, 130/17 und 1615 und hat eine Größe von ca. 0,9 ha.

Ziele und Zwecke der Planung:

Die Aufstellung der städtebaulichen Satzung soll die Errichtung von Wohn- und Büroplätzen unter Berücksichtigung der städtebaulichen und topographischen Gegebenheiten ermöglichen. Die bauliche Nutzung der zur Ergänzung des Ortsteiles einbezogenen Grundstücksfläche wird durch die bauliche Nutzung des angrenzenden bestehenden Ortsteiles sowie durch die ergänzenden Festsetzungen dieser Satzung bestimmt. Die Satzung soll mit einer geordneten städtebaulichen Entwicklung vereinbar sein.

Frühzeitige Öffentlichkeitsbeteiligung:

Der Öffentlichkeit wird Gelegenheit zur Stellungnahme gegeben.

Die Öffentlichkeit kann sich im Rathaus der Verbandsgemeindeverwaltung Winnweiler, Jakobstraße 29, 67722 Winnweiler, Gebäude 2, Zimmer-Nummer 2-101, während der Öffnungszeiten über die allgemeinen Ziele und Zwecke, sowie die wesentlichen Auswirkungen der Planung unterrichten und sich innerhalb einer Frist von mindestens 30 Tagen vom 16.02.2023 bis einschließlich 20.03.2023 zur Planung schriftlich oder zur Niederschrift äußern.

Die Auslegungszeiten sind wie folgt festgelegt:

Montags, dienstags, mittwochs von 08.00 Uhr bis 12.00 Uhr und von 13.00 Uhr bis 16.00 Uhr, donnerstags von 08.00 Uhr bis 12.00 Uhr und von 13.00 Uhr bis 17.30 Uhr, freitags von 08.00 Uhr bis 12.00 Uhr.

Gegenstand der Auslegung:

- Planurkunde

- Textliche Festsetzungen und Begründung

Hinweise:

Für die Dauer der Auslegung können Stellungnahmen zum Entwurf der Satzung eingereicht werden. Die Anregungen etc. können schriftlich oder zur Niederschrift bei der Verbandsgemeindeverwaltung, Jakobstr. 29, 67722 Winnweiler, vorgebracht werden. Da das Ergebnis der Behandlung der Stellungnahmen mitgeteilt wird, ist die Angabe der Anschrift des Verfassers zweckmäßig.

Gemäß § 3 Abs. 2 Satz 2 BauGB wird darauf hingewiesen, dass nicht fristgerecht abgegebene Stellungnahmen bei der Beschlussfassung über den Bauleitplan unberücksichtigt bleiben können.

Ergänzend zur Auslegung, kann der Bebauungsplan bestehend aus der Planurkunde, den Textlichen Festsetzungen und der Begründung im Internet, unter www.winnweiler-vg.de unter der Rubrik: Rathaus, Bauen und Wohnen, Bauleitplanung, Bauleitpläne im Verfahren abgerufen bzw. eingesehen werden.

Datenschutz:

Im Zusammenhang mit dem Datenschutz wird darauf hingewiesen, dass Bauleitplanverfahren öffentliche Verfahren sind und daher alle dazu eingehenden Stellungnahmen in öffentlicher Sitzung beraten und beschlossen werden.

Winnweiler, den 08.02.2023
Winnweiler, den 08.02.2023
Verbandsgemeindeverwaltung
gez. Rudolf Jacob
gez. Rudolf Jacob
Ortsbürgermeister
Bürgermeister

Anlage:

Geltungsbereich Ergänzungssatzung „Südlicher Sattelhof“

der Gemeinde Winnweiler OT Alsenbrück-Langmeil