Titel Logo
Winnweiler Rundschau
Ausgabe 6/2024
Amtlicher Teil
Zurück zur vorigen Seite
Zurück zur ersten Seite der aktuellen Ausgabe

Öffentliche Bekanntmachung der Ortsgemeinde Münchweiler an der Alsenz

Betreff: Vollzug des Baugesetzbuches (BauGB);

hier: Bebauungsplanverfahren „PV-Anlage Stockwiese“ in der Ortsgemeinde Münchweiler an der Alsenz

Offenlage des Planentwurfes gemäß § 3 Abs. 2 Baugesetzbuch

Der Ortsgemeinderat Münchweiler hat in seiner öffentlichen Sitzung am 08.12.2023, die öffentliche Auslegung des Bebauungsplanentwurfs, bestehend aus Plan, Textfestsetzungen, Begründung mit Umweltbericht, sowie den wesentlichen umweltbezogenen Stellungnahmen und Informationen, gemäß § 3 Abs. 2 Baugesetzbuch (BauGB) in der Fassung der Bekanntmachung vom 03. November 2017 (BGBI. I S. 3634), das zuletzt durch Artikel 3 des Gesetzes vom 20. Dezember 2023 (BGBI. 2023 I Nr. 394) geändert worden ist, beschlossen.

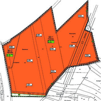
Geltungsbereich:

Der räumliche Geltungsbereich des Bebauungsplanes umfasst eine Gesamtfläche von ca. 12 ha und beinhaltet die Grundstücke mit den Flurstücks-Nummern 1917, 1918, 1957, 1958, 1960, 1961, 1962 und 1963 (teilw.). Die genaue Abgrenzung des Geltungsbereichs lässt sich aus der Darstellung in der Planurkunde entnehmen.

Allgemeine Ziele und Zweck der Planung:

Die Gemeinde Münchweiler beabsichtigt zur Förderung erneuerbarer Energien einen Standort für die Errichtung großflächiger Photovoltaikanlagen anzubieten.

Zur Prüfung der Vereinbarkeit des Vorhabens mit den raumordnerischen Belangen wurde dem Bauleitplanverfahren ein Zielabweichungsverfahren vorgeschoben. Für die hier vorgesehene Fläche liegt ein positiver Bescheid von der SGD Süd von Mai 2023 vor.

Aus energetischer Sicht ist die Fläche für eine solche Nutzung sehr gut geeignet. Vor dem Hintergrund des geringen Konfliktpotenzials mit den Belangen von Natur und Landschaft stellt sich der Bereich aus planerischer Sicht als optimal dar. Weiterhin ist die Förderfähigkeit nach EEG gegeben.

Der Gemeinderat hat in seiner Sitzung am 12.03.2021 / 31.03.2023 gemäß § 12 BauGB beschlossen, für das in Rede stehende Gebiet einen vorhabenbezogenen Bebauungsplan aufzustellen. Im weiteren Planungsverlauf hat sich der Gemeinderat in öffentlicher Sitzung vom 08.12.2023 mehrheitlich für einen Verfahrenswechsel ausgesprochen. Die laufende vorhabenbezogene Bebauungsplanung wird als Angebotsbebauungsplanung weiter fortgeführt.

Flächennutzungsplan

Im Rahmen der Aufstellung des vorliegenden Bebauungsplans erfolgt parallel die Teilfortschreibung des Flächennutzungsplans der Verbandsgemeinde Winnweiler mit der Zielsetzung, in dem in Rede stehenden Bereich eine Sonderbaufläche „Photovoltaik“ neu darzustellen, um dem Entwicklungsgebot des § 8 Abs. 2 Satz 1 BauGB zu genügen.

Gegenstand der Auslegung:

-

Bebauungsplanentwurf

-

textliche Festsetzungen mit Begründung und Umweltbericht

-

umweltbezogenen Stellungnahmen und Informationen.

Folgende umweltbezogene Informationen sind verfügbar:

Umweltbericht mit Umweltbezogenen Themen

Fachbeitrag Naturschutz

Artenschutzrechtliche Voreinschätzung

Vegetationskundliche Kartierungen

Spezielle Artenschutzrechtliche Prüfung, Schmetterlings- Gutachten

Abschätzung des Oberflächenwasserabflusses sowie Planung von Maßnahmen zur Abflussverzögerung und zum temporären Rückhalt von Überschusswasser

Gutachten zum Blendrisiko

Hinweise zu Umweltbelangen aus den Verfahren nach § 3 und § 4 BauGB

Dienstleistungszentrum Ländlicher Raum, Westpfalz vom 15.05.2023: Vorrangflächen, landwirtschaftliche Nutzflächen

Kreisverwaltung Donnersbergkreis, Untere Naturschutzbehörde, Kirchheimbolanden vom 09.06.2023: Schutzgut Boden, Flächige Vegetationsentwicklung, Mindestabstand zu Gewässer, Pflanzenauswahl, Niederschlagsbewirtschaftung/ Starkregenereignisse, Eingriffs-/ Ausgleichsbilanzierung

Landesamt für Geologie und Bergbau Rheinland-Pfalz vom 31.05.2023: Boden und Baugrund

Landwirtschaftskammer Rheinland-Pfalz, Dienststelle Kaiserslautern vom 30.06.2023: Vorrangflächen, landwirtschaftliche Nutzflächen, Ausgleichsflächen

Planungsgemeinschaft Westpfalz vom 07.06.2023: Raumordnerische Ziele, Vorranggebiet Landwirtschaft, Vorranggebiet Regionaler Biotopverbund, Sicherung von Lebensräumen, Erhaltung der regionalen Artenvielfalt, Ausgleichsflächen, Sturzflutereignisse nach Starkregen

Struktur- und Genehmigungsdirektion Süd, Regionalstelle Wasser, Abfall und Boden vom 01.06.2023: Oberflächenentwässerung, Gewässer, Starkregenvorsorge, Bodenschutz

Gemäß § 3 Abs. 2 BauGB wird der Entwurf des Bebauungsplanes mit der Begründung und den nach Einschätzung der Gemeinde wesentlichen, bereits vorliegenden umweltbezogenen Stellungnahmen für die Dauer eines Monats, mindestens jedoch für die Dauer von 30 Tagen in der Zeit vom 12.02.2024 bis einschließlich 15.03.2024 im Internet unter www.winnweiler-vg.de unter der Rubrik, Rathaus, Bauen und Wohnen, Bauleitplanung, Bauleitpläne im Verfahren veröffentlicht.

Zusätzlich zur Veröffentlichung im Internet liegen in diesem Zeitraum die Unterlagen des Bebauungsplanverfahrens zu jedermanns Einsicht, während der üblichen Dienstzeiten bei der Verbandsgemeindeverwaltung Winnweiler, Gebäude 2, Zimmer 2/101, Jakobstraße 29, 67722 Winnweiler, öffentlich aus.

Die Auslegungszeiten sind wie folgt festgesetzt: Montags, dienstags, mittwochs von 08.00 Uhr bis 12.00 Uhr und von 13.00 Uhr bis 16.30 Uhr, donnerstags von 08.00 Uhr bis 12.00 Uhr und von 13.00 Uhr bis 17.30 Uhr, freitags von 08.00 Uhr bis 12.00 Uhr.

Hinweise:

Während der Dauer der Veröffentlichungsfrist können Stellungnahmen zum Entwurf des Bebauungsplanes abgegeben werden. Diese Stellungnahmen sollen elektronisch an bauleitplanung@winnweiler-vg.de übermittelt werden. Auf anderem Weg fristgerecht abgegebene Stellungnahmen werden ebenfalls beim Verfahren berücksichtigt.

Unabhängig von der Übermittlung weisen wir darauf hin, dass gem. § 3 Abs. 2 Nr. 3 BauGB nicht fristgerecht abgegebene Stellungnahmen bei der Beschlussfassung über den Bauleitplan unberücksichtigt bleiben können.

Datenschutz:

Im Zusammenhang mit dem Datenschutz wird darauf hingewiesen, dass Bauleitplanverfahren öffentliche Verfahren sind und daher alle dazu eingehenden Stellungnahmen in öffentlicher Sitzung beraten und beschlossen werden.

Münchweiler, den 09.02.2024
Winnweiler, den 09.02.2024
Ortsgemeinde
Verbandsgemeindeverwaltung
gez. Christoph Stumpf
gez. Rudolf Jacob
Ortsbürgermeister
Bürgermeister

Anlage:

Entwurf Geltungsbereich

Gemeinde Münchweiler an der Alsenz, Bebauungsplan „PV-Anlage Stockwiese“