Titel Logo
Winnweiler Rundschau
Ausgabe 9/2023
Amtlicher Teil
Zurück zur vorigen Seite
Zurück zur ersten Seite der aktuellen Ausgabe

Gemeinsame Erklärung des Ortsbürgermeisters und der im Ortsgemeinderat vertretenen Fraktionen zum Lohnsbachpark:

Auf Antrag der SPD-Fraktion hat sich der Ortsgemeinderat in seiner Sitzung am 23.02.2023 mit dem Lohnsbachpark befasst. Aufgrund der Rodung der Fichten zwischen Park und Ärztehaus und der Notwendigkeit einer temporären Baustellenzufahrt entlang der Mauer zum ehemaligen Katasteramt hin, gibt es bei Teilen der Einwohnerinnen und Einwohner Bedenken, der Lohnsbachpark könnte seinen Parkcharakter verlieren.

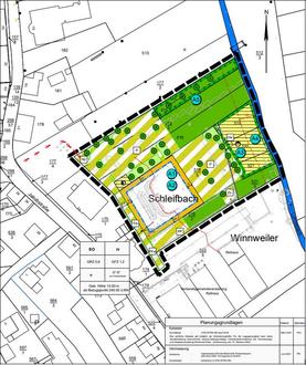
In der Diskussion stellten der Ortsbürgermeister und alle im Ortsgemeinderat vertretenen Fraktionen heraus, dass man den Lohnsbachpark keinesfalls in Frage stelle, im Gegenteil, diesen attraktiv gestalten wolle. Der Ortsbürgermeister wies darauf hin, dass die Fichten mittlerweile eine Gefahrenstelle dargestellt haben, weil diese teilweise bereits abgestorben waren und bei starkem Wind es bereits wiederholt zu Windbrüchen gekommen sei. Er verwies auf den beschlossenen und unten abgedruckten B-Plan „Schleifbach“, der die Pflanzung von 11 neuen Laubbäumen zwischen dem Park und der Außenanlage des Ärztehauses vorsehe. Insgesamt werden in der Außenanlage des Ärztehauses 32 Laubbäume neu gepflanzt, die für Schatten und Abkühlung sorgen sollen.

Entlang der Grenze zum Park sind 11 Laubbäume, jeweils durch die grünen Kreise mot schwarzem Punkt dargestellt, vorgesehen.

Die Fraktionen waren sich auch darüber einig, dass der Bau des Jugendfreizeitgeländes im Laufe dieses Jahres auch zur Attraktivierung des Parks beitrage.

Die Baustellenzufahrt wird,nach Abschluss der Bauarbeiten an der regulären Zufahrt, wieder zurückgebaut.

Sobald es der Ortsgemeinde finanziell möglich ist, sollen auch die Planungen zur Neugestaltung des Parks mit Spielplatz und Wasserflächen umgesetzt werden.

Rudolf Jacob, Ortsbürgermeister
Sebastian Glanz für die CDU-Fraktion
Oskar Knobloch für die SPD-Fraktion
Matthias Luft für die Fraktion Bündnis 90/Die Grünen
Liesa Ritzmann für die FDP-Fraktion