Titel Logo
Amtsblatt der VG Bruchmühlbach-Miesau
Ausgabe 47/2023
Amtlicher Teil
Zurück zur vorigen Seite
Zurück zur ersten Seite der aktuellen Ausgabe

Bebauungsplan „Gewerbe- und Handwerkerpark Am Harzofen“

Bekanntmachung des Beschlusses 

zur Einleitung des Verfahrens zur Aufstellung

des Bebauungsplanes

Gemäß § 2 Abs. 1 BauGB in der Fassung der Bekanntmachung vom 03.11.2017 (BGBl. S. 3634), unter Berücksichtigung der aktuell gültigen Änderungen, wird hiermit öffentlich bekannt gemacht, dass der Ortsgemeinderat Bruchmühlbach-Miesau in öffentlicher Sitzung am 09.11.2023 den Beschluss zur Einleitung des Verfahrens zur Aufstellung des Bebauungsplanes „Gewerbe- und Handwerkerpark Am Harzofen“ gefasst hat.

Mit der Aufstellung des Bebauungsplanes verfolgt die Ortsgemeinde folgendes Ziel:

Aufgrund mehrerer Anfragen nach kleineren Gewerbegrundstücken beabsichtigt die Ortsgemeinde Bruchmühlbach-Miesau daher im Ortsteil Bruchmühlbach, Gemarkung Mühlbach, nordöstlich anschließend an die Bruchstraße und nördlich der L395 einen Bebauungsplan für Handwerksbetriebe aufzustellen.

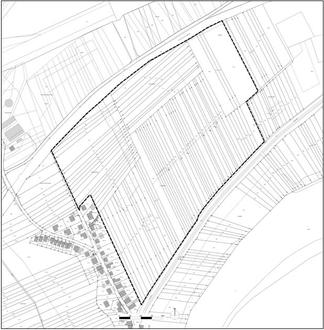
Die genauen Grenzen des Geltungsbereiches des Bebauungsplanes sind dem beigefügten Lageplan zu entnehmen. Er umfasst eine Fläche von ca. 16,1 ha. Der Bereich des Plangebietes ist derzeit im Flächennutzungsplan als Fläche für die Landwirtschaft ausgewiesen. Dementsprechend wird der Flächennutzungsplan zur Realisierung des Bebauungsplanes angepasst.

Bruchmühlbach-Miesau, 15.11.2023

Rüdiger Franz, Ortsbürgermeister

Geltungsbereich des Bebauungsplanes

„Gewerbe- und Handwerkerpark Am Harzofen“