Titel Logo
Verbandsgemeinde Göllheim aktuell
Ausgabe 26/2023
Amtlicher Teil - 185 breit
Zurück zur vorigen Seite
Zurück zur ersten Seite der aktuellen Ausgabe

Bebauungsplan „Obere Wiesen“ der Ortsgemeinde Bubenheim; Erneute Beteiligung der Öffentlichkeit gem. § 4a Abs. 3 i. V. m. § 3 Abs. 2 des Baugesetzbuches (BauGB)

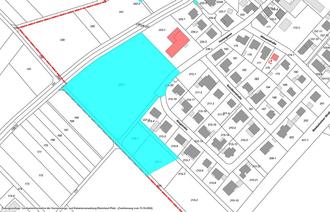
Abgrenzung Geltungsbereich

Geltungsbereich

Bekanntmachung

Gemäß § 4a Abs. 3 i. V. m. § 3 Abs. 2 Baugesetzbuch wird bekannt gemacht, dass der Bebauungsplanentwurf „Obere Wiesen“ der Ortsgemeinde Bubenheim in der Zeit vom

07.07.2023 bis einschl. 11.08.2023

in der Verbandsgemeindeverwaltung Göllheim zu jedermanns Einsichtnahme ausliegt (Erneute Beteiligung der Öffentlichkeit gemäß § 4a Abs. 3 i. V. m. § 3 Abs. 2 BauGB). Während dieser Zeit kann sich die Bevölkerung über die allgemeinen Ziele und den Zweck der Planung informieren. Es wird Gelegenheit zur Äußerung und Erörterung gegeben. Bitte beachten Sie die zu dieser Zeit die aktuellen Öffnungszeiten der Verbandsgemeindeverwaltung. Es wird empfohlen einen Termin zur Einsichtnahme unter 06351/4909-47 oder 4909-0 zu vereinbaren, um längere Wartezeiten zu vermeiden.

Lage und Geltungsbereich

Das Plangebiet befindet sich im Südwesten der Bebauten Ortslage angrenzend an den Siedlungskörper von Bubenheim und umfasst eine Fläche von ca. 1,45 ha.

Abgrenzung des Plangebiets

Das Plangebiet umfasst vollständig die Plannummern 222/1, 221/1, 218/1 und Teilflächen der Plannummern 215/3, 217/1, 236/1, 220 und 237 der Gemarkung Bubenheim und wird wie folgt abgegrenzt (unmaßstäbliche Abgrenzung des Bebauungsplans „Obere Wiesen“):

Allgemeine Ziele und Zweck der Planung

Die in der Gemeinde vorhandenen Wohnbauflächenreserven sind aufgrund anhaltender Nachfrage erschöpft oder werden von den Eigentümern nicht veräußert, sodass es der Gemeinde mittelfristig nicht möglich ist, der Nachfrage gerecht zu werden. Deshalb soll die Ausweisung des Baugebiets die Möglichkeit bieten, bedarfsgerecht zusätzliche Flächen vorwiegend für das Familienwohnen in Eigenheimen zur Verfügung zu stellen.

Mit der Aufstellung des Bebauungsplans „Obere Wiesen“ soll angrenzend an die bestehende Bebauung in Bubenheim die planungsrechtlichen Voraussetzungen für die Entwicklung eines Wohngebiets geschaffen werden.

Hierzu hat der Gemeinderat bereits am 19. Juni 2018 die Aufstellung des Bebauungsplanes „Obere Wiesen“ beschlossen. Unter Berücksichtigung verschiedener Aspekte zur Hochwasservorsorge, Gewässerrenaturierung und Immissionsschutz wurde der Geltungsbereich angepasst und der Aufstellungsbeschluss mit Beschlussfassung vom 31. Mai 2019 geändert. Im Zuge der Konzeptentwicklung wurde aufgrund der Lage am Gewässer sowie der topographischen Gegebenheiten eine vertiefende Entwässerungskonzeption erarbeitet. Um den Starkregenabfluss aus dem Außeneinzugsgebiet von Südosten vom Plangebiet fernzuhalten, wurde in einem ersten Entwässerungskonzept entsprechend dem Hochwasservorsorgekonzept auf der südöstlichen Seite der Biedesheimer Straße (L 448) im Zuge einer separaten Maßnahme eine Rückhaltung (Regenrückhaltebecken) vorgeschlagen. Bei Überstau hätte diese Rückhaltung dann gezielt über ein Überlaufbauwerk in einen Durchlass unter der Landesstraße auf den vorhandenen Wirtschaftsweg westlich des Baugebietes entlastet.

Nach Untersuchungen hinsichtlich Aufwand, Wirtschaftlichkeit und Verfügbarkeit der Grundstücke wurde die Herstellung eines externen Regenrückhaltebeckens für das Außengebietswasser seitens der Ortsgemeinde verworfen und der Bebauungsplan dementsprechend geändert.

Die Aufstellung des Bebauungsplanes „Obere Wiesen“ wird nach § 13b BauGB zur Einbeziehung von Außenbereichsflächen in das beschleunigte Verfahren nach § 13a BauGB durchgeführt. Im beschleunigten Verfahren gelten die Vorschriften des § 13 Abs. 2 und 3 Satz 1 BauGB entsprechend. Demnach wird von der Umweltprüfung nach § 2 Abs. 4, von dem Umweltbericht nach § 2 a, von der Angabe nach § 3 Abs. 2 Satz 2, welche Arten umweltbezogener Informationen verfügbar sind, sowie von der zusammenfassenden Erklärung nach § 6 Abs. 5 Satz 3 und § 10 Abs. 4 BauGB abgesehen; § 4c BauGB (Überwachung / Monitoring) ist nicht anzuwenden. Zu erwartende Eingriffe gelten als im Sinne des § 1a Abs. 3 Satz 6 BauGB vor der planerischen Entscheidung erfolgt oder zulässig.

Hinweis:

Gegenstand der Auslegung sind die Planzeichnung, die Begründung und die textlichen Festsetzungen jeweils im Entwurf, die allgemeine Vorprüfung des Einzelfalls gem. UVPG-RP, die Fortschreibung des Entwässerungskonzeptes mit allen Anlagen und das schalltechnische Gutachten (2019).

Die Unterlagen können bei der Verbandsgemeindeverwaltung Göllheim, Fachbereich II, Zimmer 2.11, Freiherr-vom-Stein-Straße 1-3 in 67307 Göllheim während der üblichen Öffnungszeiten eingesehen werden. Diese sind zurzeit montags und dienstags von 8.30 Uhr bis 12.00 Uhr und von 14.00 bis 16.00 Uhr, mittwochs und freitags von 8.30 Uhr bis 12.00 Uhr und an Donnerstagen von 8.30 Uhr bis 12.00 Uhr und von 14.00 Uhr bis 18.00 Uhr (Dienstleistungsabend). Zudem stehen die Unterlagen auch zusätzlich auf der Internetseite der Verbandsgemeinde Göllheim zur Ansicht bereit.

Bubenheim, den 21.06.2023
gez. Lebkücher (DS OG)
Ortsbürgermeister
Für die Richtigkeit
Göllheim, den 22.06.2023
(DS VG) gez. Antweiler
Bürgermeister

Geltungsbereich Bebauungsplan „Obere Wiesen“ der Ortsgemeinde Bubenheim