Titel Logo
Verbandsgemeinde Göllheim aktuell
Ausgabe 35/2022
Amtlicher Teil - 185 breit
Zurück zur vorigen Seite
Zurück zur ersten Seite der aktuellen Ausgabe

Bekanntmachung

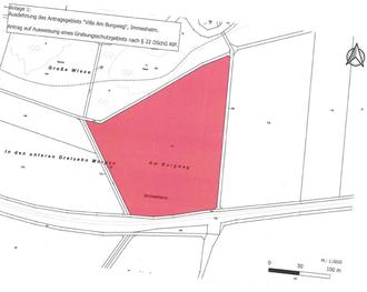
Flurkarte

Auslegung des Entwurfes der Rechtsverordnung über die Festsetzung des Grabungsschutzgebietes „Villa Am Burgweg“, Gemarkung Immesheim, Landkreis Donnersbergkreis

Beteiligung der betroffenen Öffentlichkeit nach § 9 DSchG und § 13, Abs. 2, Nr. 2 i.V. m. § 3, Abs. 2 i.V. m. § 1, Abs. 8 BauGB

Der Landkreis Donnersbergkreis hat den Entwurf zu einer Rechtsverordnung über die Festsetzung des Grabungsschutzgebietes „Villa Am Burgweg“ verfasst.

Das Grabungsschutzgebiet umfasst in der Gemarkung Immesheim, Fdst. Immesheim 9, 25,

Flurstücke: 142

Gemäß § 9, Abs. 1 und 2 Denkmalschutzgesetz ist der Entwurf dieser Rechtsverordnung und die dazugehörige Flurkarte für die Dauer eines Monats zur Einsicht öffentlich auszulegen.

Die Frist beginnt am 15.09.2022 und endet am 17.10.2022.

Die Unterlagen liegen bei der Verbandsgemeindeverwaltung Göllheim, Freiherr-vom-Stein Straße 1-3, 67307 Göllheim, Zimmer 2.11, öffentlich aus und können dort während der üblichen Öffnungszeiten,

Mo.-Di. jeweils von 8.30 Uhr bis 12.00 Uhr und von 14.00 Uhr bis 16.00 Uhr, an Donnerstagen von 8.30 Uhr bis 12.00 Uhr und von 14.00 Uhr bis 18.00 Uhr sowie freitags und mittwochs von 8.30 Uhr bis 12.00 von jedermann eingesehen werden.

Jeder, dessen Belange durch die Vorgaben berührt werden, kann spätestens bis zwei Wochen nach Ablauf der Auslegungsfrist bei der Unteren Denkmalschutzbehörde des Kreises Donnersbergkreis oder bei der Verbandsgemeindeverwaltung Göllheim, Bedenken und Anregungen schriftlich oder zur Niederschrift vorbringen.

Kirchheimbolanden, den 19.08.2022
gez. Guth
(Landrat)