Titel Logo
Verbandsgemeinde Göllheim aktuell
Ausgabe 37/2024
Amtlicher Teil - 185 breit
Zurück zur vorigen Seite
Zurück zur ersten Seite der aktuellen Ausgabe

Bebauungsplan „Am Osterberg, 1. Teiländerung“ der Ortsgemeinde Zellertal; Bekanntmachung des Inkrafttretens gemäß § 10 Abs. 3 Baugesetzbuch (BauGB)

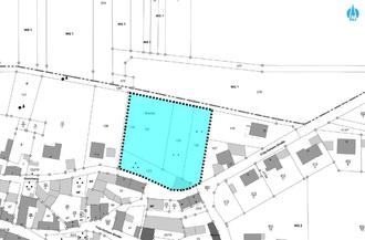
Abgrenzung Geltungsbereich

Geltungsbereich

Aufgrund des § 10 Abs. 3 BauGB in der Fassung der Bekanntmachung vom 03.11.2017 (BGBl. I S. 3634), zuletzt geändert durch Artikel 3 des Gesetztes vom 20.12.2023 (BGBl. 2023 I Nr. 394) in Verbindung mit § 88 Abs. 6 der Landesbauordnung für Rheinland-Pfalz vom 24.11.1998 (Gesetz- und Verordnungsblatt 1998, Seite 365), zuletzt geändert durch Artikel 1 des Gesetztes vom 07.12.2022 (GVBl. S. 403), in der jeweils gültigen Fassung, wird hiermit öffentlich bekannt gemacht, dass der Ortsgemeinderat Zellertal in seiner Sitzung am 21.05.2024 den Bebauungsplan „Am Osterberg, 1. Teiländerung“ als Satzung gemäß § 10 Abs. 1 Baugesetzbuch, beschlossen hat. Die Genehmigung des Bebauungsplanes als Satzung erfolgte mit Verfügung der Kreisverwaltung Donnersbergkreis, Untere Landesplanungsbehörde, am 08.08.2024.

Der Bebauungsplan wurde am 23.05.2024 durch Herrn Ortsbürgermeister Lauer ausgefertigt.

Er tritt gemäß § 10 Abs. 3 Sätze 4 und 5 BauGB mit dem Datum seiner öffentlichen Bekanntmachung im Amtsblatt der Verbandsgemeinde Göllheim in Kraft (Erscheinungsdatum des Amtsblattes).

Lage und Geltungsbereich

Das Plangebiet befindet sich nördlich der Ortslage von Zell an der Fritz-Golsen-Straße. Der Geltungsbereich umfasst eine Fläche von ca. 0,42 ha und beinhaltet die Flurstücke 130, 131, 132, und 133 in Gänze. Der Geltungsbereich wird wie folgt begrenzt (unmaßstäbliche Abgrenzung des Bebauungsplans „Osterberg, 1. Teiländerung“):

Der Geltungsbereich ist in der Anlage zur Bekanntmachung zeichnerisch dargestellt.

Der Bebauungsplan, bestehend aus der Planurkunde im Maßstab 1:500 und den Textteilen „Textliche Festsetzungen“ und „Begründung mit Umweltbericht“, sowie einer zusammenfassenden Erklärung kann gemäß § 10 Abs. 3 Satz 2 BauGB bei der Verbandsgemeindeverwaltung Göllheim, Freiherr-vom-Stein-Straße 1-3, 67307 Göllheim, Fachbereich 2 (Natürliche Lebensgrundlagen und Bauen), Zimmer 2.13 eingesehen werden. Auf Verlangen gibt die Verbandsgemeindeverwaltung über den Inhalt des Bebauungsplanes Auskunft.

Die Öffnungszeiten der Verwaltung sind zur Zeit montags und dienstags von 8.30 Uhr bis 12.00 Uhr und 14.00 Uhr bis 16.00 Uhr, donnerstags von 8.30 Uhr bis 12.00 Uhr und von 14.00 Uhr bis 18.00 Uhr (Dienstleistungsabend), mittwochs und freitags von 8.30 Uhr bis 12.00 Uhr. Aufgrund der aktuellen Situation ist eine Einsichtnahme nur nach telefonischer Terminvereinbarung unter der Nummer 06351/4909 47 möglich.

Allgemeine Hinweise:

Es wird gemäß § 44 Abs. 5 BauGB darauf hingewiesen, dass der Entschädigungsberechtigte Entschädigung verlangen kann, wenn die in den §§ 39 bis 42 BauGB bezeichneten Vermögensnachteile eingetreten sind. Er kann die Fälligkeit des Anspruchs dadurch herbeiführen, dass er die Leistung der Entschädigung schriftlich bei dem Entschädigungspflichtigen beantragt (§ 44 Abs. 3 Satz 1 und 2 BauGB). Ein Entschädigungsanspruch erlischt, wenn nicht innerhalb von drei Jahren nach Ablauf des Kalenderjahres, in dem die in § 44 Abs. 3 Satz 1 BauGB bezeichneten Vermögensnachteile eingetreten sind, die Fälligkeit des Anspruchs herbeigeführt wird (§ 44 Abs. 4 BauGB).

Unbeachtlich sind

  1. eine Verletzung der in § 214 Abs. 1 Nr. 1 und 2 BauGB bezeichneten Verfahrens- und Formvorschriften,
  2. eine Verletzung der unter Berücksichtigung des § 214 Abs. 2 BauGB der Vorschriften über das Verhältnis des Bebauungsplans und des Flächennutzungsplans und
  3. nach § 214 Abs. 3 Satz 2 BauGB beachtliche Mängel der Abwägung,

wenn sie nicht innerhalb eines Jahres seit Bekanntmachung des Bebauungsplanes schriftlich gegenüber der Verbandsgemeindeverwaltung Göllheim geltend gemacht worden sind; der Sachverhalt, der die Verletzung oder den Mangel begründen soll, ist darzulegen (§ 215 Abs. 1 BauGB).

Außerdem wird gemäß § 24 Abs. 6 Satz 4 der Gemeindeordnung für Rheinland-Pfalz (GemO) darauf hingewiesen, dass Satzungen, die unter Verletzung von Verfahrens- oder Formvorschriften der GemO oder auf Grund der GemO zustande gekommen sind, ein Jahr nach der Bekanntmachung als von Anfang an gültig zustande gekommen gelten.

Dies gilt nicht, wenn

  1. die Bestimmungen über die Öffentlichkeit der Sitzung, die Genehmigung, die Ausfertigung oder die Bekanntmachung der Satzung verletzt worden sind, oder
  2. vor Ablauf der in Satz 1 genannten Frist die Aufsichtsbehörde den Beschluss beanstandet oder jemand die Verletzung der Verfahrens- oder Formvorschriften gegenüber der Verbandsgemeindeverwaltung unter Bezeichnung des Sachverhalts, der die Verletzung begründen soll, schriftlich geltend gemacht hat.

Hat jemand eine Verletzung nach Satz 2 Nr. 2 geltend gemacht, so kann auch nach Ablauf der in Satz 1 genannten Frist jedermann diese Verletzung geltend machen.

Zellertal, den 02.09.2024
gez. Sonja Stoll-Merkel (DS OG)
Ortsbürgermeisterin
Für die Richtigkeit
Göllheim, den 03.09.2024
gez. Steffen Antweiler (DS VG)
Bürgermeister

Zeichnerische Darstellung des Geltungsbereiches des Bebauungsplanes „Am Osterberg, 1. Teiländerung“ der Ortsgemeinde Zellertal:

Datengrundlage: Geobasisinformation der Vermessungs- und Katasterverwaltung Rheinland-Pfalz - (Zustimmung vom 15.10.2002)