Titel Logo
Verbandsgemeinde Göllheim aktuell
Ausgabe 7/2023
Amtlicher Teil - 185 breit
Zurück zur vorigen Seite
Zurück zur ersten Seite der aktuellen Ausgabe

Bebauungsplan „Süd X, Änderung und Erweiterung I“ der Ortsgemeinde Göllheim; Bekanntmachung des Inkrafttretens gemäß § 10 Abs. 3 Baugesetzbuch

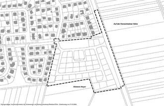
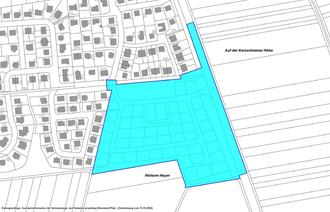
Abgrenzung Geltungsbereich

Geltungsbereich

Bekanntmachung

Aufgrund des § 10 Abs. 3 BauGB in der Fassung der Bekanntmachung vom 03. November 2017 (Bundesgesetzblatt I S. 3634), zuletzt geändert durch Art. 2 der Verordnung vom 04.01.2023 (Bundesgesetzblatt I Nr. 6) in Verbindung mit § 88 Abs. 6 der Landesbauordnung für Rheinland-Pfalz (Gesetz- und Verordnungsblatt v. 07.12.2022 S. 403), in der jeweils gültigen Fassung, wird hiermit öffentlich bekannt gemacht, dass der Ortsgemeinderat Göllheim in seiner Sitzung am 24.03.2022 den Bebauungsplan „Süd X, Änderung und Erweiterung I“ als Satzung gemäß § 10 Abs. 1 Baugesetzbuch, beschlossen hat.

Der Bebauungsplan wurde nicht gemäß § 8 Abs. 2 Satz 1 Baugesetzbuch vollständig aus dem rechtskräftigen Flächennutzungsplan der Verbandsgemeinde Göllheim entwickelt und aufgestellt. Im Rahmen der 3. Gesamtfortschreibung des Flächennutzungsplanes der Verbandsgemeinde Göllheim wird der Bebauungsplan übernommen (vgl. § 8 Abs. 3 S. 2 BauGB). Der als Satzung beschlossene Bebauungsplan wurde am 17.01.2023 durch die Kreisverwaltung Donnersbergkreis - Untere Landesplanungsbehörde - genehmigt.

Der Bebauungsplan wurde am 01.04.2022 durch Herrn Ortsbürgermeister Hartmüller ausgefertigt.

Er tritt gemäß § 10 Abs. 3 Sätze 4 und 5 BauGB mit dem Datum seiner öffentlichen Bekanntmachung im Amtsblatt der Verbandsgemeinde Göllheim in Kraft (Erscheinungsdatum des Amtsblattes).

Geltungsbereich

Das Plangebiet befindet sich südlich der Ortslage von Göllheim, westlich der L 449 / Kerzenheimer Straße und südlich der Marano Equo Straße und umfasst eine Fläche von ca. 4,53 und beinhaltet die Flurstücke 1250/76, 1250/78, 1258/10, 1258/11, 1258/12, 1258/13, 1258/14, 1258/15, 1258/16, 1258/17, 1258/18, 1258/19, 1258/2, 1258/20, 1258/21, 1258/22, 1258/23, 1258/24, 1258/25, 1258/26, 1258/27, 1258/28, 1258/29, 1258/30, 1258/31, 1258/32, 1258/33, 1258/34, 1258/35, 1258/36, 1258/37, 1258/38, 1258/39, 1258/4, 1258/40, 1258/41, 1258/42, 1258/43, 1258/44, 1258/45, 1258/46, 1258/47, 1258/48, 1258/49, 1258/5, 1258/50, 1258/51, 1258/52, 1258/53, 1258/54, 1258/55, 1258/56, 1258/57, 1258/58, 1258/59, 1258/6, 1258/7, 1258/8, und 1258/9 in Gänze sowie Teilflächen der Flurstücke 1246/2, 1250/77 und1258/3.

Der Geltungsbereich wird wie folgt begrenzt (unmaßstäbliche Abgrenzung des Bebauungsplans „Süd X, Änderung und Erweiterung I):

Der Geltungsbereich ist in der Anlage zur Bekanntmachung zeichnerisch dargestellt.

Der Bebauungsplan, bestehend aus der Planurkunde, den textlichen Festsetzungen und den Textteilen Begründung mit Umweltbericht, kann gemäß § 10 Abs. 3 Satz 2 BauGB bei der Verbandsgemeindeverwaltung Göllheim, Freiherr-vom-Stein-Straße 3, 67307 Göllheim, Fachbereich 2 (Natürliche Lebensgrundlagen und Bauen) eingesehen werden. Auf Verlangen gibt die Verbandsgemeindeverwaltung über den Inhalt des Bebauungsplanes Auskunft.

Die Öffnungszeiten der Verwaltung sind z.Zt. montags und dienstags von 8.30 Uhr - 12.00 Uhr und 14.00 Uhr - 16.00 Uhr, donnerstags von 8.30 Uhr bis 12.00 Uhr und von 14.00 Uhr - 18.00 Uhr (Dienstleistungsabend), mittwochs und freitags von 8.30 Uhr bis 12.00 Uhr oder nach telefonischer Vereinbarung.

Allgemeine Hinweise:

Es wird gemäß § 44 Abs. 5 BauGB darauf hingewiesen, dass der Entschädigungsberechtigte Ent-schädigung verlangen kann, wenn die in den §§ 39 bis 42 BauGB bezeichneten Vermögensnachteile eingetreten sind. Er kann die Fälligkeit des Anspruchs dadurch herbeiführen, dass er die Leistung der Entschädigung schriftlich bei dem Entschädigungspflichtigen beantragt (§ 44 Abs. 3 Satz 1 und 2 BauGB). Ein Entschädigungsanspruch erlischt, wenn nicht innerhalb von drei Jahren nach Ablauf des Kalenderjahres, in dem die in § 44 Abs. 3 Satz 1 BauGB bezeichneten Vermögensnachteile eingetreten sind, die Fälligkeit des Anspruchs herbeigeführt wird (§ 44 Abs. 4 BauGB).

Unbeachtlich sind

1.

eine nach § 214 Abs. 1 Satz 1 Nr. 1 bis 3 BauGB beachtliche Verletzung der dort bezeichneten Verfahrens- und Formvorschriften,

2.

eine unter Berücksichtigung des § 214 Abs. 2 BauGB beachtliche Verletzung der Vorschriften über das Verhältnis des Bebauungsplans und des Flächennutzungsplans,

3.

nach § 214 Abs. 3 Satz 2 BauGB beachtliche Mängel des Abwägungsvorgangs,

wenn sie nicht innerhalb eines Jahres seit Bekanntmachung des Bebauungsplans schriftlich gegenüber der Verbandsgemeindeverwaltung Göllheim unter Darlegung des die Verletzung begründenden Sachverhalts geltend gemacht worden sind (§ 215 Abs. 1 BauGB).

Außerdem wird gemäß § 24 Abs. 6 Satz 4 der Gemeindeordnung für Rheinland-Pfalz (GemO) darauf hingewiesen, dass Satzungen, die unter Verletzung von Verfahrens- oder Formvorschriften der GemO oder auf Grund der GemO zustande gekommen sind, ein Jahr nach der Bekanntmachung als von Anfang an gültig zustande gekommen gelten.

Dies gilt nicht, wenn

1.

die Bestimmungen über die Öffentlichkeit der Sitzung, die Genehmigung, die Ausfertigung oder die Bekanntmachung der Satzung verletzt worden sind,

oder

2.

vor Ablauf der in Satz 1 genannten Frist die Aufsichtsbehörde den Beschluss beanstandet oder jemand die Verletzung der Verfahrens- oder Formvorschriften gegenüber der Verbandsgemeindeverwaltung unter Bezeichnung des Sachverhalts, der die Verletzung begründen soll, schriftlich geltend gemacht hat.

Hat jemand eine Verletzung nach Satz 2 Nr. 2 geltend gemacht, so kann auch nach Ablauf der in Satz 1 genannten Frist jedermann diese Verletzung geltend machen.

Göllheim, den 08.02.2023
gez. Hartmüller (DS)
Ortsbürgermeister

Geltungsbereich des Bebauungsplans „Süd X, Änderung und Erweiterung I“ der Ortsgemeinde Göllheim