Titel Logo
Treffpunkt Eisenberg
Ausgabe 13/2023
Amtlicher Teil
Zurück zur vorigen Seite
Zurück zur ersten Seite der aktuellen Ausgabe

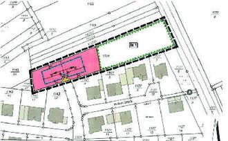
Verkauf von zwei gemeindeeigenen Bauplätzen im Baugebiet „Bergstraße“ in Ramsen

Die Gemeinde Ramsen verkauft zwei Bauplätze im Baugebiet „Bergstraße“ in Ramsen für eine Einzelhausbebauung gegen Höchstgebot, jedoch mit einem Mindestpreis von 225,00 €/m². Die Lage der Bauplätze ist im Bebauungsplan rot dargestellt.

Die beiden Bauplätze haben eine Größe von 519 m² und 686 m². Mit den Erschließungsarbeiten soll noch in diesem Jahr begonnen werden. Mit dem Abschluss der Arbeiten ist voraussichtlich im ersten Halbjahr 2024 zu rechnen. Zu diesem Zeitpunkt ist die Bebaubarkeit der Bauplätze gegeben.

Angebote können schriftlich bei der Verbandsgemeindeverwaltung Eisenberg, Hauptstraße 86, 67304 Eisenberg, Fachbereich 2 - Frau Hindenlang - gerne auch per E-Mail: c.hindenlang@vg-eisenberg.de eingereicht werden.

Für eventuelle Rückfragen steht Ihnen Frau Zerner telefonisch (Tel: 06351/407-503) zur Verfügung.