Titel Logo
Treffpunkt Eisenberg
Ausgabe 43/2022
Amtlicher Teil
Zurück zur vorigen Seite
Zurück zur ersten Seite der aktuellen Ausgabe

Ramsen (R3)

Vollzug des Baugesetzbuches (BauGB)

Bauleitplanung der Ortsgemeinde Ramsen

Aufstellung des Bebauungsplanes „Bergstraße“

Bekanntmachung gemäß § 10 Abs. 3 BauGB vom 03.11.2017

Der Gemeinderat Ramsen hat in seiner Sitzung am 28.03.2022 den Bebauungsplan „Bergstraße“ sowie die dazu gehörenden planungsrechtlichen Festsetzungen und die allgemeinen landespflegerischen Festsetzungen mit der Umweltprüfung und Umweltbericht gemäß § 24 GemO i. V. m. den §§ 10 und 9 BauGB vom 03.11.2017 als Satzung beschlossen. Weiterhin beschloss der Gemeinderat für die in den textlichen Festsetzungen enthaltenen bauordnungsrechtlichen Regelungen den Erlass einer Gestaltungsatzung nach § 9 Abs. 4 BauGB i. V. m. § 88 Landesbauordnung.

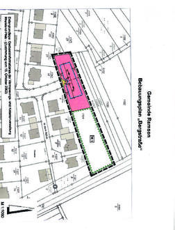
Das Plangebiet umfasst den unter § 2 der nachstehend veröffentlichten Satzung ausgewiesenen Geltungsbereich. Eine Verkleinerung des Plangebietes ist in der Anlage veröffentlicht. Der Satzungsbeschluss zur Aufstellung des Bebauungsplanes „Bergstraße“ wird gemäß § 10 Abs. 3 BauGB und § 88 Abs. 6 Landesbauordnung Rheinland-Pfalz (LBauO) bekannt gemacht.

Der Bebauungsplan „Bergstraße“ mit den textlichen Festsetzungen, der Begründung und dem Umweltbericht wird bei der Verbandsgemeindeverwaltung Eisenberg (Pfalz) in 67304 Eisenberg (Pfalz), Hauptstraße 86, Fachbereich Natürliche Lebensgrundlagen und Bauen, Tourismus und Wirtschaftsförderung, Zimmer-Nr. 228 während der allgemeinen Dienststunden (Montag bis Freitag von 8.00 – 12.00 Uhr, Montag bis Mittwoch von 14.00 – 16.00 Uhr, Donnerstag von 14.00 – 18.00 Uhr) zu jedermanns Einsicht bereit gehalten. Nach vorheriger telefonischer Terminvereinbarung mit Frau Zerner (Tel.: 06351/407-503) kann er von jedermann eingesehen werden.

Es wird auf Verlangen auch Auskunft über den Inhalt des Bebauungsplans erteilt.

Bebauungsplan „Bergstraße“

Satzung

Gemäß Beschluss des Gemeinderates Ramsen vom 28.03.2022 wird für die Ortsgemeinde Ramsen folgende Satzung erlassen:

§ 1

Der Gemeinderat Ramsen hat am 28.03.2022 gemäß § 24 der Gemeindeordnung Rheinland-Pfalz (GemO) vom 31.01.1994 (GVBl. S. 153) in der zurzeit geltenden Fassung, i. V. m. § 10 Abs. 1 und § 9 Abs. 1, 1a und 4 BauGB vom 03.11.2017 (BGBl. I S. 3634) in der zurzeit geltenden Fassung den Bebauungsplan „Bergstraße“ mit den dazu gehörenden planungsrechtlichen Festsetzungen und den allgemeinen landespflegerischen Festsetzungen als Satzung beschlossen. Weiter beschloss der Gemeinderat für die in den textlichen Festsetzungen enthaltenen bauordnungsrechtlichen Regelungen den Erlass einer Gestaltungssatzung nach § 9 Abs. 4 BauGB i. V. m. § 88 der Landesbauordnung Rheinland-Pfalz (LBauO) vom 24.11.1998 (GVBl. S. 365) in der zurzeit geltenden Fassung.

Der Gemeinderat hat dem Ergebnis der Umweltprüfung und dem sich darauf ergebenden Umweltbericht gemäß § 2 Abs. 4 BauGB zugestimmt.

§ 2

Das Plangebiet umfasst den in der Anlage dargestellten Bereich. Das Bebauungsplangebiet liegt am nordwestlichen Ortsrand der Gemeinde Ramsen und schließt sich direkt an das bisherige Baugebiet „Am Leistenberg“ an. Es hat eine Größe von ca. 1.200 m². Die Ausgleichsmaßnahmen werden östlich neben dem Plangebiet auf dem Grundstück Fl.Nr. 1124 ausgeführt.

§ 3

Bestandteile dieser Satzung sind:

a.

die Planurkunde

b.

die bauplanungsrechtlichen Festsetzungen gemäß § 9 Abs. 1 BauGB

c.

die bauordnungsrechtlichen Festsetzungen gemäß § 9 Abs. 4 BauGB i. V. m. § 88 Abs. 6 LBauO

d.

die Begründung mit Umweltbericht gemäß § 2 Abs. 4 BauGB

§ 4

Die Satzung zur Aufstellung des Bebauungsplanes „Bergstraße“ tritt gemäß § 10 Abs. 3 BauGB mit dem Tag der Bekanntmachung in Kraft.

Ramsen, den 20.10.2022
gez. Ruster, Ortsbürgermeister

Hinweise:

1.

Auf die Vorschriften des § 44 Abs. 3 Sätze 1 und 2 sowie Abs. 4 i. V. m. den §§ 39 bis 42 Baugesetzbuch vom 03.11.2017 (BGBl. I S. 3634) in der zurzeit geltenden Fassung, über die Entschädigung von eintretenden Vermögensnachteilen durch diese Satzung sowie über die Fälligkeit und das Erlöschen entsprechender Entschädigungsansprüche wird hingewiesen.

2.

Die Verletzung von Verfahrens- und Formvorschriften des Baugesetzbuches ist für die Rechtswirksamkeit der Satzung nur beachtlich, wenn gegen die Regelungen des § 214 Abs. 1 Nr. 1 bis 4 und § 214 Abs. 2, 2a und 3 BauGB verstoßen wurde und die Verletzungen der Verfahrens- und Formvorschriften gemäß § 215 BauGB innerhalb von einem Jahr seit Bekanntmachung der Satzung gegenüber der Gemeinde unter Darlegung des die Verletzung begründenden Sachverhaltes geltend gemacht worden sind.

3.

Gemäß § 24 Abs. 6 der Gemeindeordnung für Rheinland-Pfalz (GemO) vom 31.01.1994 (GVBl. S. 153) in der zurzeit geltenden Fassung wird darauf hingewiesen, dass Satzungen, die unter Verletzung von Verfahrens- oder Formvorschriften der Gemeindeordnung oder aufgrund der Gemeindeordnung zustande gekommen sind, ein Jahr nach der Bekanntmachung als von Anfang an als gültig zustande gekommen gelten.

Dies gilt nicht wenn,

1.

die Bestimmungen über die Öffentlichkeit der Sitzung, die Genehmigung, die Ausfertigung oder die Bekanntmachung der Satzung verletzt worden sind oder

2.

vor Ablauf der in Satz 1 genannten Frist die Aufsichtsbehörde den Beschluss beanstandet oder jemand die Verletzung der Verfahrens- oder Formvorschriften gegenüber der Gemeindeverwaltung unter Bezeichnung des Sachverhaltes, der die Verletzung begründen soll, schriftlich geltend gemacht hat.

Hat jemand eine Verletzung nach Satz 2 Nr. 2 geltend gemacht, so kann auch nach Ablauf der in Satz 1 genannten Frist jedermann diese Verletzung geltend machen.

Ramsen, den 20.10.2022
gez. Ruster, Ortsbürgermeister