Titel Logo
Rundschau für das Glan- und Lautertal
Ausgabe 17/2025
Öffentliche Bekanntmachungen
Zurück zur vorigen Seite
Zurück zur ersten Seite der aktuellen Ausgabe

Rechtsverordnung

über die Festsetzung des Grabungsschutzgebiets „LBK-Siedlung Auf der Platte"

Gemarkung Medard

Landkreis Kusel

Aufgrund des § 22 Abs. 1 des Denkmalschutzgesetzes (DSchG) vom 23.03.1978 (GVBI. S. 159) in der Fassung vom 26.11.2008 (GVBI. S. 301), zuletzt geändert durch Artikel 22 des Gesetzes vom 20.12.2024 (GVBl. S. 473), erlässt die Kreisverwaltung Kusel als Untere Denkmalschutzbehörde, im Benehmen mit der Generaldirektion Kulturelles Erbe - Direktion Landesarchäologie, folgende Rechtsverordnung:

§ 1

Grabungsschutzgebiet

1) Das in § 2 dieser Rechtsverordnung näher bezeichnete und in der beigefügten Flurkarte gekennzeichnete Gebiet in der Gemarkung Medard wird gemäß § 22 DSchG zum Grabungsschutzgebiet erklärt.

2) Das Grabungsschutzgebiet trägt die Bezeichnung „LBK-Siedlung Auf der Platte"

§ 2

Geltungsbereich

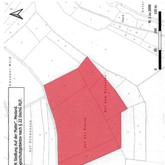
Das Grabungsschutzgebiet umfasst folgende Grundstücke innerhalb der Gemarkung Medard (Fundstelle Medard 4), Flur 5, Parzelle 17 TF, 19, 20, 24, 26 TF und 27 TFi (genaue Größe und Lage des Antragsgebietes siehe das rote Areal auf dem Plan in der Anlage 1), eine Ausweisung als Grabungsschutzgebiet gemäß § 22 Denkmalschutzgesetz (DSchG) Rheinland-Pfalz.

§ 3

Zweck und Begründung der Unterschutzstellung

Im vorgenannten Areal ist mit erheblichen archäologischen Funden und Befunden aus der Römischen Kaiserzeit, insbesondere aber der linienbandkeramischen Kultur zu rechnen. Bereits Ende des 18. Jh. wurden etwa 1,3 km nordöstlich von Medard am südöstlichen Hang der Schwannerhöhe zwei Grabsteinplatten aus Sandstein gefunden. Die fragmentarisch erhaltenen Inschriften bezeugen, dass sie von einem römischen Gräberfeld stammen, welches vermutlich der auf der Flur „Auf Schwanner Höhe“ gelegenen Villa rustica angehörte.

Im Jahr 2024 wurde auf dem sich südlich der Villa befindenden Flurstück „Auf der Platte“ eine geophysikalische Prospektion durchgeführt. Bei der hier angewendeten Methode der Geomagnetik wird der Magnetismus in den oberen Erdschichten gemessen. Dieser weist gleichmäßige Werte auf in Bereichen in denen keine Bodeneingriffe stattgefunden haben. Liegt unterhalb der Humusschicht jedoch ein vorgeschichtlicher Erdbefund mit zum umgebenden anstehenden Boden unterschiedlicher Verfüllung oder ein Mauerfundament, weist der Magnetismus hier veränderte Werte auf. Im Magnetogramm, dem Ergebnisbild, zeichnen sich diese unterirdischen Strukturen als hellere oder dunklere Anomalien ab. Auf der Graustufendarstellung der Magnetometerprospektion von Medard „Auf der Platte“ lassen sich über das gesamte Untersuchungsgebiet eine Vielzahl archäologisch relevanter positiver Anomalien erkennen, die sich als archäologische Erdbefunde deuten lassen. Die meisten der rundlichen bis ovalen Anomalien können als für verschiedene Zwecke genutzte Siedlungsgruben und Grubenkomplexe unterschiedlicher Form und Größe angesprochen werden. Zudem sind sehr deutlich Strukturen bestehend aus mehreren beieinanderliegenden Pfostengruben in Fluchten erkennbar, bei denen es sich um Bestandteile der Hausgrundrisse von mindestens 13 Häusern handelt. Auf der gesamten Fläche konnte somit eine hohe Besiedlungsaktivität festgestellt werden.

Wenngleich bisher keine datierenden Kleinfunde von der Fundstelle aufgelesen wurden, kann anhand der typischen Merkmale der zu erkennenden Häuser zweifelsfrei festgestellt werden, dass sich hier eine Siedlung der altneolithischen Linienbandkeramik befunden haben muss, da keine andere vorgeschichtliche Kultur in dieser Region vergleichbare Bauten hinterlassen hat. Etwa um 5.300 v. Chr. wurden von den aus dem Südosten eingewanderten bandkeramischen Bauern die ersten festen Siedlungen dieser Art in der Pfalz errichtet. Die Häuser können nicht alle zeitgleich gestanden haben, hierfür liegen einige davon zu eng beieinander, es muss von einer mehrphasigen Besiedlung des Platzes über einen längeren Zeitraum hin ausgegangen werden.

Die typischen aus Holz in Pfostenbauweise errichteten Langhäuser dieser Zeit waren Nordwest-Südost ausgerichtet und bis zu 25 - 30 m lang und 5 - 7 m breit. Viele Bauten besitzen ein den nordwestlichen Gebäudeteil umlaufendes Wandgräbchen in welches Holzbretter, -bohlen oder -staken eingelassen waren, während die Flechtwerkwände im Bereich des restlichen Hauses häufig keine Spuren im Boden hinterlassen. Im Hausinneren können typische Pfostenriegel bestehend aus drei massiven Innenpfosten identifiziert werden. Besonders deutlich in der Darstellung der Magnetometerprospektion erkennbar sind die Hauswände begleitende Längsgruben, aus denen der Lehm für das Verputzen der Flechtwerkwände entnommen wurde.

In der Pfalz konnten bisher 205 ehemaligen Siedlungsstellen der Bandkeramik in der Rheinebene und eine im Pfälzer Wald ermittelt werden, dies jedoch fast ausschließlich anhand von Lesefunden oder einigen Gruben. Zurückgeführt werden könnte dies auf die ununterbrochene, landwirtschaftliche Nutzung der gesamten Vorderpfalz seit der Zeit der Linienbandkeramik bis heute und die dadurch begünstigte Bodenerosion. Derzeit ist nur eine Handvoll Siedlungen mit erhaltenen Hausbefunden im Boden bekannt, nur zwei davon sind bisher nach modernen Maßstäben untersucht worden (Haßloch „Am Kirchenpfad“ und Kirchheimbolanden „In den Schlänkern“). In der Regel wurden bandkeramische Siedlungen an sanften Hängen der Flusstäler auf Lössböden errichtet. Die Siedlung von Medard liegt 280 m ü. NN auf einer seicht nach Südosten geneigten Sandstein-Terrasse der „Schwannerhöhe. Bis vor kurzer Zeit wurde in der Forschung nicht davon ausgegangen, dass die bandkeramische Kultur Siedlungen auf den Anhöhen des Pfälzer Waldes fernab der Lössflächen errichtete, da sich das bisher bekannte Siedlungsgeschehen dieser Zeit auf die Rheinebene konzentrierte. Bei der Siedlung von Medard handelt sich bis dato erst um die zweite bekannte Siedlung der Bandkeramik im Pfälzer Wald.

Bei der Fundstelle Medard „Auf der Platte“ handelt es sich somit um eine der frühesten bäuerlichen Ansiedlung in der gesamten Pfalz, weshalb ihr eine wichtige Rolle im Siedlungsgefüge des Frühneolithikums zukommt und sie für die Beurteilung der Siedlungsgeschichte am Übergang zur sesshaften Lebensweise eine herausragende Stellung einnimmt. Insbesondere die hier im Boden vorliegenden charakteristischen Befunde von Langhäusern sind von besonderer wissenschaftlicher und kulturhistorischer Bedeutung.

Das Denkmal erfüllt daher den Tatbestand des § 3 Abs. 1 DSchG RLP.

§ 4

Genehmigungs- und Anzeigepflichten

Eine landwirtschaftliche Nutzung des unter Schutz gestellten Areals ist weiterhin möglich und bedarf keiner denkmalrechtlichen Genehmigung, sofern sich deren Bodeneingriffe auf den Mutterboden beschränken. Jegliche tiefer in den Unterboden reichenden landwirtschaftlichen Eingriffe sind entsprechend dieser Rechtsverordnung genehmigungspflichtig.

1) Vorhaben in Grabungsschutzgebieten, die verborgene Kulturdenkmäler gefährden können, bedürfen der Genehmigung der Unteren Denkmalschutzbehörde (§ 22 Abs. 3 DSchG).

2) Nachforschungen, insbesondere Geländebegehungen mit Schatzsuchgeräten sowie Ausgrabungen, mit dem Ziel, Kulturdenkmäler zu entdecken, bedürfen der Genehmigung der Unteren Denkmalschutzbehörde (§ 21 Abs. 1 DSchG)

3) Die Anträge auf Erteilung der Genehmigung und Anzeige sind schriftlich bei der Kreisverwaltung Kusel als Untere Denkmalschutzbehörde, Trierer Straße 49 - 51, in 66869 Kusel, einzureichen.

§ 5

Auskünfte, Betretung und Untersuchung von Grundstücken

Eigentümer, sonstige Verfügungsberechtigte und Besitzer haben der Kreisverwaltung Kusel als Untere Denkmalschutzbehörde und der Fachbehörde Generaldirektion Kulturelles Erbe - Direktion Landesarchäologie, sowie ihren Beauftragten die zur Erfüllung ihrer Aufgaben erforderlichen Auskünfte zu erteilen. Die genannten Behörden bzw. deren Beauftragte sind berechtigt, nach vorheriger Unterrichtung und Darlegung des Zweckes, Grundstücke zu betreten, Vermessungen und Untersuchungen vorzunehmen sowie Fotografien anzufertigen (§§ 6 und 7 DSchG).

§ 6

Ordnungswidrigkeiten

1) Verstöße gegen die aufgrund dieser Rechtsverordnung erlassenen Vorschriften des Denkmalschutzgesetzes sind im § 33 Abs. 1 und 2 DSchG geregelt.

2) Sie können mit einer Geldbuße bis zu 125.000 €, in den Fällen des § 33 Abs. 1 Satz 1 Nr. 3 und 4 DSchG bis zu 1.000.000 € geahndet werden.

3) Die Verfolgung der Ordnungswidrigkeit verjährt in fünf Jahren gemäß § 33 Abs. 3 DSchG.

4) Der § 23 des Gesetzes über Ordnungswidrigkeiten (OWiG) findet Anwendung.

5) Verwaltungsbehörde im Sinne des § 36 Abs. 1 Nr. 1 des Gesetzes über Ordnungswidrigkeiten ist die Untere Denkmalschutzbehörde.

§ 7

Geobasisinformationen

Für alle innerhalb des Geltungsbereiches gelegenen Grundstücke dieser Rechtsverordnung wird der Vermerk Denkmalschutz in die Geobasisinformationen des amtlichen Vermessungswesens aufgenommen (§ 22 Abs. 4 DSchG).

§ 8

Inkrafttreten

Diese Rechtsverordnung tritt am Tage nach ihrer Veröffentlichung in Kraft.

Kusel, den 04. April 2025

Kreisverwaltung Kusel
Untere Denkmalschutzbehörde
Otto Rubly
Landrat

Anlage:

Lageplan mit Markierung des Geltungsbereichs

Die Flurstücksnummern wurden über die Liegenschaftskarte RP Basis ermittelt (Quelle: http://geo4.service24.rlp.de/wms/lika_basis.fcgi?; aufgerufen: 03.02.2025). Sollten sich die Flurstücke resp. deren Nummern in Zukunft ändern, gilt weiterhin das in Anlage 1 markierte Areal als Abgrenzung für das hier beantragte Grabungsschutzgebiet.