Titel Logo
Rundschau für das Glan- und Lautertal
Ausgabe 22/2023
Öffentliche Bekanntmachungen
Zurück zur vorigen Seite
Zurück zur ersten Seite der aktuellen Ausgabe

Bekanntmachung

Bebauungsplan „Brühlacker - Neufassung und Erweiterung“ der Stadt Wolfstein im beschleunigten Verfahren gemäß § 13a des Baugesetzbuches (BauGB); erneute öffentliche Auslegung gemäß § 4a Abs. 3 BauGB i. V. m. § 3 Abs. 2 BauGB

Der Entwurf des Bebauungsplanes „Brühlacker - Neufassung und Erweiterung“ der Stadt Wolfstein in der Planfassung „Juni 2022“, war in der Zeit von 04. Oktober 2022 bis einschließlich 07. November 2022 mit den planungsrechtlichen und bauordnungsrechtlichen textlichen Festsetzungen und der Begründung gemäß § 13a Abs. 2 BauGB i. V. m. § 13 Abs. 2 Nr. 2 BauGB und § 3 Abs. 2 BauGB auf der Homepage der Verbandsgemeindeverwaltung Lauterecken-Wolfstein unter https://www.vg-lw.de/buerger-verwaltung/bauen-wohnen/bauleitplanung/aktuelles/ eingestellt, mit dem Hinweis, dass während der Auslegungsfrist zu dem Bebauungsplanentwurf Stellungnahmen abgegeben werden können.

Nach der öffentlichen Auslegung gemäß § 3 Abs. 2 BauGB wurde der Entwurf des Bebauungsplanes durch Beschluss des Stadtrates Wolfstein vom 06. März 2023 geändert. Aus diesem Grund wird der Entwurf des Bebauungsplanes „Brühlacker – Neufassung und Erweiterung“ in der durch vorstehenden Beschluss geänderten Planfassung April 2023 mit den planungsrechtlichen und bauordnungsrechtlichen textlichen Festsetzungen, der Begründung sowie dem Inhalt dieser Bekanntmachung auf die Dauer von 2 Wochen, in der Zeit von

12. Juni 2023 (Arbeitstag)

bis einschließlich 26. Juni 2023 (Arbeitstag)

auf der Homepage der Verbandsgemeindeverwaltung Lauterecken-Wolfstein unter

https://www.vg-lw.de/buerger-verwaltung/bauen-wohnen/bauleitplanung/

aktuelles/

gemäß § 4a Abs. 3 Satz 1 BauGB i. V. m. § 3 Abs. 2 BauGB eingestellt und liegen erneut öffentlich aus. Die Unterlagen können dort eingesehen bzw. heruntergeladen werden.

Gemäß Beschluss des Stadtrates Wolfstein vom 06.03.2023 können Stellungnahmen nur zu den geänderten oder ergänzten Teilen des Bebauungsplanentwurfes abgegeben werden (§ 4a Abs. 3 Satz 2 BauGB). Ferner wurde beschlossen, die Dauer der erneuten öffentlichen Auslegung auf 2 Wochen festzulegen (§ 4a Abs. 3 Satz 3 BauGB.

Die Unterrichtung der Öffentlichkeit über die allgemeinen Ziele und Zwecke sowie die wesentlichen Auswirkungen der Planung und die Möglichkeit zur Äußerung der Öffentlichkeit zur Planung (§ 13a Abs. 3 Satz 1 Nr. 2 BauGB) wird im Rahmen der erneuten öffentlichen Auslegung gemäß § 4a Abs. 3 i. V. m. § 3 Abs. 2 BauGB sichergestellt.

Gemäß § 13a Abs. 3 Satz 1 und 2 BauGB wird hiermit ortsüblich bekannt gemacht, dass der Bebauungsplan im beschleunigten Verfahren ohne Durchführung einer Umweltprüfung nach § 2 Abs. 4 BauGB aufgestellt wird und gemäß § 13 Abs. 2 Nr. 2 BauGB i. V. m. § 13 Abs. 3 Satz 1 BauGB von dem Umweltbericht nach § 2a BauGB, von der Angabe nach § 3 Abs. 2 Satz 2 BauGB, welche Arten umweltbezogener Informationen verfügbar sind, sowie von der zusammenfassenden Erklärung nach § 10a Abs. 1 BauGB abgesehen wird.

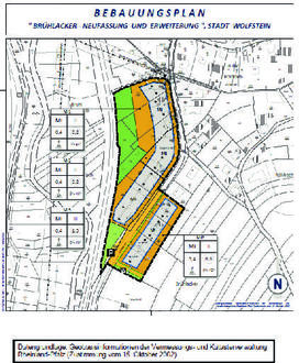
Der vorgesehene räumliche Geltungsbereich des Bebauungsplanes „Brühlacker – Neufassung und Erweiterung“ im beschleunigten Verfahren gemäß §13a BauGB umfasst die Grundstücke Flst. Nr. 105/4, 115, 116, 117/2, 119, 123/1, 126/1, 126/3, 126/4, 129, 162/3, 162/4 sowie Teilflächen der Flst. Nr. 139, 2049/39 (Straße), 2049/45 (Straße) und 2049/60 (Straße) der Gemarkung Roßbach.

Die genaue Gebietsabgrenzung ergibt sich aus dem nachstehend veröffentlichten Auszug aus dem Bebauungsplanentwurf.

Die Veranlassung zur Neufassung und Erweiterung des Bebauungsplanes „Brühlacker“ im beschleunigten Verfahren gemäß § 13a BauGB ergibt sich aus dem Planerfordernis, zur Sicherung der städtebaulichen Entwicklung und Ordnung der Stadt Wolfstein und städtebaulich wünschenswerten und vertretbaren Erweiterungen.

Gemäß § 3 Abs. 1 und § 4 des Gesetzes zur Sicherstellung ordnungsgemäßer Planungs- und Genehmigungsverfahren während der COVID-19-Pandemie (Planungssicherstellungsgesetz – PlanSiG) wird die erneute öffentliche Auslegung durch eine Veröffentlichung im Internet ersetzt und die Abgabe von Erklärungen zur Niederschrift bei der Behörde ausgeschlossen.

Zu dem Entwurf des Bebauungsplanes „Brühlacker - Neufassung und Erweiterung“ der Stadt Wolfstein im beschleunigten Verfahren gemäß 13a BauGB, in der Planfassung April 2023, mit den planungsrechtlichen und bauordnungsrechtlichen textlichen Festsetzungen und der Begründung können anlässlich der erneuten öffentlichen Auslegung während der Auslegungsfrist Stellungnahmen schriftlich bei der Verbandsgemeindeverwaltung Lauterecken-Wolfstein, Standort Wolfstein, Bergstraße 2, 67752 Wolfstein oder unter nachfolgender E-Mail Adresse bauleitplanung@vg-lw.de abgegeben werden. In begründeten Fällen können die Unterlagen auf Anfrage analog zur Verfügung gestellt werden (§ 3 Abs. 2 Satz 2 PlanSiG). Nicht fristgerecht abgegebene Stellungnahmen können bei der Beschlussfassung über den Bauleitplan unberücksichtigt bleiben (§ 3 Abs. 2, Satz 2, 2. Halbsatz BauGB i. V. mit § 4a Abs. 6 Satz 1 BauGB).

Wolfstein, 23. Mai 2023
Für die Stadt Wolfstein:
gez. Dilly
Dilly, Stadtbürgermeister
Bebauungsplan „Brühlacker – Neufassung und Erweiterung“ der Stadt Wolfstein im beschleunigten Verfahren gemäß § 13a des Baugesetzbuches (BauGB); erneute öffentliche Auslegung gemäß § 4a Abs. 3 BauGB i. V. m. § 3 Abs. 2 BauGB

Grenze räumlicher Geltungsbereich ---