Titel Logo
Rundschau für das Glan- und Lautertal
Ausgabe 25/2024
Öffentliche Bekanntmachungen
Zurück zur vorigen Seite
Zurück zur ersten Seite der aktuellen Ausgabe

Bekanntmachung

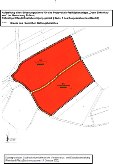
Aufstellung eines Bebauungsplanes für eine Photovoltaik-Freiflächenanlage „Oben Birkenhausen“ Gemarkung Buborn;

frühzeitige Öffentlichkeitsbeteiligung gemäß § 3 Abs. 1 des Baugesetzbuches (BauGB)

Der Ortsgemeinderat von Buborn hat die Aufstellung eines Bebauungsplanes für eine Photovoltaik-Freiflächenanlage „Oben Birkenhausen“ beschlossen und führt nunmehr auf der Grundlage des vom Planungsbüro BBP, Kaiserslautern, aufgestellten Vorentwurfes dieses Bebauungsplanes, in der Planfassung „April 2024“, die frühzeitige Öffentlichkeitsbeteiligung gemäß § 3 Abs. 1 BauGB durch.

Gegenstand der Bebauungsplanung ist die Festsetzung eines Sonstigen Sondergebietes im Sinne des § 11 Abs. 2 der Baunutzungsverordnung (BauNVO) sowie die mit dieser Flächenausweisung einhergehenden Kompensationsmaßnahmen in erforderlichem Umfang.

Die Abgrenzung des vorgesehenen räumlichen Geltungsbereiches erstreckt sich auf die Grundstücke Flur 2, Flst. Nr. 182, 183 (Weg), 184, 185 und 186 der Gemarkung Buborn.

Der Geltungsbereich ist in dem nachstehend veröffentlichten Planauszug mit einer unterbrochenen Linie dargestellt.

Das Erfordernis zur Planaufstellung ergibt sich aus der städtebaulichen Notwendigkeit, die aus Gründen der angestrebten Energiewende notwendige Bereitstellung von Flächen zur Nutzung erneuerbarer Energien in einer mit der geordneten städtebaulichen Entwicklung und den sonstigen planungsrelevanten öffentlichen und privaten Belangen verträglichen Lage auszuweisen. Damit folgt die Ortsgemeinde Buborn dem planerischen Gebot aus § 1 Abs. 5 BauGB, eine nachhaltige städtebauliche Entwicklung, welche die sozialen, wirtschaftlichen und umweltschützenden Anforderungen auch in Verantwortung gegenüber künftigen Generationen miteinander in Einklang bringt, zu gewährleisten.

Der Bebauungsplan wird gemäß § 8 Abs. 3 BauGB im Parallelverfahren zu der Gesamtfortschreibung des Flächennutzungsplanes der Verbandsgemeinde Lauterecken-Wolfstein aufgestellt.

Um das mit Bekanntmachung vom 05. Dezember 2023, veröffentlicht im Amtsblatt am 15. Dezember 2023, eingeleitete planerische Verfahren fortzuführen, wird hiermit die nach § 3 Abs. 1 BauGB vorzunehmende frühzeitige Öffentlichkeitsbeteiligung eröffnet. Nach dieser Vorschrift ist die Öffentlichkeit möglichst frühzeitig über die allgemeinen Ziele und Zwecke der Planung, sich wesentlich unterscheidende Lösungen, die für die Neugestaltung oder Entwicklung des Gebietes in Betracht kommen, und die voraussichtlichen Auswirkungen der Planung öffentlich zu unterrichten; ihr ist Gelegenheit zur Äußerung und Erörterung zu geben. Zu diesem Zweck wird der Vorentwurf des Bebauungsplanes für eine Photovoltaik-Freiflächenanlage „Oben Birkenhausen“, in der Planfassung „April 2024“, mit den bauplanungsrechtlichen textlichen Festsetzungen, der Begründung mit Umweltbericht, dem Vorentwurf des Fachbeitrages Naturschutz sowie dem Inhalt dieser Bekanntmachung gemäß § 3 Abs. 1 BauGB ab sofort bis zum 22. Juli 2024 auf der Homepage der Verbandsgemeindeverwaltung Lauterecken-Wolfstein unter https://www.vg-lw.de/buerger-verwaltung/bauen-wohnen/bauleitplanung/aktuelles/ eingestellt. Die Unterlagen können dort eingesehen bzw. heruntergeladen werden.

Im Rahmen der frühzeitigen Öffentlichkeitsbeteiligung (sog. Scoping) gemäß § 3 Abs. 1 BauGB können Stellungnahmen, Eingaben etc., schriftlich bei der Verbandsgemeindeverwaltung Lauterecken-Wolfstein, Standort Wolfstein, Bergstraße 2, 67752 Wolfstein oder unter nachfolgender E-Mail Adresse bauleitplanung@vg-lw.de abgegeben werden.

Unberührt hiervon bleibt die später noch durchzuführende öffentliche Auslegung des Planentwurfes nach § 3 Abs. 2 BauGB, auf die zu gegebener Zeit noch hingewiesen wird.

Buborn, den 12.06.2024
Für die Ortsgemeinde Buborn:
gez. Kreischer
_________________________
Kreischer, Ortsbürgermeister