Titel Logo
Rundschau für das Glan- und Lautertal
Ausgabe 28/2023
Öffentliche Bekanntmachungen
Zurück zur vorigen Seite
Zurück zur ersten Seite der aktuellen Ausgabe

Bekanntmachung

Bebauungsplan „Am Elgesgraben und Auf der Höhe“ der Ortsgemeinde Kirrweiler;

Bekanntmachung der Erteilung der Genehmigung gemäß § 10 Abs. 3 des Baugesetzbuches (BauGB)

Der Ortsgemeinderat von Kirrweiler hat in seiner Sitzung am 14. April 2022 den Bebauungsplan „Am Elgesgraben und Auf der Höhe“, aufgestellt vom Planungsbüro BBP PartGmbB, Kaiserslautern, in der Planfassung „April 2022“, mit den planungsrechtlichen und bauordnungsrechtlichen textlichen Festsetzungen und der Begründung als Satzung beschlossen. Der Bebauungsplan wurde am 08. Mai 2023 der Kreisverwaltung Kusel zur Genehmigung vorgelegt.

Die Kreisverwaltung Kusel hat mit Verfügung vom 30. Mai 2023, Az.: 5/55/610-13 Ki BPl AEgrAdH, den Bebauungsplan „Am Elgesgraben und Auf der Höhe“ der Ortsgemeinde Kirrweiler genehmigt.

Gemäß § 10 Abs. 3 Satz 1 BauGB vom 03. November 2017 (BGBl. I S. 3634) in der derzeit gültigen Fassung ist, die Erteilung der Genehmigung ortsüblich bekanntzumachen, was hiermit geschieht. Mit der Bekanntmachung tritt der Bebauungsplan in Kraft (§ 10 Abs. 3 Satz 4 BauGB).

Der Bebauungsplan „Am Elgesgraben und Auf der Höhe“ der Ortsgemeinde Kirrweiler, aufgestellt vom Büro BBP Part GmbB, Kaiserslautern, in der Planfassung „April 2022“, einschließlich den planungsrechtlichen und bauordnungsrechtlichen textlichen Festsetzungen und der Begründung, kann ab heute bei der Verbandsgemeindeverwaltung Lauterecken-Wolfstein, Standort Wolfstein, Bergstraße 2, Obergeschoss, Zimmer 217, während der Dienststunden von jedermann eingesehen werden und ist ergänzend gemäß § 10a Abs. 2 BauGB auf der Homepage unter

https://www.vg-lw.de/buerger-verwaltung/bauen-wohnen/bauleitplanung/bebauungsplaene-baurechtliche-satzungen/Kirrweiler

eingestellt. Jeder kann über den Inhalt des Bebauungsplanes auch Auskunft verlangen.

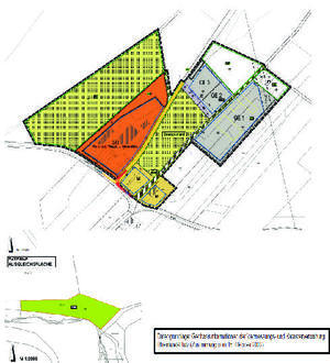
Der Geltungsbereich des Bebauungsplanes „Am Elgesgraben und Auf der Höhe“ umfasst die Grundstücke Flur 4, Flst. Nr. 72/2, 73, 74, Flur 8, Flst. Nr. 356/1, 356/3, 357, 358/1, 358/3, 364/1, 364/2 und 366 sowie die Teilflächen Flur 4, Flst. 76 (Weg), Flur 8, Flst. Nr. 363 (Weg) und 365 (Weg) der Gemarkung Kirrweiler.

Die genaue Gebietsabgrenzung ergibt sich aus dem nachstehend veröffentlichten Auszug aus dem Bebauungsplan.

Gleichzeitig wird auf folgende Vorschriften hingewiesen:

a)

§ 215 Abs. 1 Nr. 1, 2 und 3 des Baugesetzbuches vom 3. November 2017 (BGBl. I S. 3634) in der derzeit gültigen Fassung:

„Unbeachtlich werden

1.

eine nach § 214 Abs. 1 Satz 1 Nr. 1 bis 3 beachtliche Verletzung der dort bezeichneten Verfahrens- und Formvorschriften,

2.

eine unter Berücksichtigung des § 214 Abs. 2 beachtliche Verletzung der Vorschriften über das Verhältnis des Bebauungsplans und des Flächennutzungsplans und

3.

nach § 214 Abs. 3 Satz 2 beachtliche Mängel des Abwägungsvorgangs,

wenn sie nicht innerhalb eines Jahres seit Bekanntmachung des Flächennutzungsplans oder der Satzung schriftlich gegenüber der Gemeinde unter Darlegung des die Verletzung begründenden Sachverhalts gelten gemacht worden sind. Satz 1 gilt entsprechend, wenn Fehler nach § 214 Abs. 2a BauGB beachtlich sind.“

b)

§ 24 Abs. 6 der Gemeindeordnung für Rheinland-Pfalz (GemO) vom 31. Januar 1994 (GVBl. S. 153, BS 2020-1) in der derzeit gültigen Fassung:

„Satzungen, die unter Verletzung von Verfahrens- oder Formvorschriften dieses Gesetzes oder auf Grund dieses Gesetzes zustande gekommen sind, gelten ein Jahr nach der Bekanntmachung als von Anfang an gültig zustande gekommen. Dies gilt nicht, wenn

1.

die Bestimmungen über die Öffentlichkeit der Sitzung, die Genehmigung, die Ausfertigung oder die Bekanntmachung der Satzung verletzt worden sind, oder

2.

vor Ablauf der in Satz 1 genannten Frist die Aufsichtsbehörde den Beschluss beanstandet oder jemand die Verletzung der Verfahrens- oder Formvorschriften gegenüber der Gemeindeverwaltung unter Bezeichnung des Sachverhalts, der die Verletzung begründen soll, schriftlich geltend gemacht hat.

Hat jemand eine Verletzung nach Satz 2 Nr. 2 geltend gemacht, so kann auch nach Ablauf der in Satz 1 genannten Frist jedermann diese Verletzung geltend machen.“

c)

§ 44 Abs. 3 Satz 1 und 2, sowie Abs. 4 des Baugesetzbuches vom 03. November 2017 (BGBl. I S. 3634):

“(3)

Der Entschädigungsberechtigte kann Entschädigung verlangen, wenn die in den §§ 39 bis 42 bezeichneten Vermögensnachteile eingetreten sind. Er kann die Fälligkeit des Anspruchs dadurch herbeiführen, dass er die Leistung der Entschädigung schriftlich bei dem Entschädigungspflichtigen beantragt.....

(4)

Ein Entschädigungsanspruch erlischt, wenn nicht innerhalb von drei Jahren nach Ablauf des Kalenderjahrs, in dem die in Abs. 3 Satz 1 bezeichneten Vermögensnachteile eingetreten sind, die Fälligkeit des Anspruchs herbeigeführt wird.“

Kirrweiler, den 06. Juli 2023
Für die Ortsgemeinde Kirrweiler:
gez. Schuster
Schuster, Ortsbürgermeister

Bebauungsplan „Am Elgesgraben und Auf der Höhe“ der Ortsgemeinde Kirrweiler;

Bekanntmachung der Erteilung der Genehmigung gemäß § 10 Abs. 3 des Baugesetzbuches (BauGB)

---

Grenze des räumlichen Geltungsbereiches