Titel Logo
Rundschau für das Glan- und Lautertal
Ausgabe 42/2024
Öffentliche Bekanntmachungen
Zurück zur vorigen Seite
Zurück zur ersten Seite der aktuellen Ausgabe

Bekanntmachung

Klarstellungs- und Ergänzungssatzung „Mühlberg“ der Ortsgemeinde Hinzweiler gemäß § 34 Abs. 4 Nr. 1 und 3 des Baugesetzbuches (BauGB);

Bekanntmachung des Beschlusses der Klarstellungs- und Ergänzungssatzung gemäß § 34 Abs. 6 BauGB i. V. m. § 10 Abs. 3 BauGB

Der Ortsgemeinderat von Hinzweiler hat in seiner Sitzung am 16. April 2024 den Erlass der Klarstellungs- und Ergänzungssatzung „Mühlberg“ gemäß § 34 Abs. 4 Satz 1 Nr. 1 und 3 BauGB beschlossen. Der Satzungsbeschluss hat folgenden Wortlaut:

Der Ortsgemeinderat Hinzweiler beschließt gemäß § 34 Abs. 4 Satz 1 Nr. 1 und 3 des Baugesetzbuches (BauGB) und § 24 der Gemeindeordnung für Rheinland-Pfalz (GemO) den Erlass der Klarstellungs- und Ergänzungssatzung „Mühlberg“ in der Planfassung „April 2024“ (das ist die in der Zeit von 04.12.2023 bis 10.01.2024 öffentlich ausgelegte Planfassung mit den vorstehend unter a) beschlossenen redaktionellen Änderungen und Ergänzungen).

Abstimmungsergebnis: 8 Ja-Stimmen 0 Nein-Stimmen 0 Enthaltungen

Gemäß § 34 Abs. 6 Satz 2 BauGB i.V. m. § 10 Abs. 3 Satz 1 BauGB vom 03. November 2017 (BGBl. I S. 3634) in der derzeit gültigen Fassung, ist, soweit eine Genehmigung nicht erforderlich ist, der Beschluss des Erlasses der Klarstellungs- und Ergänzungssatzung durch die Gemeinde ortsüblich bekannt zu machen, was hiermit geschieht. Mit der Bekanntmachung tritt die Satzung in Kraft (§ 34 Abs. 6 Satz 2 BauGB i. V. m. § 10 Abs. 3 Satz 4 BauGB).

Die Klarstellungs- und Ergänzungssatzung „Mühlberg“ der Ortsgemeinde Hinzweiler kann ab heute bei der Verbandsgemeindeverwaltung Lauterecken-Wolfstein, Standort Wolfstein, Bergstraße 2, Obergeschoss, Zimmer 217, während der Dienststunden von jedermann eingesehen werden und ist ergänzend gemäß § 10a Abs. 2 BauGB auf der Homepage unter

https://www.vg-lw.de/buerger-verwaltung/bauen-wohnen/bauleitplanung/bebauungs-plaene-baurechtliche-satzungen/Hinzweiler

eingestellt. Jeder kann über den Inhalt dieser Satzung auch Auskunft verlangen.

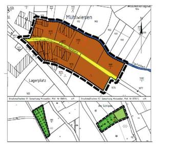
Der Geltungsbereich der Klarstellungs- und Ergänzungssatzung „Mühlberg“ erstreckt sich auf die in der beigefügten Planurkunde mit einer unterbrochenen schwarzen Linie umrandeten Grundstücke Flst. Nr. 1076/2, 1076/3, 1076/4, 1076/6, 1077/1, 1078/2, 1080/2, 1081/2, die Teilflächen der Grundstücke Flst. Nr. 1076 und 1077 sowie in 2 weiteren Geltungsbereichen für die Ersatzmaßnahme E1, die Teilfläche des Grundstücks Flst. Nr. 1069/6 und für die Ersatzmaßnahme E2, das Grundstück Flst. Nr. 1070/1 der Gemarkung Hinzweiler.

Die genaue Gebietsabgrenzung ergibt sich aus dem nachstehend veröffentlichten Lageplan zur Satzung.

Gleichzeitig wird auf folgende Vorschriften hingewiesen:

a)

§ 215 Abs. 1 Nr. 1, 2 und 3 des Baugesetzbuches vom 3. November 2017 (BGBl. I S. 3634) in der derzeit gültigen Fassung:

„Unbeachtlich werden

1.

eine nach § 214 Abs. 1 Satz 1 Nr. 1 bis 3 beachtliche Verletzung der dort bezeichneten Verfahrens- und Formvorschriften,

2.

eine unter Berücksichtigung des § 214 Abs. 2 beachtliche Verletzung der Vorschriften über das Verhältnis des Bebauungsplans und des Flächennutzungsplans und

3.

nach § 214 Abs. 3 Satz 2 beachtliche Mängel des Abwägungsvorgangs,

wenn sie nicht innerhalb eines Jahres seit Bekanntmachung des Flächennutzungsplans oder der Satzung schriftlich gegenüber der Gemeinde unter Darlegung des die Verletzung begründenden Sachverhalts gelten gemacht worden sind. Satz 1 gilt entsprechend, wenn Fehler nach § 214 Abs. 2a BauGB beachtlich sind.“

b)

§ 24 Abs. 6 der Gemeindeordnung für Rheinland-Pfalz (GemO) vom 31. Januar 1994 (GVBl. S. 153, BS 2020-1) in der derzeit gültigen Fassung:

„Satzungen, die unter Verletzung von Verfahrens- oder Formvorschriften dieses Gesetzes oder auf Grund dieses Gesetzes zustande gekommen sind, gelten ein Jahr nach der Bekanntmachung als von Anfang an gültig zustande gekommen. Dies gilt nicht, wenn

1.

die Bestimmungen über die Öffentlichkeit der Sitzung, die Genehmigung, die Ausfertigung oder die Bekanntmachung der Satzung verletzt worden sind, oder

2.

vor Ablauf der in Satz 1 genannten Frist die Aufsichtsbehörde den Beschluss beanstandet oder jemand die Verletzung der Verfahrens- oder Formvorschriften gegenüber der Gemeindeverwaltung unter Bezeichnung des Sachverhalts, der die Verletzung begründen soll, schriftlich geltend gemacht hat.

Hat jemand eine Verletzung nach Satz 2 Nr. 2 geltend gemacht, so kann auch nach Ablauf der in Satz 1 genannten Frist jedermann diese Verletzung geltend machen.“

Hinzweiler, den 09.10.2024
Für die Ortsgemeinde Hinzweiler:
gez. Suffel
Suffel, Ortsbürgermeister

Klarstellungs- und Ergänzungssatzung „Mühlberg“ der Ortsgemeinde Hinzweiler;

Bekanntmachung des Beschlusses der Klarstellungs- und Ergänzungssatzung gemäß § 34 Abs. 4 Nr. 1 und 3 i. V. m. § 10 Abs. 3 des Baugesetzbuches (BauGB)

--- Grenze räumlicher Geltungsbereich

Datengrundlage: Geobasisinformationen der Vermessungs- und Katasterverwaltung Rheinland-Pfalz (Zustimmung vom 15. Oktober 2002