Titel Logo
Rundschau für das Glan- und Lautertal
Ausgabe 43/2025
Öffentliche Bekanntmachungen
Zurück zur vorigen Seite
Zurück zur ersten Seite der aktuellen Ausgabe

Bekanntmachung

1. Änderung des Bebauungsplanes für eine PV-Freiflächenanlage „Hinter dem Probstwald“ der Ortsgemeinde Glanbrücken im vereinfachten Verfahren gemäß § 13 des Baugesetzbuches (BauGB); öffentliche Auslegung gemäß § 3 Abs. 2 BauGB

Der Ortsgemeinderat Glanbrücken hat die Annahme des von der Enviro-Plan GmbH, Odernheim, ausgearbeiteten Entwurfes zur 1. Änderung des Bebauungsplanes für eine PV-Freiflächenanlage „Hinter dem Probstwald“ im vereinfachten Verfahren gemäß § 13 BauGB beschlossen.

Der Entwurf dieses Bebauungsplanes in der Fassung „September 2025“, wird mit den planungsrechtlichen und bauordnungsrechtlichen textlichen Festsetzungen und der Begründung gemäß § 13 Abs. 2 Satz 1 Nr. 2, 2. Alternative BauGB sowie dem Inhalt dieser Bekanntmachung gemäß § 3 Abs. 2 in der Zeit von

24. Oktober 2025 bis einschließlich 25. November 2025

auf der Homepage der Verbandsgemeindeverwaltung Lauterecken-Wolfstein unter https://www.vg-lw.de/buerger-verwaltung/bauen-wohnen/bauleitplanung/

aktuelles/ eingestellt. Die Unterlagen können dort eingesehen bzw. heruntergeladen werden.

Die Unterrichtung der Öffentlichkeit über die allgemeinen Ziele und Zwecke sowie die wesentlichen Auswirkungen der Planung und die Möglichkeit zur Äußerung der Öffentlichkeit zur Planung (§ 13a Abs. 3 Satz 1 Nr. 2 BauGB) wird im Rahmen der öffentlichen Auslegung gemäß § 3 Abs. 2 BauGB sichergestellt.

Gemäß § 13 Abs. 1 BauGB wird hiermit ortsüblich bekannt gemacht, dass der Bebauungsplan im vereinfachten Verfahren ohne Durchführung einer Umweltprüfung nach § 2 Abs. 4 BauGB aufgestellt wird und gemäß § 13 Abs. 3 Satz 1 BauGB von dem Umweltbericht nach § 2a BauGB, von der Angabe nach § 3 Abs. 2 Satz 2 BauGB, welche Arten umweltbezogener Informationen verfügbar sind, sowie von der zusammenfassenden Erklärung nach § 10a Abs. 1 BauGB abgesehen wird.

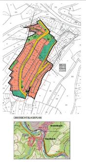
Der räumliche Geltungsbereich der 1. Änderung des Bebauungsplanes für eine PV-Freiflächenanlage „Hinter dem Probstwald“ im vereinfachten Verfahren gemäß § 13 BauGB umfasst die Grundstücke Flur 8, Flurstück Nr. 37 und 39 der Gemarkung Niedereisenbach.

Die genaue Gebietsabgrenzung ergibt sich aus dem nachstehend veröffentlichten Auszug aus dem Bebauungsplanentwurf.

Ziel der Änderung ist die Anpassung der textlichen Festsetzungen, um die Laufzeit der Nutzung der Photovoltaik-Freiflächenanlage von bisher 35 Jahren auf 40 Jahre zu verlängern.

Die Änderung erfolgt auf Antrag des Projektierers der PV-Freiflächenanlage, um die wirtschaftliche und nachhaltige Nutzung der Anlage zu optimieren und demnach auch den städtebaulichen Planungsmaßnahmen nach § 1 VI Nr. 7f BauGB, wonach Maßnahmen, die erneuerbaren Energien betreffen, gefördert werden sollen, entsprechen. Die Anpassung betrifft ausschließlich die textlichen Festsetzungen und berührt nicht die Grundzüge der Planung (Textbebauungsplan).

Zu dem Entwurf der 1. Änderung des Bebauungsplanes für eine PV-Freiflächenanlage „Hinter dem Probstwald“ der Ortsgemeinde Glanbrücken im vereinfachten Verfahren gemäß 13 BauGB in der Planfassung „September 2025“ mit den planungsrechtlichen und bauordnungsrechtlichen textlichen Festsetzungen und der Begründung können anlässlich der öffentlichen Auslegung während der Auslegungsfrist Stellungnahmen schriftlich bei der Verbandsgemeindeverwaltung Lauterecken-Wolfstein, Standort Wolfstein, Bergstraße 2, 67752 Wolfstein oder elektronisch unter nachfolgender E-Mail Adresse bauleitplanung@vg-lw.de abgegeben werden. Nicht fristgerecht abgegebene Stellungnahmen können bei der Beschlussfassung über den Bauleitplan unberücksichtigt bleiben (§ 3 Abs. 2, Satz 4, Nr. 1-4 BauGB i. V. mit § 4a Abs. 5 BauGB).

Glanbrücken, 15.10.2025
Für die Ortsgemeinde Glanbrücken:
gez. Röder
Röder, Ortsbürgermeister

Neufassung und Teilaufhebung des Bebauungsplanes „Hinter dem Probstwald“ der Ortsgemeinde Glanbrücken im beschleunigten Verfahren gemäß 13a des Baugesetzbuches (BauGB);

öffentliche Auslegung gemäß § 3 Abs. 2 BauGB

--- Grenze räumlicher Geltungsbereich

Datengrundlage: Geobasisinformationen der Vermessungs- und Katasterverwaltung Rheinland-Pfalz (Zustimmung vom 15. Oktober 2002)