Titel Logo
Rundschau für das Glan- und Lautertal
Ausgabe 43/2025
Öffentliche Bekanntmachungen
Zurück zur vorigen Seite
Zurück zur ersten Seite der aktuellen Ausgabe

Bekanntmachung

Neufassung und Teilaufhebung Bebauungsplan „Wingert“ der Ortsgemeinde Kreimbach-Kaulbach im beschleunigten Verfahren gemäß § 13a des Baugesetzbuches (BauGB);

Bekanntmachung des Satzungsbeschlusses durch die Gemeinde gemäß § 10 Abs. 3 BauGB

Der Ortsgemeinderat von Kreimbach-Kaulbach hat in seiner Sitzung am 27. August 2025 den Bebauungsplan zur Neufassung und Teilaufhebung des Bebauungsplanes „Wingert“ im beschleunigten Verfahren gemäß § 13a BauGB in der Planfassung „August 2025“ mit den planungsrechtlichen und bauordnungsrechtlichen textlichen Festsetzungen und der Begründung als Satzung beschlossen. Der Satzungsbeschluss hat folgenden Wortlaut:

Der Ortsgemeinderat beschließt gemäß § 10 Abs. 1 BauGB und § 24 der Gemeindeordnung Rheinland-Pfalz (GemO) in Verbindung mit § 88 I und VI der Landesbauordnung Rheinland-Pfalz (LBauO) die Neufassung und Teilaufhebung des Bebauungsplans „Wingert“, Ortsgemeinde Kreimbach-Kaulbach, Ortsteil Kaulbach, im beschleunigten Verfahren nach § 13a BauGB in der Planfassung August 2025 mit den planungsrechtlichen und bauordnungsrechtlichen Festsetzungen, letztere als Gestaltungssatzung nach § 88 LBauO, und der Begründung als Satzung.

Abstimmungsergebnis: 7 Ja-Stimmen 0 Nein-Stimmen 0 Enthaltungen

Gemäß § 10 Abs. 3 Satz 1 BauGB vom 03. November 2017 (BGBl. I S. 3634) in der derzeit gültigen Fassung ist, soweit eine Genehmigung nicht erforderlich ist, der Beschluss des Bebauungsplanes durch die Gemeinde ortsüblich bekannt zu machen, was hiermit geschieht. Mit der Bekanntmachung tritt der Bebauungsplan in Kraft (§ 10 Abs. 3 Satz 4 BauGB).

Der Bebauungsplan zur Neufassung und Teilaufhebung des Bebauungsplans „Wingert“ der Ortsgemeinde Kreimbach-Kaulbach im beschleunigten Verfahren gemäß § 13a BauGB in der Planfassung „August 2025“, mit den planungsrechtlichen und bauordnungsrechtlichen textlichen Festsetzungen und der Begründung, kann ab heute bei der Verbandsgemeindeverwaltung Lauterecken-Wolfstein, Standort Wolfstein, Bergstraße 2, Obergeschoss, Zimmer 217, während der Dienststunden von jedermann eingesehen werden und ist ergänzend gemäß § 10a Abs. 2 BauGB auf der Homepage unter

https://www.vg-lw.de/buerger-verwaltung/bauen-wohnen/bauleitplanung/bebauungsplaene-baurechtliche-satzungen/Kreimbach-Kaulbach

eingestellt. Jeder kann über den Inhalt des Bebauungsplanes auch Auskunft verlangen.

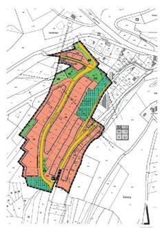
Der räumliche Geltungsbereich der Neufassung mit Teilaufhebung des Bebauungsplanes „Wingert“ im beschleunigten Verfahren gemäß § 13a BauGB umfasst die Grundstücke Flurstück Nr. 1606 (Weg), 1847, 1848, 1849, 1850, 1851, 1852, 1853, 1854, 1856, 1857, 1858, 1859, 1860, 1861, 1862, 1864, 1865, 1866, 1867, 1868, 1869, 1870, 1871, 1872/1, 1872/2, 1873, 1874, 1875, 1876, 1893, 1894, 1895, 1896, 1897, 1898, 1899, 1900, 1901, 1902, 1903, 1904, 1906, 1907, 1909, 1913, 1914, 1915, 1916, 1926, 1927, 1929, 1933, 1939 sowie die Teilflächen der Grundstücke Flurstück Nr. 1607 (Weg), 1704, 1855, 1857, 1869, 1877, 1891 (Weg), 1892, 1910, 1912, 1923 (Weg), 1925, 1928, 1930, 1931, 1932 der Gemarkung Kaulbach.

Die genaue Gebietsabgrenzung ergibt sich aus dem nachstehend veröffentlichten Auszug aus dem Bebauungsplan.

Gleichzeitig wird auf folgende Vorschriften hingewiesen:

a) § 215 Abs. 1 Nr. 1, 2 und 3 des Baugesetzbuches vom 3. November 2017 (BGBl. I S. 3634) in der derzeit gültigen Fassung:

„Unbeachtlich werden

1.

eine nach § 214 Abs. 1 Satz 1 Nr. 1 bis 3 beachtliche Verletzung der dort bezeichneten Verfahrens- und Formvorschriften,

2.

eine unter Berücksichtigung des § 214 Abs. 2 beachtliche Verletzung der Vorschriften über das Verhältnis des Bebauungsplans und des Flächennutzungsplans und

3.

nach § 214 Abs. 3 Satz 2 beachtliche Mängel des Abwägungsvorgangs, wenn sie nicht innerhalb eines Jahres seit Bekanntmachung des Flächennutzungsplans oder der Satzung schriftlich gegenüber der Gemeinde unter Darlegung des die Verletzung begründenden Sachverhalts gelten gemacht worden sind. Satz 1 gilt entsprechend, wenn Fehler nach § 214 Abs. 2a BauGB beachtlich sind.“

b) § 24 Abs. 6 der Gemeindeordnung für Rheinland-Pfalz (GemO) vom 31. Januar 1994 (GVBl. S. 153, BS 2020-1) in der derzeit gültigen Fassung:

„Satzungen, die unter Verletzung von Verfahrens- oder Formvorschriften dieses Gesetzes oder auf Grund dieses Gesetzes zustande gekommen sind, gelten ein Jahr nach der Bekanntmachung als von Anfang an gültig zustande gekommen. Dies gilt nicht, wenn

1.

die Bestimmungen über die Öffentlichkeit der Sitzung, die Genehmigung, die Ausfertigung oder die Bekanntmachung der Satzung verletzt worden sind, oder

2.

vor Ablauf der in Satz 1 genannten Frist die Aufsichtsbehörde den Beschluss beanstandet oder jemand die Verletzung der Verfahrens- oder Formvorschriften gegenüber der Gemeindeverwaltung unter Bezeichnung des Sachverhalts, der die Verletzung begründen soll, schriftlich geltend gemacht hat.

Hat jemand eine Verletzung nach Satz 2 Nr. 2 geltend gemacht, so kann auch nach Ablauf der in Satz 1 genannten Frist jedermann diese Verletzung geltend machen.“

c) § 44 Abs. 3 Satz 1 und 2, sowie Abs. 4 des Baugesetzbuches vom 03. November 2017 (BGBl. I S. 3634):

“(3)

Der Entschädigungsberechtigte kann Entschädigung verlangen, wenn die in den §§ 39 bis 42 bezeichneten Vermögensnachteile eingetreten sind. Er kann die Fälligkeit des Anspruchs dadurch herbeiführen, dass er die Leistung der Entschädigung schriftlich bei dem Entschädigungspflichtigen beantragt. ...

(4)

Ein Entschädigungsanspruch erlischt, wenn nicht innerhalb von drei Jahren nach Ablauf des Kalenderjahrs, in dem die in Abs. 3 Satz 1 bezeichneten Vermögensnachteile eingetreten sind, die Fälligkeit des Anspruchs herbeigeführt wird.“

Kreimbach-Kaulbach, den 14. Oktober 2025
Für die Ortsgemeinde Kreimbach-Kaulbach:
gez. Sauer
Sauer, Ortsbürgermeister

Neufassung und Teilaufhebung Bebauungsplan „Wingert“ der Ortsgemeinde Kreimbach-Kaulbach im beschleunigten Verfahren gemäß § 13a des Baugesetzbuches (BauGB);

Bekanntmachung des Satzungsbeschlusses durch die Gemeinde gemäß § 10 Abs. 3 BauGB

--- Grenze räumlicher Geltungsbereich

Datengrundlage: Geobasisinformationen der Vermessungs- und Katasterverwaltung Rheinland-Pfalz (Zustimmung vom 15. Oktober 2002)